Lokal na wynajem
4 760 zł
56 m2















1 / 15
Szczegóły ogłoszenia
- Symbol oferty ASO-LW-40833
- Typ oferty lokal na wynajem
- Czynsz wynajmu 4 760 zł / miesiąc
- Charakterystyka mieszkania 56 m2
- Budynek biurowiec
- Rozkład mieszkania 5p piętro
- Instalacje dobre
- Kaucja trzymiesięczna
- Okna aluminiowe
- Stan lokalu bardzo dobry
- Winda Tak
Lokalizacja
- Adres dolnośląskie, Wrocław, Krzyki
Opis nieruchomości
Prowizje pokrywa Właściciel nieruchomości
Kompleks biurowy usytuowany jest w południowo-wschodniej części i Wrocławia
Biurowiec Klasy A
Całkowita powierzchnia budynku: 13 500m2
Kondygnacje - 6
Parking naziemny 40 miejsc
Parking podziemny 155 m2
Współczynnik miejsc parkingowych 1/70 mkw
Proponowana powierzchnia 56m2 -648 m2
Współczynnik części wspólnych 6%
Dostępność: 1.09.2025 r.
Czynsz najmu powierzchni biurowej – 85,00 PLN/ 1m2/m-c
Service charge - 23,00 PLN/1m2/m-c
Media według zużycia
1 miejsce postojowe 300,00PLN/ m-c
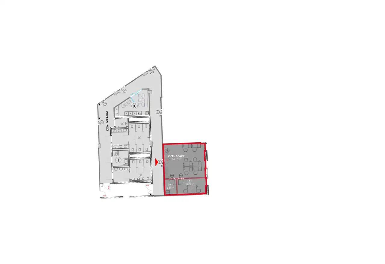
Prezentowana powierzchnia lokal 56 m2 brutto.
Open space, gabinet, archiwum.
Umowa na min. 24 miesiące.
Dostępne lokale na V p.
Udogodnienia dla najemców
Dostęp do powierzchni 24 h na dobę, 7 dni w tygodniu
Anna Skwarciak ASK OFFICE
+48 609 842 932
a.skwarciak@askhome.pl
Wszelkie podane przez Pośrednika informacje nie są ofertą w rozumieniu Kodeksu Cywilnego
Kompleks biurowy usytuowany jest w południowo-wschodniej części i Wrocławia
Biurowiec Klasy A
Całkowita powierzchnia budynku: 13 500m2
Kondygnacje - 6
Parking naziemny 40 miejsc
Parking podziemny 155 m2
Współczynnik miejsc parkingowych 1/70 mkw
Proponowana powierzchnia 56m2 -648 m2
Współczynnik części wspólnych 6%
Dostępność: 1.09.2025 r.
Czynsz najmu powierzchni biurowej – 85,00 PLN/ 1m2/m-c
Service charge - 23,00 PLN/1m2/m-c
Media według zużycia
1 miejsce postojowe 300,00PLN/ m-c
Prezentowana powierzchnia lokal 56 m2 brutto.
Open space, gabinet, archiwum.
Umowa na min. 24 miesiące.
Dostępne lokale na V p.
- 59 m2
- 61 m2
- 101 m2
- 157 m2
- 121 m2
Udogodnienia dla najemców
- energooszczędny system ogrzewania
- optymalny dostęp do światła dziennego
- reprezentacyjne lobby
- ochrona i monitoring budynku
- system kontroli dostępu
- stacje ładowania samochodów elektrycznych
- miejsca parkingowe dla rowerów
- obiekt przystosowany dla niepełnosprawnych
Standard techniczny:
- sufity podwieszane lub alternatywne rozwiązania
- oprawy oświetleniowe LED (500 lux)
- wysokość pomieszczeń 2,75 m
- uchylne okna
- rolety okienne
- optymalny dostęp do światła dziennego
- podłoga podniesiona, wykładzina dywanowa w płytkach
- okablowanie strukturalne kat. 6a w puszkach podłogowych
- energooszczędny system ogrzewania, wentylacji i klimatyzacji
- BMS – system zarządzania budynkiem
- system kontroli dostępu, ochrona 24/7, monitoring
- systemy SAP, SSP
- 5 szybkobieżnych wind
- dwa niezależne źródła zasilania
Dostęp do powierzchni 24 h na dobę, 7 dni w tygodniu
Anna Skwarciak ASK OFFICE
+48 609 842 932
a.skwarciak@askhome.pl
Wszelkie podane przez Pośrednika informacje nie są ofertą w rozumieniu Kodeksu Cywilnego
Nota prawna
Opis oferty zawarty na stronie internetowej sporządzany jest na podstawie oględzin nieruchomości oraz informacji uzyskanych od właściciela, może podlegać aktualizacji i nie stanowi oferty określonej w art. 66 i następnych K.C.
Formularz kontaktowy