Lokal na wynajem
5 187 zł
91 m2









1 / 9
Szczegóły ogłoszenia
- Symbol oferty ASO-LW-38242
- Typ oferty lokal na wynajem
- Czynsz wynajmu 5 187 zł / miesiąc
- Charakterystyka mieszkania 91 m2
- Budynek biurowiec
- Rozkład mieszkania 5p piętro
- Instalacje częściowo wymienione
- Kaucja do uzgodnienia
- Stan lokalu bardzo dobry
- Winda Tak
Lokalizacja
- Adres dolnośląskie, Wrocław, Stare Miasto
Opis nieruchomości
Prowizje pokrywa Właściciel nieruchomości
Kompleks biurowy usytuowany nieopodal wrocławskiej Starówki
Biurowiec Klasy B
Proponowana powierzchnia 91 -1000 m2
Współczynnik części wspólnych -5 %
Dostępność: 1.08.2024r.
Czynsz najmu powierzchni biurowej – 57,00 PLN/ 1m2/m-c
Opłata service charge – 21,00 PLN/ 1m2 /m-c
Opłata za energię elektryczną według zużycia
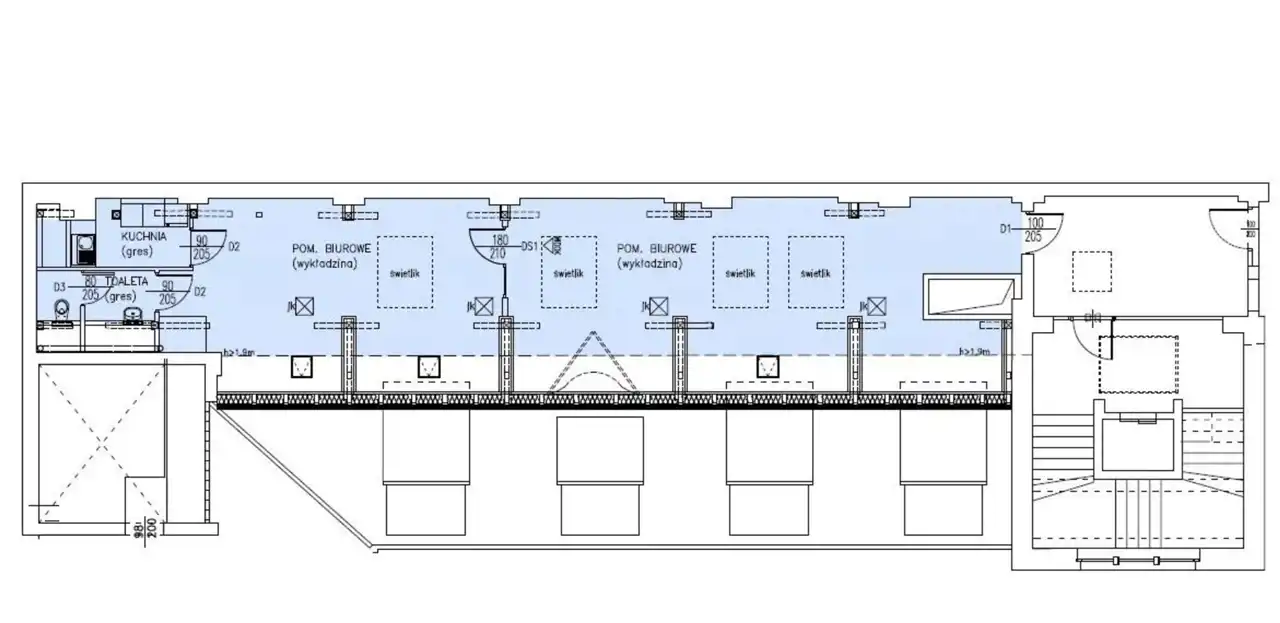
Prezentowana powierzchnia to lokal o powierzchni 91 m2.
Sekretariat, powierzchnia otwarta ,socjal, toaleta.
W obiekcie dostępne lokale:
- 352m2
- 186m2
- 91m2
- 241m2
Standard:
- powierzchnia wykończona
- wysokość pomieszczeń: 3-4 m
- wykładzina dywanowa
- oświetlenie ledowe
- klimatyzacja
- instalacja elektryczna
- Internet światłowodowy
- monitoring
- ogrzewanie miejskie Fortum
Dostęp do powierzchni 24 h na dobę, 7 dni w tygodniu
Anna Skwarciak ASK OFFICE
+48 609 842 932
a.skwarciak@askhome
Więcej ofert na stronie: www.askhome.pl
Wszelkie podane przez Pośrednika informacje nie są ofertą w rozumieniu Kodeksu Cywilnego
Nota prawna
Opis oferty zawarty na stronie internetowej sporządzany jest na podstawie oględzin nieruchomości oraz informacji uzyskanych od właściciela, może podlegać aktualizacji i nie stanowi oferty określonej w art. 66 i następnych K.C.
Formularz kontaktowy