Lokal na wynajem
5 821 zł
99 m2











1 / 11
Szczegóły ogłoszenia
- Symbol oferty ASO-LW-41098
- Typ oferty lokal na wynajem
- Czynsz wynajmu 5 821 zł / miesiąc
- Charakterystyka mieszkania 99 m2
- Budynek biurowiec
- Rozkład mieszkania 2p piętro
- Kaucja dwumiesięczna
- Stan lokalu wysoki standard
- Winda Tak
Lokalizacja
- Adres dolnośląskie, Wrocław, Stare Miasto
Opis nieruchomości
Prowizje dla biura pokrywa Właściciel nieruchomości.
Obiekt biurowy siedmiokondygnacyjny.
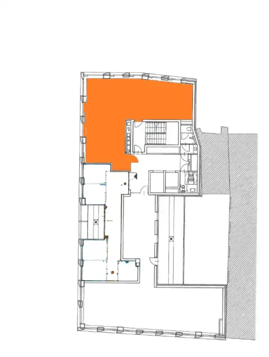
Proponowana powierzchnia 99 m2
Współczynnik części wspólnych -20 %
Dostępność: od 1.02. 2026r.
Czynsz najmu powierzchni biurowej – 14,00 EUR/ 1m2/m-c
Opłata service charge – 29,00 PLN/ 1m2 /m-c
Opłaty za media według zużycia.
Prezentowana powierzchnia to lokal o powierzchni: 99 m2.
Hol, open space, dwa gabinety, dwie salki konferencyjne.
Łazienka w częściach wspólnych.
Charakterystyka:
Dostęp do powierzchni 24 h na dobę, 7 dni w tygodniu
Anna Skwarciak ASK OFFICE
+48 609 842 932
a.skwarciak@askhome
Więcej ofert ma stronie www.askhome.pl
Wszelkie podane przez Pośrednika informacje nie są ofertą w rozumieniu Kodeksu Cywilnego
Obiekt biurowy siedmiokondygnacyjny.
Proponowana powierzchnia 99 m2
Współczynnik części wspólnych -20 %
Dostępność: od 1.02. 2026r.
Czynsz najmu powierzchni biurowej – 14,00 EUR/ 1m2/m-c
Opłata service charge – 29,00 PLN/ 1m2 /m-c
Opłaty za media według zużycia.
Prezentowana powierzchnia to lokal o powierzchni: 99 m2.
Hol, open space, dwa gabinety, dwie salki konferencyjne.
Łazienka w częściach wspólnych.
Charakterystyka:
- reprezentacyjny hall wejściowy
- 2 windy – klatka schodowa
- podwyższony standard wykończenia
- instalację wentylacyjną/klimatyzacyjną, niezależną dla każdej kondygnacji
- instalację przeciwpożarową
- Internet szerokopasmowy
- System Zarządzania Budynkiem (BMS)
- przejrzysty system oznakowań budynku
Dostęp do powierzchni 24 h na dobę, 7 dni w tygodniu
Anna Skwarciak ASK OFFICE
+48 609 842 932
a.skwarciak@askhome
Więcej ofert ma stronie www.askhome.pl
Wszelkie podane przez Pośrednika informacje nie są ofertą w rozumieniu Kodeksu Cywilnego
Nota prawna
Opis oferty zawarty na stronie internetowej sporządzany jest na podstawie oględzin nieruchomości oraz informacji uzyskanych od właściciela, może podlegać aktualizacji i nie stanowi oferty określonej w art. 66 i następnych K.C.
Formularz kontaktowy