Lokal na wynajem
5 992 zł
107 m2








1 / 8
Szczegóły ogłoszenia
- Symbol oferty ASO-LW-37823
- Typ oferty lokal na wynajem
- Czynsz wynajmu 5 992 zł / miesiąc
- Charakterystyka mieszkania 107 m2
- Rozkład mieszkania 2p piętro
- Kaucja trzymiesięczna
- Okna PCV
- Stan lokalu do wprowadzenia
- Winda Tak
Lokalizacja
- Adres dolnośląskie, Wrocław, Stare Miasto
Opis nieruchomości
Prowizje dla biura pokrywa Właściciel nieruchomości.
Kompleks biurowy usytuowany w Centrum Wrocławia
Biurowiec Klasy A
Całkowita powierzchnia budynku: 6 510m2
Parking podziemny
Parking naziemny
Proponowana powierzchnia 35-1500 m2
Współczynnik części wspólnych -10%
Dostępność: 1.09.2024r.
Czynsz najmu powierzchni biurowej – 56 PLN/ 1m2/m-c
Opłata service charge – 26,50 PLN/ 1m² /m-c
Opłata za energię elektryczną
1 miejsce postojowe 250 - 550 PLN / m-c
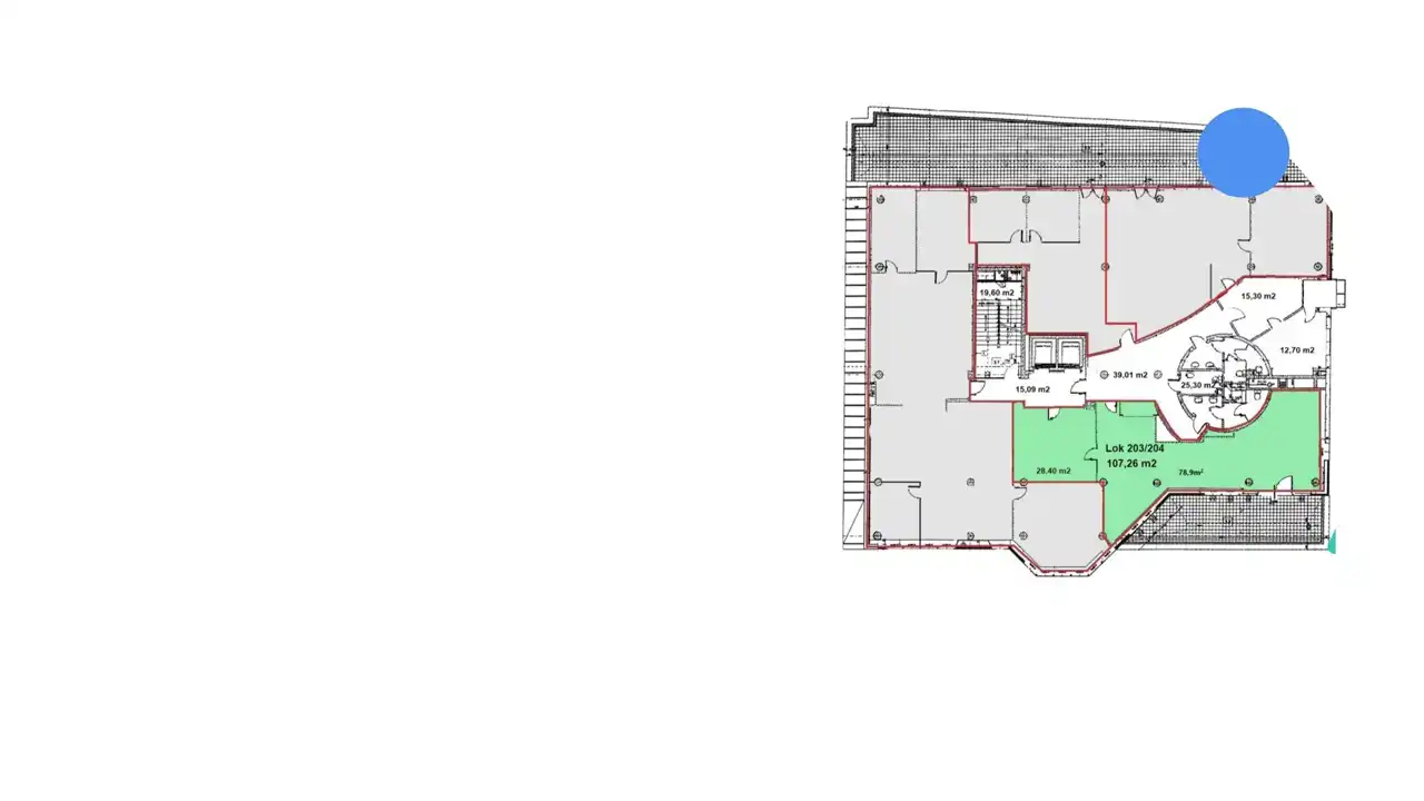
Sugerowana powierzchnia lokal na II p. 107 m2.
Open space , gabinet.
Łazienka, socjal w częściach wspólnych.
Dostępne lokale:
- 39,30 m2
- 75,00 m2
- 81,88 m2
- 103,90 m2
- 99,43 m2
- 107,26 m2
- 116,83 m2
- 128,40 m2
- 130,00 m2
- 135,73 m2
- 213,00 m2
Standard:
Anna Skwarciak ASK OFFICE
+48 609 842 932
a.skwarciak@askhome.pl
Kompleks biurowy usytuowany w Centrum Wrocławia
Biurowiec Klasy A
Całkowita powierzchnia budynku: 6 510m2
Parking podziemny
Parking naziemny
Proponowana powierzchnia 35-1500 m2
Współczynnik części wspólnych -10%
Dostępność: 1.09.2024r.
Czynsz najmu powierzchni biurowej – 56 PLN/ 1m2/m-c
Opłata service charge – 26,50 PLN/ 1m² /m-c
Opłata za energię elektryczną
1 miejsce postojowe 250 - 550 PLN / m-c
Sugerowana powierzchnia lokal na II p. 107 m2.
Open space , gabinet.
Łazienka, socjal w częściach wspólnych.
Dostępne lokale:
- 39,30 m2
- 75,00 m2
- 81,88 m2
- 103,90 m2
- 99,43 m2
- 107,26 m2
- 116,83 m2
- 128,40 m2
- 130,00 m2
- 135,73 m2
- 213,00 m2
Standard:
- zasilanie elektryczne dwustronne, stacja transformatorowa w budynku
- zasilanie CO, energia cieplna, węzeł cieplny w budynku
- klimakonwektorowy system schładzania i ogrzewania budynku
- stolarka okienna: aluminium / okna uchylne
- windy szt. 2
- balkony szt. 3
- taras widokowy
- całodobowa recepcja/ochrona
- audytoryjna sala konferencyjna na 100 miejsc
- stolarka drzwiowa: aluminium, drewno, szkło
- ściany: korytarze murowane, działowe GK
- sufity podwieszane systemowe
- wykładziny dywanowe
- okablowanie teletechniczne
- system p.poż.
- system CCTV
- ochrona/monitoring
Anna Skwarciak ASK OFFICE
+48 609 842 932
a.skwarciak@askhome.pl
Nota prawna
Opis oferty zawarty na stronie internetowej sporządzany jest na podstawie oględzin nieruchomości oraz informacji uzyskanych od właściciela, może podlegać aktualizacji i nie stanowi oferty określonej w art. 66 i następnych K.C.
Formularz kontaktowy