Lokal na wynajem
6 156 zł
81 m2














1 / 14
Szczegóły ogłoszenia
- Symbol oferty ASO-LW-40347
- Typ oferty lokal na wynajem
- Czynsz wynajmu 6 156 zł / miesiąc
- Charakterystyka mieszkania 81 m2
- Budynek biurowiec
- Rozkład mieszkania 2p piętro
- Instalacje dobre
- Kaucja trzymiesięczna
- Okna aluminiowe
- Stan lokalu bardzo dobry
- Winda Tak
Lokalizacja
- Adres dolnośląskie, Wrocław, Krzyki
Opis nieruchomości
Prowizje pokrywa Właściciel nieruchomości
Kompleks biurowy usytuowany jest w południowo-wschodniej części i Wrocławia
Biurowiec Klasy A
Całkowita powierzchnia budynku: 13 500m2
Kondygnacje - 6
Parking naziemny 40 miejsc
Parking podziemny 155 m2
Współczynnik miejsc parkingowych 1/70 mkw
Proponowana powierzchnia 58m2 -648 m2
Współczynnik części wspólnych 6%
Dostępność: 1.09.2025 r.
Czynsz najmu powierzchni biurowej – 76,00 PLN/ 1m2/m-c
Service charge - 23,00 PLN/1m2/m-c
Media według zużycia
1 miejsce postojowe 300,00PLN/ m-c
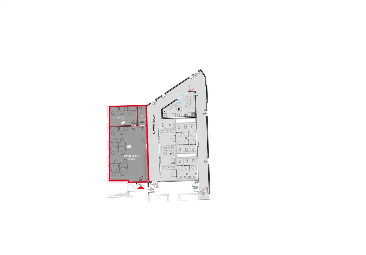
Prezentowana powierzchnia lokal 85m2 brutto
Open space, gabinet, serwerownia.
Umowa na min. 36 miesięcy.
Dostępne lokale na II p.
69m2
109m2
188m2
197m2
81m2
85m2
Udogodnienia dla najemców
Dostęp do powierzchni 24 h na dobę, 7 dni w tygodniu
Anna Skwarciak ASK OFFICE
+48 609 842 932
a.skwarciak@askhome.pl
Wszelkie podane przez Pośrednika informacje nie są ofertą w rozumieniu Kodeksu Cywilnego
Kompleks biurowy usytuowany jest w południowo-wschodniej części i Wrocławia
Biurowiec Klasy A
Całkowita powierzchnia budynku: 13 500m2
Kondygnacje - 6
Parking naziemny 40 miejsc
Parking podziemny 155 m2
Współczynnik miejsc parkingowych 1/70 mkw
Proponowana powierzchnia 58m2 -648 m2
Współczynnik części wspólnych 6%
Dostępność: 1.09.2025 r.
Czynsz najmu powierzchni biurowej – 76,00 PLN/ 1m2/m-c
Service charge - 23,00 PLN/1m2/m-c
Media według zużycia
1 miejsce postojowe 300,00PLN/ m-c
Prezentowana powierzchnia lokal 85m2 brutto
Open space, gabinet, serwerownia.
Umowa na min. 36 miesięcy.
Dostępne lokale na II p.
69m2
109m2
188m2
197m2
81m2
85m2
Udogodnienia dla najemców
- energooszczędny system ogrzewania
- optymalny dostęp do światła dziennego
- reprezentacyjne lobby
- ochrona i monitoring budynku
- system kontroli dostępu
- stacje ładowania samochodów elektrycznych
- miejsca parkingowe dla rowerów
- obiekt przystosowany dla niepełnosprawnych
Standard techniczny:
- sufity podwieszane lub alternatywne rozwiązania
- oprawy oświetleniowe LED (500 lux)
- wysokość pomieszczeń 2,75 m
- uchylne okna
- rolety okienne
- optymalny dostęp do światła dziennego
- podłoga podniesiona, wykładzina dywanowa w płytkach
- okablowanie strukturalne kat. 6a w puszkach podłogowych
- energooszczędny system ogrzewania, wentylacji i klimatyzacji
- BMS – system zarządzania budynkiem
- system kontroli dostępu, ochrona 24/7, monitoring
- systemy SAP, SSP
- 5 szybkobieżnych wind
- dwa niezależne źródła zasilania
Dostęp do powierzchni 24 h na dobę, 7 dni w tygodniu
Anna Skwarciak ASK OFFICE
+48 609 842 932
a.skwarciak@askhome.pl
Wszelkie podane przez Pośrednika informacje nie są ofertą w rozumieniu Kodeksu Cywilnego
Nota prawna
Opis oferty zawarty na stronie internetowej sporządzany jest na podstawie oględzin nieruchomości oraz informacji uzyskanych od właściciela, może podlegać aktualizacji i nie stanowi oferty określonej w art. 66 i następnych K.C.
Formularz kontaktowy