Lokal na wynajem



Szczegóły ogłoszenia
- Symbol oferty IGM-LW-19649
- Typ oferty lokal na wynajem
- Czynsz wynajmu 62 389 zł / miesiąc
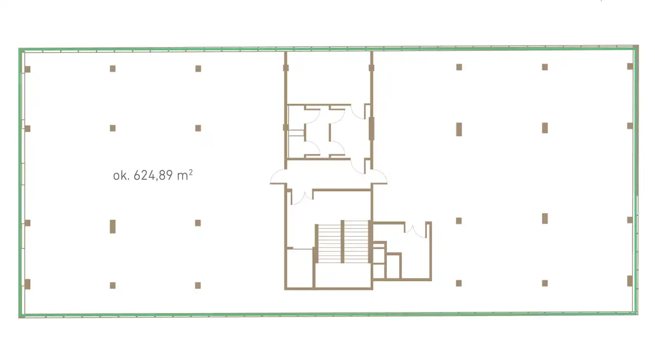
- Charakterystyka mieszkania 623.89 m2
- Budynek biurowiec; rok budowy: 2023
- Rozkład mieszkania 2p piętro
- Miejsce parkingowe Tak
- Stan lokalu do adaptacji
- Winda Tak
Lokalizacja
- Adres dolnośląskie, Wrocław, Krzyki
Opis nieruchomości
Zapraszamy do nowoczesnego biurowca z powierzchniami biurowo-usługowymi na wynajem. Biurowiec jest zatopiony zieleni parkowej korzysta z doskonałej lokalizacji w prestiżowej części Wrocławskiej dzielnicy Krzyki.
Nasze powierzchnie zostały wyposażone w nowoczesne rozwiązania technologiczne i informatyczne. Obiekt wyposażono w reprezentacyjną recepcję, windę, automatyczne drzwi wejściowe, system inteligentnego zarządzania KNX, który łączy wszystkie kluczowe funkcje dotyczące sterowania oświetleniem, wentylacją czy ogrzewaniem.
Zastosowane technologie budowlane dają gwarancję, że korzystanie z budynku jest bezpieczne, ekologicznie i pozwala obniżyć koszty użytkowania.
Wysoki standard wynajmowanych powierzchni biurowo-usługowych zapewnia komfortowe warunki pracy zarówno dla dużych międzynarodowych korporacji, jak i dla średnich i małych firm.
Na parterze znajdują się 2 lokale usługowe o powierzchniach 188,03 m2 oraz 299,39 m2, natomiast na 1 i 2 piętrze dostępne są duże przestrzenie "Open space" o powierzchniach 624,89 m2 oraz 623,89 m2. Te przestrzenie mogą być zaaranżowane zarówno jako jedna duża powierzchnia biurowa, jak i podzielone na dwa oddzielne "Open space" o średniej powierzchni około 312 m2 przeznaczone do własnej aranżacji.
Jeśli szukasz nowoczesnego biura w wysokiej jakości standardzie, skontaktuj się z nami i wynajmij powierzchnie biurowe w naszym biurowcu.
___
We invite you to a modern office building with office and service spaces for rent, along with an underground parking lot. Our facility offers usable area of 3000 m2.
The building is equipped with a reception desk, elevator, automatic entrance doors, and a KNX smart home system that combines all key functions related to intelligent management: lighting, ventilation, and heating. This makes the use of the building safe, environmentally friendly, and ultimately reduces operating costs.
On the ground floor, there are 2 service premises with areas of 188.03 m2 and 299.39 m2, while on the 1st and 2nd floors, there are large "Open space" areas with areas of 624.89 m2 and 623.89 m2. These spaces can be arranged as one large office space or divided into two separate "Open space" areas of approximately 312 m2 each for your own arrangement.
The high standard of our office and service spaces ensures comfortable working conditions for both large international corporations and medium and small businesses. Our spaces are equipped with modern technological and IT solutions, which further enhances the quality of our services.
If you are looking for a modern office with high-quality standards, please contact us and rent office spaces in our office building.