Lokal na wynajem
7 560 zł
126 m2







1 / 7
Szczegóły ogłoszenia
- Symbol oferty ASO-LW-40039
- Typ oferty lokal na wynajem
- Czynsz wynajmu 7 560 zł / miesiąc
- Charakterystyka mieszkania 126 m2
- Budynek biurowiec
- Rozkład mieszkania 3p piętro
- Kaucja trzymiesięczna
- Okna PCV
- Stan lokalu do odświeżenia
- Winda Tak
Lokalizacja
- Adres dolnośląskie, Wrocław, Fabryczna
Opis nieruchomości
Prowizje pokrywa Właściciel nieruchomosci
Kompleks biurowy usytuowany jest w zachodniej części Wrocławia.
Biurowiec Klasy A
Całkowita powierzchnia budynku: 7 510m2
Parking Wielopoziomowy na 809 miejsc postojowych
Proponowana powierzchnia 12m2 -600 m2
Współczynnik części wspólnych 8%
Dostępność: 1.07.2025 r.
Czynsz najmu powierzchni biurowej – 60,00 PLN/ 1m2/m-c
Service charge - 29,00 PLN/1m2/m-c
1 miejsce postojowe 180 PLN/ m-c - 240 PLN / m-c
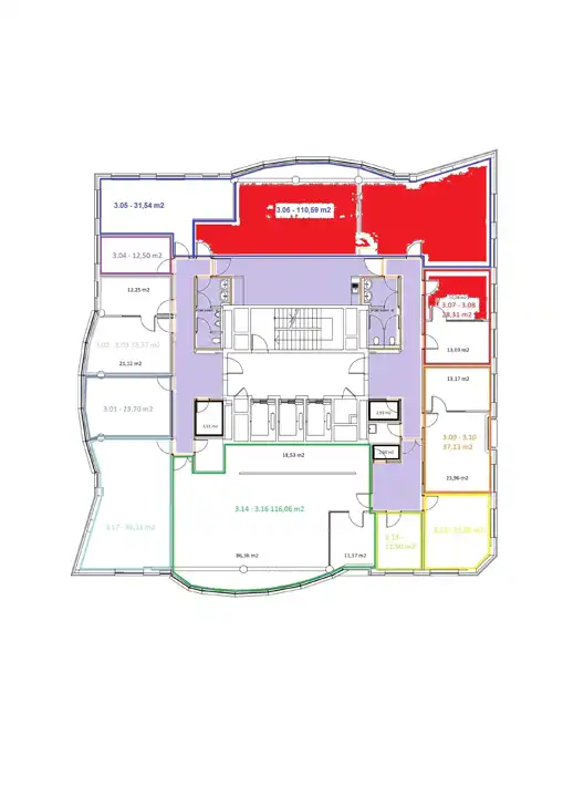
Prezentowany lokal o powierzchni 126 m2.
Open space, 110,59 m2 , gabinet 15,28m2
Socjal, łazienki w częściach wspólnych.
Proponowane lokale:
Standard:
- powierzchnia wykończona
- pokoje częściowo umeblowane
- w cenie czynszu najmu uwzględnione opłaty za media , Internet 10 mb/s
- wysokość pomieszczeń: 2,80m
- sufity podwieszane rastrowe
- instalacja SAP
- systemy klimatyzacji i wentylacji mechanicznej zabudowane w suficie
podwieszanym
- wentylacja realizowana przez centralę wentylacyjną z rekuperacją i
filtrami klasy 4
- klimatyzacja w każdym pokoju regulowana indywidualnie
- instalacja elektryczna z pełnym osprzętem elektroinstalacyjnym i
rozdzielnią na każdym piętrze
- instalacja teletechniczna CAT 5
- ogrzewanie: miejskie
- 3 windy
- system BMS
-recepcja
- salka konferencyjna
Dostęp do powierzchni 24 h na dobę, 7 dni w tygodniu
Anna Skwarciak ASK OFFICE
+48 609 842 932
a.skwarciak@askhome.pl
Kompleks biurowy usytuowany jest w zachodniej części Wrocławia.
Biurowiec Klasy A
Całkowita powierzchnia budynku: 7 510m2
Parking Wielopoziomowy na 809 miejsc postojowych
Proponowana powierzchnia 12m2 -600 m2
Współczynnik części wspólnych 8%
Dostępność: 1.07.2025 r.
Czynsz najmu powierzchni biurowej – 60,00 PLN/ 1m2/m-c
Service charge - 29,00 PLN/1m2/m-c
1 miejsce postojowe 180 PLN/ m-c - 240 PLN / m-c
Prezentowany lokal o powierzchni 126 m2.
Open space, 110,59 m2 , gabinet 15,28m2
Socjal, łazienki w częściach wspólnych.
Proponowane lokale:
- 61,8 m2
- 14,1 m2
- 32,6 m2
- 43 m2
- 21,88 m2
- 146 m2
- 26,4 m2
- 74,8 m2
- 184 m2
Standard:
- powierzchnia wykończona
- pokoje częściowo umeblowane
- w cenie czynszu najmu uwzględnione opłaty za media , Internet 10 mb/s
- wysokość pomieszczeń: 2,80m
- sufity podwieszane rastrowe
- instalacja SAP
- systemy klimatyzacji i wentylacji mechanicznej zabudowane w suficie
podwieszanym
- wentylacja realizowana przez centralę wentylacyjną z rekuperacją i
filtrami klasy 4
- klimatyzacja w każdym pokoju regulowana indywidualnie
- instalacja elektryczna z pełnym osprzętem elektroinstalacyjnym i
rozdzielnią na każdym piętrze
- instalacja teletechniczna CAT 5
- ogrzewanie: miejskie
- 3 windy
- system BMS
-recepcja
- salka konferencyjna
Dostęp do powierzchni 24 h na dobę, 7 dni w tygodniu
Anna Skwarciak ASK OFFICE
+48 609 842 932
a.skwarciak@askhome.pl
Nota prawna
Opis oferty zawarty na stronie internetowej sporządzany jest na podstawie oględzin nieruchomości oraz informacji uzyskanych od właściciela, może podlegać aktualizacji i nie stanowi oferty określonej w art. 66 i następnych K.C.
Formularz kontaktowy