Lokal na wynajem






Szczegóły ogłoszenia
- Symbol oferty CZN-LW-1163
- Typ oferty lokal na wynajem
- Czynsz wynajmu 7 900 zł / miesiąc
- Charakterystyka mieszkania 133 m2, 3 pokoje
- Budynek budynek wolnostojący; rok budowy: 1999
- Rozkład mieszkania parter piętro
- Media Ogrzewanie: miejskie; Woda: ciepła - miejska
- Czynsz Czynsz letni: 1435 zł
- Dojazd kostka brukowa
- Kaucja trzymiesięczna
- Okna PCV
- Stan lokalu wykończony
- Winda Tak
Lokalizacja
- Adres dolnośląskie, Wrocław, Krzyki
Opis nieruchomości
Oferta na wyłączność
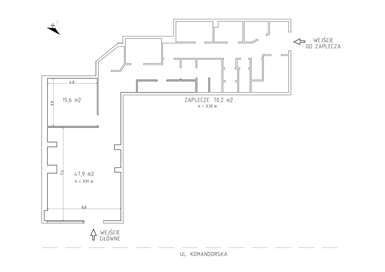
Lokal o funkcji handlowo - usługowej położony na parterze budynku wielorodzinnego z usługami w parterze - DACH BUD
Witryny wystawowe, klimatyzacja, 2 wejścia: bezpośrednio z chodnika oraz od zaplecza
Dobra ekspozycja, lokalizacja o wzmożonym natężeniu ruchu pieszego i kołowego
Ogólnodostępne miejsca parkingowe wzdłuż ulicy
Lokalizacja:
- Wrocław - Krzyki, Południe, ul. Komandorska;
- strefa śródmiejska, odległość od ścisłego centrum (Rynku) niespełna 2 km;
- w najbliższym otoczeniu Dworzec PKS i PKP Wrocław Główny, CH Wroclavia, EPI Market, Uniwersytet Ekonomiczny, Sąd Rejonowy, Izba Skarbowa oraz hotele i biurowce klasy A;
- w bezpośrednim sąsiedztwie przystanki komunikacji miejskiej oraz punkty handlowo - usługowe różnych branż.
Charakterystyka:
- budynek wielorodzinny z usługami w parterze wzniesiony w 1999 roku przez przedsiębiorstwo DACH BUD;
- parter, powierzchnia użytkowa lokalu 133 m2, na którą składają się: sala sprzedaży (63,5 m2) oraz zaplecze z wydzielonymi pomieszczeniami sanitarnymi i magazynowymi (70m2);
- wysokość lokalu: 3,9 m;
- możliwość dowolnej aranżacji powierzchni przez najemcę (ścianki działowe wykonane w technologii lekkiej G-K);
- na elewacji budynku przewidziane miejsce pod montaż reklamy / szyldu podświetlanego;
- stolarka okienna i drzwiowa PCV;
- klimatyzacja;
- wszystkie media miejskie.
Czynsz najmu: 7 900 zł netto/m-c + 23% VAT.
Opłaty eksploatacyjne: 1 435 zł netto/m-c + media wg zużycia + 23% VAT.
Wymagana trzymiesięczna kaucja gwarancyjna.
Niniejsza informacja nie stanowi oferty handlowej w rozumieniu Kodeksu cywilnego.
Pośrednik odpowiedzialny zawodowo za realizację umowy pośrednictwa: Piotr Czajczyński - licencja zawodowa nr 10273.