Lokal na wynajem




























Szczegóły ogłoszenia
- Symbol oferty IGM-LW-20572
- Typ oferty lokal na wynajem
- Czynsz wynajmu 8 880 zł / miesiąc
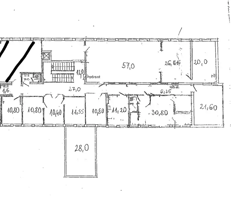
- Charakterystyka mieszkania 296 m2
- Budynek biurowo-usługowy; rok budowy: 1970
- Rozkład mieszkania 1p piętro
- Media Ogrzewanie: C.O. GAZOWE; Woda: jest; Kanalizacja: tak; Prąd: jest; Gaz: tak - miejski
- Miejsce parkingowe Tak
- Dojazd asfalt
- Kaucja do uzgodnienia
- Otoczenie działki zabudowane
Lokalizacja
- Adres dolnośląskie, Wrocław, Psie Pole
Opis nieruchomości
Biuro na wynajem – ok 296 m², 12 pomieszczeń, idealne dla Twojej firmy
Oferujemy na wynajem przestronną powierzchnię biurową o łącznej powierzchni około 296 m², składającą się z 12 funkcjonalnych pomieszczeń, idealną dla firm poszukujących komfortowego, dobrze skomunikowanego miejsca na działalność biurową. Biuro zlokalizowane w prestiżowej i łatwo dostępnej części Wrocławia, łączy wygodę pracy w centrum miasta z odpowiednią przestrzenią do efektywnego rozwoju Twojego biznesu.
Charakterystyka biura:
- 12 pomieszczeń, w tym przestronne biura, sale konferencyjne oraz pomieszczenia do pracy indywidualnej i zespołowej.
- Elastyczna aranżacja przestrzeni – możliwość dostosowania układu pomieszczeń do potrzeb firmy. Biuro może pełnić różne funkcje, od klasycznych biur, przez sale konferencyjne, aż po przestrzenie coworkingowe.
Atuty lokalizacji:
- Świetna komunikacja – biuro znajduje się w doskonałej lokalizacji, blisko głównych dróg i środków transportu publicznego, co zapewnia łatwy dostęp zarówno dla pracowników, jak i klientów.
- Bliskość centrum – położenie blisko wrocławskiego centrum sprawia, że Twoja firma będzie łatwo dostępna z różnych części miasta.
- Rozwinięta infrastruktura – w okolicy znajdują się liczne sklepy, restauracje, kawiarnie oraz inne udogodnienia, co czyni tę lokalizację jeszcze bardziej atrakcyjną.
Idealne przeznaczenie biura:
- Biuro firmy – przestronny układ idealny do pracy indywidualnej oraz zespołowej, z możliwością podziału na strefy pracy.
- Call center – ze względu na liczbę pomieszczeń oraz dobrą akustykę, biuro doskonale sprawdzi się jako miejsce pracy dla większego zespołu.
- Przestrzeń coworkingowa – doskonała propozycja dla firm szukających elastycznej przestrzeni biurowej, umożliwiającej wynajem na godziny lub dni.
- Szkoła, centrum szkoleniowe lub konferencyjne – biuro może być również idealne na organizowanie szkoleń, warsztatów czy spotkań biznesowych dzięki przestronności oraz możliwości aranżacji.
Dodatkowe informacje:
- Czynsz najmu: 30 zł/m2
- Opłaty dodatkowe: 10 zł/m2 media
Biuro to doskonała przestrzeń dla rozwijającej się firmy, oferująca komfortowe warunki pracy oraz świetną lokalizację. Zapraszam do kontaktu i umówienia się na prezentację!
Więcej szczegółów pod nr tel.:
514-706-683
Anna Szkopek
a.szkopek@iglica.pl
Iglica Nieruchomości
ul. Zaolziańśka 1
53-334 Wrocław