Lokal na wynajem
9 240 zł
140 m2
















1 / 16
Szczegóły ogłoszenia
- Symbol oferty ASO-LW-39224
- Typ oferty lokal na wynajem
- Czynsz wynajmu 9 240 zł / miesiąc
- Charakterystyka mieszkania 140 m2
- Budynek biurowiec
- Rozkład mieszkania 1p piętro
- Instalacje dobre
- Kaucja trzymiesięczna
- Okna PCV
- Stan lokalu bardzo dobry
- Winda Tak
Lokalizacja
- Adres dolnośląskie, Wrocław, Stare Miasto
Opis nieruchomości
Prowizje pokrywa Właściciel nieruchomości
Kompleks biurowy usytuowany w Centrum Wrocławia.
Biurowiec Klasy A
Całkowita powierzchnia budynku: 3 939 m2
Parking podziemny 19 miejsc.
Proponowana powierzchnia 140m2 -800 m2
Współczynnik części wspólnych 20%
Dostępność: 1.01.2025r.
Czynsz najmu powierzchni biurowej – 15,25 EUR/ 1m2/m-c
Service charge - 28 PLN/1m2/m-c
Media według zużycia
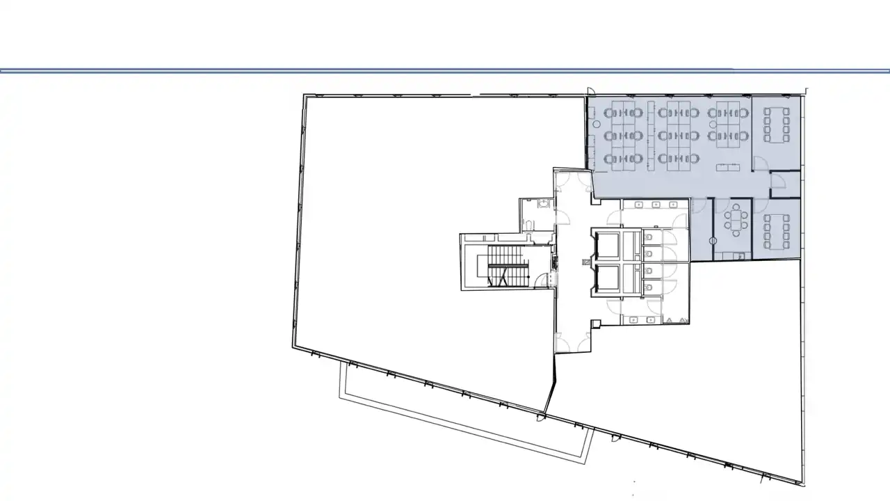
Prezentowany lokal o powierzchni 140 m2.
Open space, gabinet, aneks kuchenny, serwerownia, archiwum.
Toalety w częściach wspólnych.
Proponowane lokale:
I p.- 140 m2
Ip.- 331m2
IVp - 328m2
Standard:
Dostęp do powierzchni 24 h na dobę, 7 dni w tygodniu
Anna Skwarciak ASK OFFICE
+48 609 842 932
a.skwarciak@askhome.pl
Wszelkie podane przez Pośrednika informacje nie są ofertą w rozumieniu Kodeksu Cywilnego
Kompleks biurowy usytuowany w Centrum Wrocławia.
Biurowiec Klasy A
Całkowita powierzchnia budynku: 3 939 m2
Parking podziemny 19 miejsc.
Proponowana powierzchnia 140m2 -800 m2
Współczynnik części wspólnych 20%
Dostępność: 1.01.2025r.
Czynsz najmu powierzchni biurowej – 15,25 EUR/ 1m2/m-c
Service charge - 28 PLN/1m2/m-c
Media według zużycia
Prezentowany lokal o powierzchni 140 m2.
Open space, gabinet, aneks kuchenny, serwerownia, archiwum.
Toalety w częściach wspólnych.
Proponowane lokale:
I p.- 140 m2
Ip.- 331m2
IVp - 328m2
Standard:
- Kontrola dostępu
- Podnoszona podłoga
- Ochrona 24h
- Otwierane okna
- System chłodzenia i wymiany powietrza
- Okablowanie elektryczne
- Łącza światłowodowe
- Czujnik dymu i ciepła
- BMS
Dostęp do powierzchni 24 h na dobę, 7 dni w tygodniu
Anna Skwarciak ASK OFFICE
+48 609 842 932
a.skwarciak@askhome.pl
Wszelkie podane przez Pośrednika informacje nie są ofertą w rozumieniu Kodeksu Cywilnego
Nota prawna
Opis oferty zawarty na stronie internetowej sporządzany jest na podstawie oględzin nieruchomości oraz informacji uzyskanych od właściciela, może podlegać aktualizacji i nie stanowi oferty określonej w art. 66 i następnych K.C.
Formularz kontaktowy