Lokal na wynajem
9 700 zł
97 m2





1 / 5
Szczegóły ogłoszenia
- Symbol oferty IGM-LW-21106
- Typ oferty lokal na wynajem
- Czynsz wynajmu 9 700 zł / miesiąc
- Charakterystyka mieszkania 97 m2
- Budynek apartamentowiec; rok budowy: 2023
- Rozkład mieszkania parter piętro
- Media Ogrzewanie: centralne
- Dojazd asfaltowa/kostka
- Instalacje brak
- Kaucja trzymiesięczna
- Okna aluminiowe
- Stan lokalu do wykończenia
- Winda Tak
Lokalizacja
- Adres dolnośląskie, Wrocław, Krzyki
Opis nieruchomości
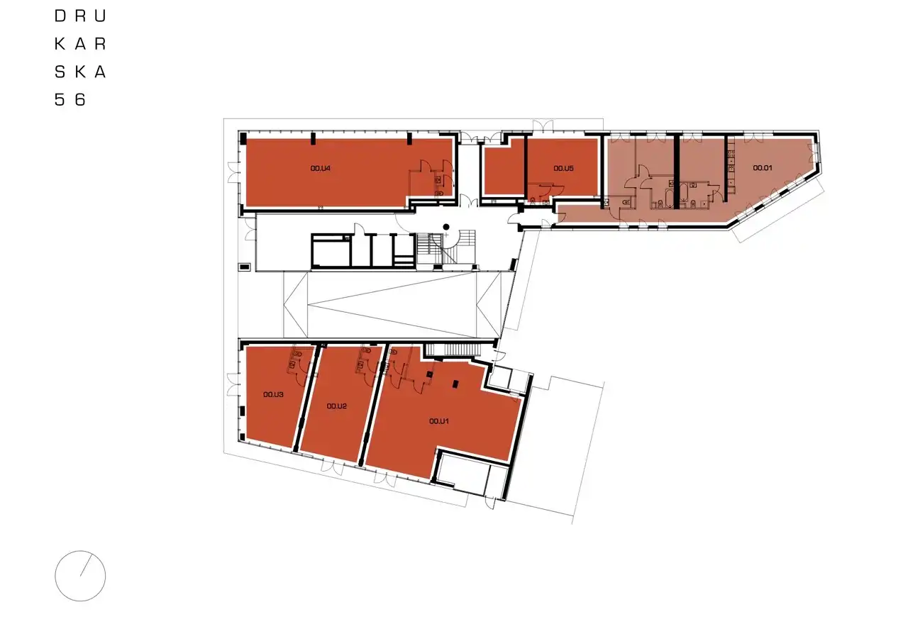
NAROŻNY LOKAL DO WYNAJĘCIA. Wrocław, Krzyki, ul. Drukarska
Przedmiotem oferty jest wynajem atrakcyjnego lokalu handlowo-usługowego o wysokich walorach estetycznych oraz użytkowych. Lokal narożny, usytuowany na parterze prestiżowego apartamentowca, realizowanego przez dewelopera Okre.
Lokalizacja, Centrum, Południe
Lokal znajduje się na przy ulicy Drukarskiej 56 we Wrocławiu. W bliskim sąsiedztwie intensywnej zabudowy mieszkaniowej oraz komercyjnej. W bliskim sąsiedztwie biegną główne arterie komunikacyjne Wrocławia - ulica Powstańców Śląskich, Rondo Powstańców Śląskich, ulica Kamienna, ulica Ślężna, aleja Wiśniowa, aleja Hallera czy ulica Borowska.
Przeznaczenie - medycyna, usługi, handel, stomatologia, poradnie
W lokalu można prowadzić nieuciążliwą działalność w branżach handlowej, usługowej, edukacyjnej czy medycznej. Lokal doskonale nadaje się na salon fryzjerski, kosmetyczny, księgarnię, cukiernię, reprezentacyjne biuro, kancelarię notarialną, aptekę, itp.
Standard
Lokal będzie oddany w standardzie deweloperskim do własnej aranżacji.
Czynsz najmu:
Podana cena jest wartością netto. Należy doliczyć 23% VAT
Oferta własna Iglica Nieruchomości.
Wynajem bezpośredni.
Zapraszamy do kontaktu
Przedmiotem oferty jest wynajem atrakcyjnego lokalu handlowo-usługowego o wysokich walorach estetycznych oraz użytkowych. Lokal narożny, usytuowany na parterze prestiżowego apartamentowca, realizowanego przez dewelopera Okre.
Lokalizacja, Centrum, Południe
Lokal znajduje się na przy ulicy Drukarskiej 56 we Wrocławiu. W bliskim sąsiedztwie intensywnej zabudowy mieszkaniowej oraz komercyjnej. W bliskim sąsiedztwie biegną główne arterie komunikacyjne Wrocławia - ulica Powstańców Śląskich, Rondo Powstańców Śląskich, ulica Kamienna, ulica Ślężna, aleja Wiśniowa, aleja Hallera czy ulica Borowska.
Przeznaczenie - medycyna, usługi, handel, stomatologia, poradnie
W lokalu można prowadzić nieuciążliwą działalność w branżach handlowej, usługowej, edukacyjnej czy medycznej. Lokal doskonale nadaje się na salon fryzjerski, kosmetyczny, księgarnię, cukiernię, reprezentacyjne biuro, kancelarię notarialną, aptekę, itp.
Standard
Lokal będzie oddany w standardzie deweloperskim do własnej aranżacji.
Czynsz najmu:
Podana cena jest wartością netto. Należy doliczyć 23% VAT
Oferta własna Iglica Nieruchomości.
Wynajem bezpośredni.
Zapraszamy do kontaktu
Nota prawna
Opis oferty zawarty na stronie internetowej sporządzany jest na podstawie oględzin nieruchomości oraz informacji uzyskanych od właściciela, może podlegać aktualizacji i nie stanowi oferty określonej w art. 66 i następnych K.C.
Formularz kontaktowy