Lokal na wynajem
9 800 zł
175 m2











1 / 11
Szczegóły ogłoszenia
- Symbol oferty ASO-LW-40975
- Typ oferty lokal na wynajem
- Czynsz wynajmu 9 800 zł / miesiąc
- Charakterystyka mieszkania 175 m2
- Budynek biurowiec
- Rozkład mieszkania 4p piętro
- Instalacje nowe
- Kaucja dwumiesięczna
- Okna aluminiowe
- Winda Tak
Lokalizacja
- Adres dolnośląskie, Wrocław, Stare Miasto
Opis nieruchomości
Prowizje pokrywa właściciel nieruchomości
Kompleks biurowy usytuowany w Centrum Wrocławia
Biurowiec Klasy A
Całkowita powierzchnia budynku: 2 000 m2
Parking abonamentowany
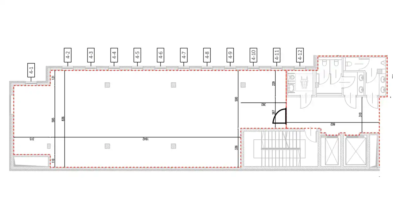
Proponowana powierzchnia 175 m2
Współczynnik części wspólnych -25 m2
Open space, gabinet, salka konferencyjna.
Dostępność: do uzgodnienia
Czynsz najmu powierzchni biurowej – 56,00 PLN/ 1m2/m-c
Opłata service charge – 20,00 PLN/ 1m2 /m-c
Energia, woda według zużycia
Standard:
- powierzchnia wykończona
- wysokość pomieszczeń: 2,80 m
- sufity podwieszane
- instalacja SAP
- systemy klimatyzacji i wentylacji
- klimatyzacja w każdym pokoju regulowana indywidualnie
- instalacja elektryczna z pełnym osprzętem elektroinstalacyjnym
- instalacja teletechniczna
- ogrzewanie: system klimatyzacji z funkcja ogrzewania
- 2 windy
- możliwość montażu banera reklamowego
-recepcja ogólnobudynkowa
- możliwość odkupienia mebli i sprzętów od obecnego najemcy
- dostęp do budynku i lokalu – na kod lub karty magnetyczne (dla każdego pracownika) – 24/7 – bez ograniczeń
Anna Skwarciak ASK OFFICE
+48 609 842 932
a.skwarciak@askhome.pl
Więcej ofert na stronie: www.askhome.pl
Wszelkie podane przez Pośrednika informacje nie są ofertą w rozumieniu Kodeksu Cywilnego
Kompleks biurowy usytuowany w Centrum Wrocławia
Biurowiec Klasy A
Całkowita powierzchnia budynku: 2 000 m2
Parking abonamentowany
Proponowana powierzchnia 175 m2
Współczynnik części wspólnych -25 m2
Open space, gabinet, salka konferencyjna.
Dostępność: do uzgodnienia
Czynsz najmu powierzchni biurowej – 56,00 PLN/ 1m2/m-c
Opłata service charge – 20,00 PLN/ 1m2 /m-c
Energia, woda według zużycia
Standard:
- powierzchnia wykończona
- wysokość pomieszczeń: 2,80 m
- sufity podwieszane
- instalacja SAP
- systemy klimatyzacji i wentylacji
- klimatyzacja w każdym pokoju regulowana indywidualnie
- instalacja elektryczna z pełnym osprzętem elektroinstalacyjnym
- instalacja teletechniczna
- ogrzewanie: system klimatyzacji z funkcja ogrzewania
- 2 windy
- możliwość montażu banera reklamowego
-recepcja ogólnobudynkowa
- możliwość odkupienia mebli i sprzętów od obecnego najemcy
- dostęp do budynku i lokalu – na kod lub karty magnetyczne (dla każdego pracownika) – 24/7 – bez ograniczeń
Anna Skwarciak ASK OFFICE
+48 609 842 932
a.skwarciak@askhome.pl
Więcej ofert na stronie: www.askhome.pl
Wszelkie podane przez Pośrednika informacje nie są ofertą w rozumieniu Kodeksu Cywilnego
Nota prawna
Opis oferty zawarty na stronie internetowej sporządzany jest na podstawie oględzin nieruchomości oraz informacji uzyskanych od właściciela, może podlegać aktualizacji i nie stanowi oferty określonej w art. 66 i następnych K.C.
Formularz kontaktowy