Mieszkanie na sprzedaż
0 zł
66 m2






















1 / 22
Szczegóły ogłoszenia
- Symbol oferty OFN-MS-13643
- Typ oferty mieszkanie na sprzedaż
- Cena 0 zł
- Charakterystyka mieszkania 65.54 m2
- Budynek kamienica
- Rozkład mieszkania 1p piętro
- Czynsz Czynsz letni: 400 zł
- Okna drewniane
- Stan lokalu do generalnego remontu
Lokalizacja
- Adres dolnośląskie, Wrocław, Stare Miasto
Opis nieruchomości
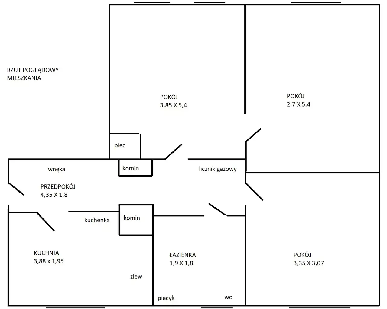
Sprzedaż 5/6 udziału w samodzielnym lokalu mieszkalnym o powierzchni 65,56 mkw składającym się z 3 pokoi, kuchni, łazienki, przedpokoju, usytuowanym na I piętrze w zabytkowej kamienicy.
Lokal do kapitalnego remontu.
Kamienica wyremontowana ( nowy dach, pięknie odrestaurowana fasada, ładna klatka schodowa ), ładne podwórze zamykane bramą. Doskonałe miejsce do życia ale również na wynajem w systemie najmu krótkoterminowego.
Ulica świetnie rozpoznawalna z gastronomią na światowym poziomie, blisko Uniwersytetu.
Księga wieczysta wolna od wpisów.
Więcej szczegółów na indywidualnym spotkaniu.
Zapraszamy profesjonalistów z doświadczeniem.
Numer oferty w biurze OFN-LW-13643
Niniejsza oferta, nie jest ofertą handlową w rozumieniu Kodeksu Cywilnego
OFFICIUM-NIERUCHOMOŚCI, Dorota Kamecka-Skiba tel. 502 504 710, Pośrednik licencja 10411, Rzeczoznawca Majątkowy licencja 5010
więcej ofert www.officium-nieruchomosci.pl
Wszystkie prawa autorskie zastrzeżone. Kopiowanie, publikowanie, publiczne rozpowszechnianie czy powielanie wszelkich materiałów - w tym zdjęć, grafik, tekstów bez pisemnej zgody Officium Nieruchomości jest zabronione.
Officium Nieruchomości jest na Facebooku.
POLUB NAS! https://www.facebook.com/pages/Officium-Nieruchomosci
Lokal do kapitalnego remontu.
Kamienica wyremontowana ( nowy dach, pięknie odrestaurowana fasada, ładna klatka schodowa ), ładne podwórze zamykane bramą. Doskonałe miejsce do życia ale również na wynajem w systemie najmu krótkoterminowego.
Ulica świetnie rozpoznawalna z gastronomią na światowym poziomie, blisko Uniwersytetu.
Księga wieczysta wolna od wpisów.
Więcej szczegółów na indywidualnym spotkaniu.
Zapraszamy profesjonalistów z doświadczeniem.
Numer oferty w biurze OFN-LW-13643
Niniejsza oferta, nie jest ofertą handlową w rozumieniu Kodeksu Cywilnego
OFFICIUM-NIERUCHOMOŚCI, Dorota Kamecka-Skiba tel. 502 504 710, Pośrednik licencja 10411, Rzeczoznawca Majątkowy licencja 5010
więcej ofert www.officium-nieruchomosci.pl
Wszystkie prawa autorskie zastrzeżone. Kopiowanie, publikowanie, publiczne rozpowszechnianie czy powielanie wszelkich materiałów - w tym zdjęć, grafik, tekstów bez pisemnej zgody Officium Nieruchomości jest zabronione.
Officium Nieruchomości jest na Facebooku.
POLUB NAS! https://www.facebook.com/pages/Officium-Nieruchomosci
Nota prawna
Opis oferty zawarty na stronie internetowej sporządzany jest na podstawie oględzin nieruchomości oraz informacji uzyskanych od właściciela, może podlegać aktualizacji i nie stanowi oferty określonej w art. 66 i następnych K.C.
Kalkulator kredytowy
Formularz kontaktowy