Mieszkanie na sprzedaż
1 045 000 zł
48 m2




















1 / 20
Szczegóły ogłoszenia
- Symbol oferty MAKR-MS-173
- Typ oferty mieszkanie na sprzedaż
- Cena 1 045 000 zł
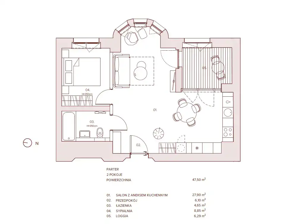
- Charakterystyka mieszkania 47.5 m2, 2 pokoje
- Budynek apartamentowiec; rok budowy: 2025
- Rozkład mieszkania wysoki parter piętro
- Media Ogrzewanie: miejskie; Woda: jest; Gaz: brak
- Balkon loggia
- Czynsz Czynsz letni: 700 zł
- Dojazd asfalt
- Instalacje nowe
- Okna drewniane
- Otoczenie działki zabudowane
- Plac zabaw Tak
- Stan lokalu deweloperski
- Technologia budowlana cegła
- Winda Tak
Lokalizacja
- Adres dolnośląskie, Wrocław, Krzyki
Opis nieruchomości
- WYJĄTKOWA LOKALIZACJA
- WYSOKI STANDARD WYKOŃCZENIA
- APARTAMENTOWIEC
- ZABYTKOWY BUDYNEK PO REWITALIZACJI
- LOGGIA
OPIS NIERUCHOMOŚCI:
Mam przyjemność zaprezentować Państwu dwupokojowy, przestronny apartament zlokalizowany w zabytkowym, odrestaurowanym budynku SUDEA przy ulicy Sudeckiej 96.
Wyjątkowa lokalizacja, pomiędzy Wieżą Ciśnień oraz wieżą Kościoła św. Augustyna. Obie budowle od początku swojego istnienia stanowią wizytówki i symbole tej części Wrocławia.
Budynek wykończony materiałami wysokiej jakości, elewacja ceglana po renowacji przeplatana zdobieniami z piaskowca. Drewniane okna, w korytarzach kamienne posadzki w kolorze ciemnej zieleni, na klatkach schodowych, zabytkowe, odrestaurowane, żeliwne balustrady.
Sam apartament jest bardzo przestronny, wysokość 390 cm. Dodatkowego uroku dodaje wykusz powiększając jego wnętrze i doświetlając je.
Mieszkanie składa się z:
- salonu z aneksem kuchennym o pow. 27,9 m²
- sypialni o pow. 8,85 m²
- łazienki o pow. 4,65 m²
- przedpokoju o pow. 6,10 m²
LOKALIZACJA:
Ulica Sudecka to jedna z alei promieniście odchodzących od Placu Powstańców Śląskich, serca Krzyków. Sudea mieści się na skraju historycznego willowego osiedla Borek.
Alejami pełnymi drzew, wśród architektonicznych perełek spacerujemy stąd do trzech okolicznych parków – Skowroniego, Andersa i perły tej części miasta – zabytkowego Parku Południowego.
Nad Sudeą i okolicą górują Wieża Ciśnień oraz wieża Kościoła św. Augustyna. Obie budowle od początku swojego istnienia stanowią wizytówki i symbole tej części Wrocławia.
Atrakcyjne położenie sprawia, że jest to wymarzony adres dla osób ceniących miejski styl życia w otoczeniu zieleni. Do Wrocławskiego Rynku jest około 2,5 km. W najbliższej okolicy w pełni rozwinięta infrastruktura.
OPŁATY i KONTAKT:
Miesięczny czynsz administracyjny wynosi około 700,00 zł, w którym znajdują się już praktycznie wszystkie opłaty związane z utrzymaniem mieszkania takie jak: zaliczki na ogrzewanie, zaliczki na wodę zimną i ciepłą wynagrodzenie zarządcy, fundusz remontowy, utrzymanie części wspólnych itp.
Szanowni Państwo, zawsze dążymy do tego, aby informacje o proponowanych przez nas ofertach były jak najbardziej dokładne i aktualne. Warto jednak mieć na uwadze fakt, iż opis oferty zawarty na stronie internetowej sporządzany jest na podstawie oględzin nieruchomości oraz informacji uzyskanych od właściciela, może podlegać aktualizacji i nie stanowi oferty określonej w art. 66 i następnych K.C.
Nota prawna
Opis oferty zawarty na stronie internetowej sporządzany jest na podstawie oględzin nieruchomości oraz informacji uzyskanych od właściciela, może podlegać aktualizacji i nie stanowi oferty określonej w art. 66 i następnych K.C.
Kalkulator kredytowy
Formularz kontaktowy