Mieszkanie na sprzedaż




Szczegóły ogłoszenia
- Symbol oferty NHM-MS-36818
- Typ oferty mieszkanie na sprzedaż
- Cena 1 049 625 zł
- Charakterystyka mieszkania 83.97 m2, 3 pokoje
- Budynek apartamentowiec
- Rozkład mieszkania 2p piętro
- Balkon jest
- Ilość sypialni 2
- Winda Tak
Lokalizacja
- Adres dolnośląskie, Wrocław, Fabryczna
Opis nieruchomości
Nowoczesne mieszkanie z antresolą – 83,97 m² | 1 049 625 zł
Przestronne i stylowe mieszkanie z antresolą, położone w kameralnej inwestycji na Muchoborze Wielkim. To doskonała propozycja dla osób, które cenią nowoczesny design, funkcjonalny układ i komfort życia w dobrze skomunikowanej części Wrocławia.
Wysoki salon z dużymi oknami i otwartą antresolą tworzy unikalny klimat — mieszkanie jest pełne światła i przestrzeni.
83,97 m²
Powierzchnia użytkowa
1 049 625 zł
Cena brutto
Status: Dostępne
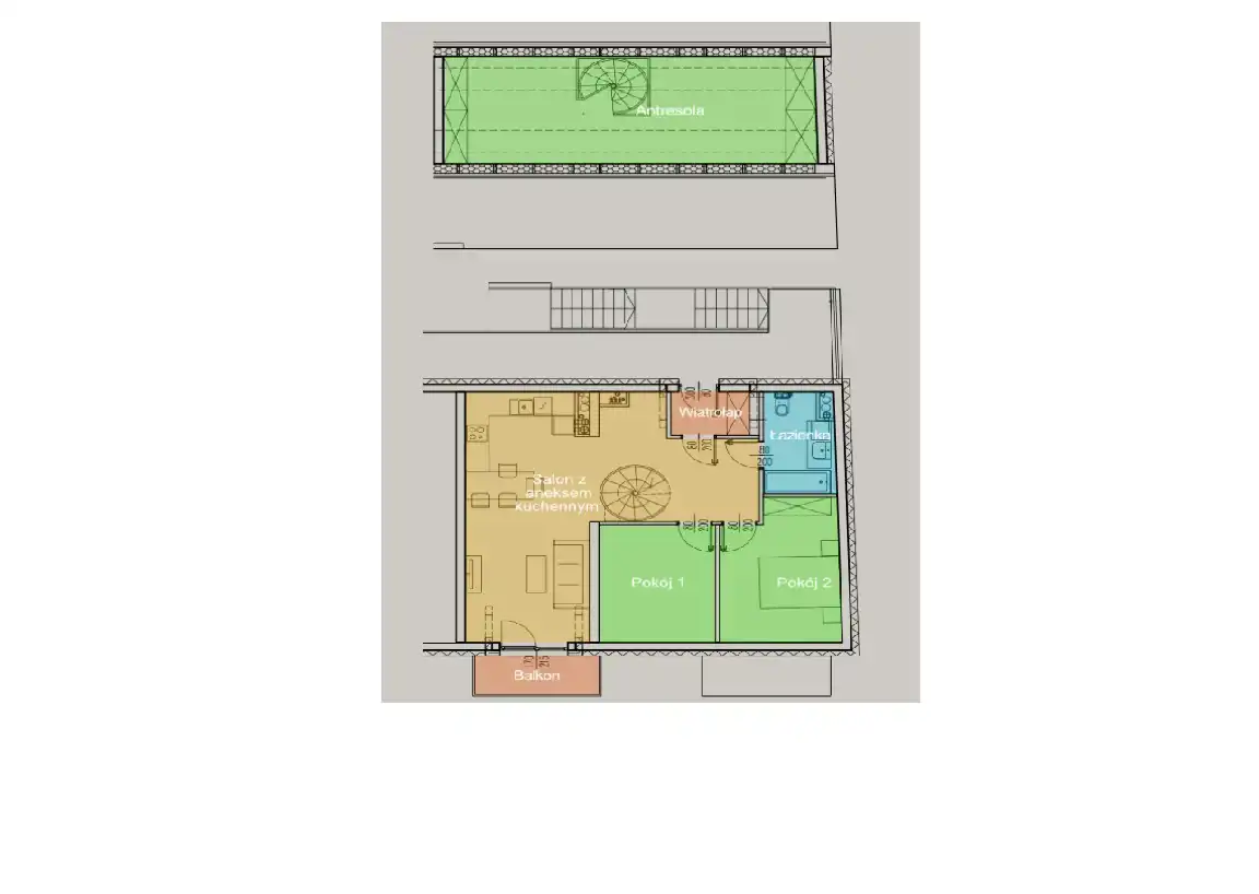
Układ pomieszczeń
-
Wiatrołap – 3,17 m²
-
Łazienka – 5,03 m²
-
Przedpokój – 13,34 m²
-
Pokój 1 – 9,78 m²
-
Pokój 2 – 12,12 m²
-
Salon – 14,18 m²
-
Antresola – 17,37 m²
Parametry nieruchomości
-
Cena: 1 049 625 zł brutto
-
Powierzchnia użytkowa: 83,97 m²
-
Antresola: 17,37 m²
-
Cena za m²: ok. 12 500 zł/m²
-
Piętro: 2
-
Status: Dostępne
Atuty mieszkania
-
Nowoczesna antresola
Dodatkowa, otwarta przestrzeń z możliwością aranżacji na sypialnię, biuro lub strefę relaksu. -
Wysoki salon i duże przeszklenia
Zapewniają doskonałe doświetlenie wnętrz i wyjątkowe poczucie przestrzeni. -
Funkcjonalny układ
Wyraźny podział na strefę dzienną i prywatną – idealne rozwiązanie dla pary, rodziny lub osób pracujących z domu. -
Kameralne osiedle
Inwestycja składa się z dwóch nowoczesnych budynków z halą garażową, komórkami lokatorskimi i miejscami postojowymi. -
Świetna lokalizacja – Muchobór Wielki
W pobliżu sklepy, szkoły, komunikacja miejska i tereny rekreacyjne – wszystko, czego potrzebujesz w zasięgu spaceru.
Lokalizacja i otoczenie
📍 Muchobór Wielki – Wrocław
Połączenie wygody miejskiego życia z bliskością natury:
-
Szkoła podstawowa – 400 m
-
Apteka – 400 m
-
Lidl / Biedronka – 1200 m
-
Centrum handlowe N-Park – 1400 m
-
Fitness Academy Gagarina – 1400 m
-
Beach Bar Hydroplan – 1300 m
-
Park Tysiąclecia – 2000 m
-
Park Grabiszyński – 2600 m
Dlaczego warto?
To mieszkanie to wyjątkowe połączenie funkcjonalności i stylu. Antresola dodaje przestrzeni lekkości i charakteru, a lokalizacja na Muchoborze Wielkim gwarantuje spokój, bezpieczeństwo i wygodę codziennego życia.
Idealne dla osób, które chcą mieszkać nowocześnie, z klimatem i blisko miejskich udogodnień.
Kontakt
Justyna, N-Home Nieruchomości
884 707 192
justyna@n-home.pl
Współpracując z nami, otrzymasz kompleksowe wsparcie przy zakupie – od doradztwa kredytowego, przez formalności, po rabatowe oferty ekip wykończeniowych i sklepów budowlanych.
Ogłoszenie nie stanowi oferty handlowej w rozumieniu art. 66 §1 Kodeksu cywilnego.