Mieszkanie na sprzedaż





Szczegóły ogłoszenia
- Symbol oferty NIDO-MS-353
- Typ oferty mieszkanie na sprzedaż
- Cena 1 156 626 zł
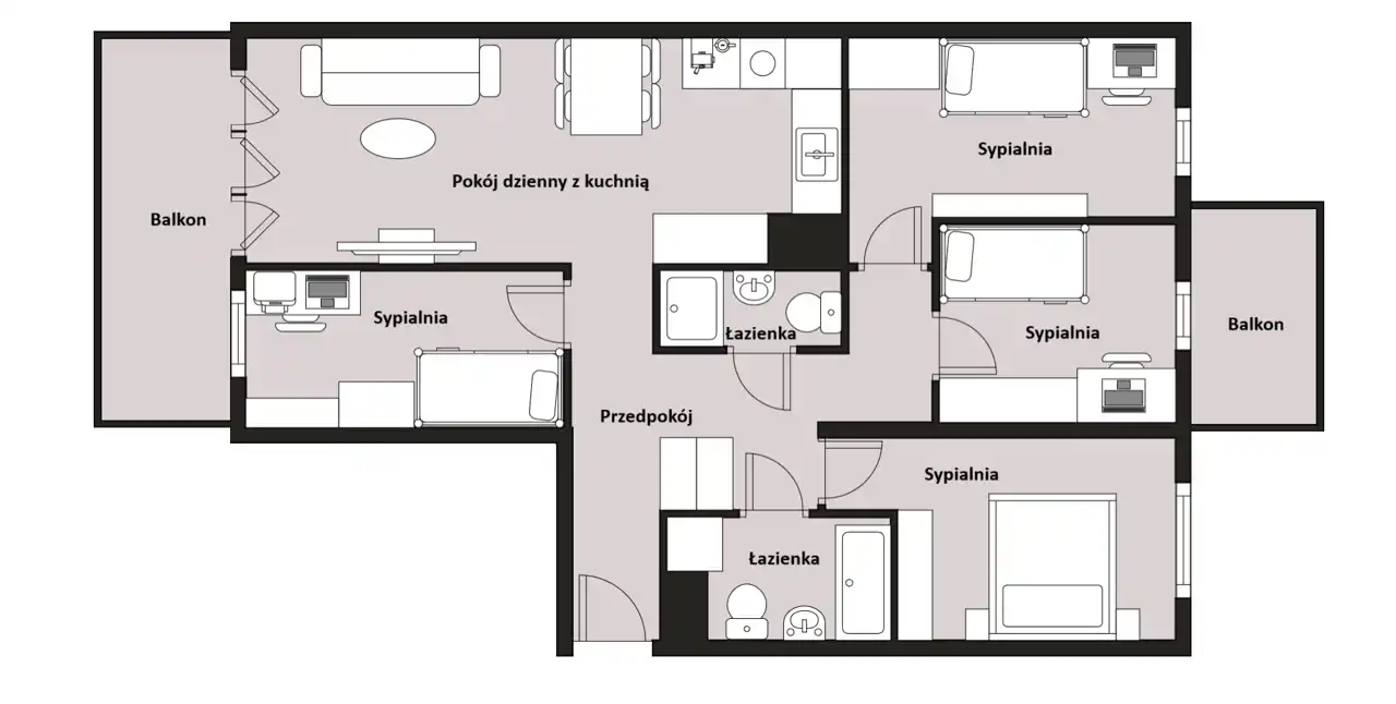
- Charakterystyka mieszkania 91.4 m2, 5 pokoi
- Budynek blok; rok budowy: 2026
- Rozkład mieszkania 6p piętro
- Media Ogrzewanie: C.O. miejskie; Woda: ciepła - miejska; Gaz: brak
- Balkon jest
- Dojazd asfalt
- Garaż garaż pod budynkiem
- Ilość sypialni 4
- Instalacje nowe
- Okna PCV
- Otoczenie osiedle
- Plac zabaw Tak
- Stan lokalu deweloperski
- Winda Tak
Lokalizacja
- Adres dolnośląskie, Wrocław m., Wrocław
Opis nieruchomości
Brak podatku 2%PCC oraz prowizji!
To idealne miejsce dla tych, którzy cenią sobie komfort oraz dostęp do wszystkich udogodnień miejskiego życia.
Mieszkanie 5 pokojowe o powierzchni 91,40 m².
Lokal usytuowany na 6 piętrze w budynku z windą.
Planowany termin realizacji budynku na wiosnę 2026 r
Opis mieszkania:
- salon z wyjściem na balkon
- łazienka z osobną toaletą
- cztery ustawne sypialnie
- dwa balkony
- wystawa okienna skierowana na wschód oraz zachód
- wystawa okienna sypialni od wschodu, salon od zachodu
- mieszkanie środkowe, dwustronne - na przestrzał
Cena mieszkania: 1 230 453 zł w promocji 1 156 626 zł
Oferuję atrakcyjne systemy płatności oraz możliwość negocjacji.
Oferuję szeroki wybór mieszkań 4 i 5 pokojowych o różnych metrażach.
Każde mieszkanie zaprojektowane jest z myślą o funkcjonalności i komforcie mieszkańców.
Udogodnienia: Osiedle zapewnia mieszkańcom szereg atrakcji, takich jak:
- osiedle z ochroną i monitoringiem
- do użytku mieszkańców rowerownia
- miejsca postojowe oraz komórki lokatorskie w garażu podziemnym - dodatkowo płatne
- place zabaw dla dzieci
- strefy rekreacyjne z zielenią
Lokalizacja: Inwestycja znajduje się na Klecinie, z doskonałym dostępem do komunikacji miejskiej, szkół, sklepów oraz terenów rekreacyjnych. Bliskość Parku Klecińskiego oraz Parku Południowego zapewnia idealne warunki do relaksu i aktywnego spędzania czasu na świeżym powietrzu.
Dlaczego warto?
Zdecyduj się na zakup mieszkania i stań się częścią dynamicznie rozwijającej się społeczności!
Mieszkanie jest w stanie deweloperskim. Zdjęcia zamieszczone w ogłoszeniu to wizualizacje, które mają na celu przedstawienie potencjału wnętrza.
Jako doradca ds. nieruchomości wspieram cię w całym procesie – od pierwszej prezentacji mieszkania, przez negocjacje, aż po pomoc w kredycie i organizacji wykończenia. Dzięki temu zakup jest prostszy i bezpieczniejszy.
Pełny cennik oraz historia zmian cen lokali w tej inwestycji są dostępne u dewelopera, zgodnie z ustawą o jawności cen.
Zapraszam na prezentację!
Katarzyna Dorosz
NIDO Nieruchomości
nr licencji: 24771
tel: 574-076-776
Powyższa oferta ma charakter informacyjny i nie stanowi oferty handlowej w rozumieniu art. 66 §1 Kodeksu Cywilnego.
Pośrednik odpowiedzialny zawodowo za wykonanie umowy pośrednictwa: Katarzyna Dorosz licencja nr: 24771.