Mieszkanie na sprzedaż












Szczegóły ogłoszenia
- Symbol oferty AOAT-MS-107
- Typ oferty mieszkanie na sprzedaż
- Cena 1 180 000 zł
- Charakterystyka mieszkania 93.72 m2, 3 pokoje
- Budynek blok; rok budowy: 2022
- Rozkład mieszkania 4p piętro
- Media Ogrzewanie: C.O. miejskie; Woda: ciepła - miejska; Gaz: brak
- Balkon jest
- Dojazd ASFALTOWA
- Garaż garaż podziemny
- Okna PCV 3 szyby, ciepły montaż
- Otoczenie centrum miasta
- Stan lokalu deweloperski
- Taras taras duży
- Technologia budowlana silikat
- Winda Tak
Lokalizacja
- Adres dolnośląskie, Wrocław
Opis nieruchomości
OFERTA WYŁĄCZNIE W NASZYM BIURZE | WE SPEAK ENGLISH
Prezentujemy Państwu komfortowy i unikatowy apartament (pow. 93,72 m2) z balkonem i tarasem, położony w bardzo pożądanej lokalizacji we Wrocławiu dzielnicy Krzyki, osiedle Tarnogaj.
GDZIE:
ul. Piękna, Wrocław - Tarnogaj (inwestycja Sempre dewelopART)
STANDARD LOKALU:
Lokal sprzedawany jest w stanie deweloperskim, do własnej aranżacji.
Apartament usytuowany jest na 4 - ostatnim piętrze budynku czterokondygnacyjnego z windą.
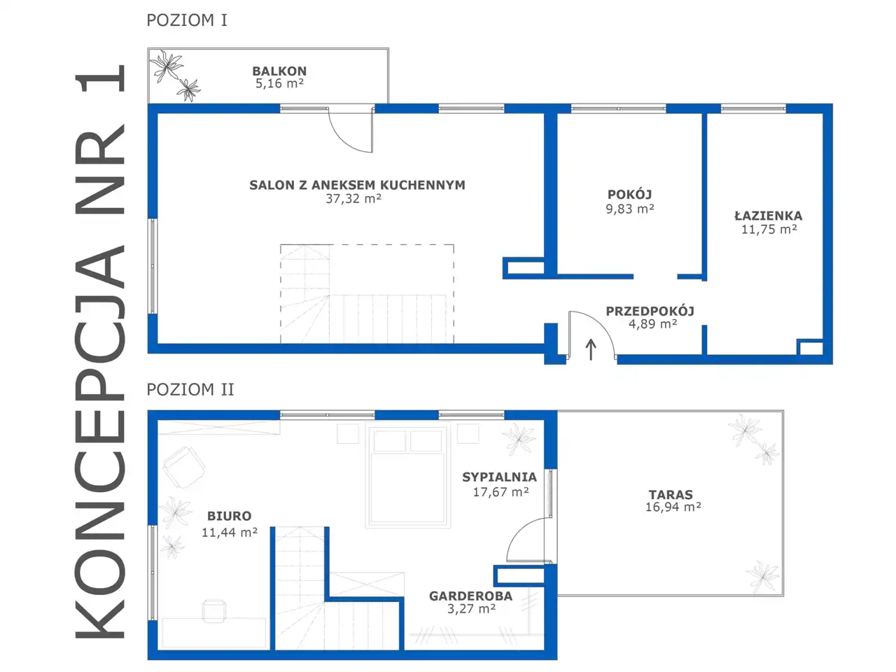
Mieszkanie o powierzchni 93,72 m2 położone jest na dwóch poziomach i składa się z następujących pomieszczeń:
I poziom:
- przestronnego salonu z aneksem kuchennym (37,32m2) oraz wyjściem na balkon
- pokoju (9,83m2)
- łazienki (11,75m2)
- przedpokoju (4,89m2)
- balkonu (5,16m2)
II poziom:
- otwarta przestrzeń do własnej aranżacji (29,93m2)
- taras (16,94m2)
ROZKŁAD MIESZKANIA DAJE OGROM MOŻLIWOŚCI ARANŻACYJNYCH!
W OGŁOSZENIU PRZEDSTAWIAMY KONCEPCJE ZAARANŻOWANIA POWYŻSZEJ PRZESTRZENI
Apartament posiada znaczną ilość okien, co sprawia, że mieszkanie jest bardzo jasne i dobrze doświetlone o każdej porze dnia.
WIECZORAMI Z KAŻDEGO PIĘTRA MOŻNA PODZIWIAĆ SPEKTAKULARNE ZACHODY SŁOŃCA.
Samo mieszkanie usytuowane jest narożnie, co powoduje komfort użytkowania i brak sąsiedztwa z dwóch stron.
W lokalu zastosowano dla komfortu użytkowania:
- drzwi antywłamaniowe
- okna plastikowe 3-szybowe
- domofon
- taras wyłożony deską kompozytową.
Widoki z kameralnego tarasu są imponujące, a odległość do sąsiednich budynków bardzo komfortowa. Dzięki projektowi budynku uniknięto skosów, a co za tym idzie- powierzchnia obu poziomów mieszkania jest w pełni wykorzystywana.
Na terenie inwestycji powstał dwupoziomowy garaż podziemny z miejscami postojowymi oraz komórkami lokatorskimi.
Do dyspozycji Mieszkańców są stojaki rowerowe i samoobsługowa stacja naprawy rowerów.
W okolicy znajdują się liczne tereny rekreacyjne, jak np. Park Wschodni czy Park Tarnogajski. Lokalizacja inwestycji Sempre zapewnia także dostęp do licznych punktów rozrywkowych takich jak Aquapark Wrocław, do którego można dojechać samochodem w 6 minut.
Komunikacja:
- przystanek autobusowy
- przystanek tramwajowy
Punkty użyteczności publicznej:
- sklepy (Kaufland, Auchan, Biedronka, Lidl, Rossmann)
- punkty gastronomiczne (Chleboteka, KFC, McDonald's)
- stacja benzynowa
- AquaPark Wrocław
- siłownia/sala treningowa
- Park Trampolin
- liczne szkoły i przedszkola
Istnieje możliwość zakupu miejsca postojowego w podziemnej hali garażowej (nie jest to zakup obligatoryjny - miejsce posiada osobą Księgę Wieczystą).
DLA KOGO:
Apartament z uwagi na swoje bliskie położenie względem centrum miasta (2,8km do Wrocławskiego rynku) idealnie nadaje się młodych, aktywnie żyjących osób.
Bliska dostępność licznych ścieżek rowerowych dodatkowo zwiększa możliwości komunikacyjne.
Serdecznie zapraszamy na niezobowiązującą prezentację.
Kontakt: Katarzyna Dzieciątkowska
Tel: 503 63 63 44
NASI DORADCY BEZPŁATNIE SPRAWDZĄ TWOJĄ ZDOLNOŚĆ KREDYTOWĄ.
Udzielamy wsparcia przy CAŁYM PROCESIE uzyskania kredytu hipotecznego.
Współpracujemy z architektami wnętrz, którzy chętnie pomogą w zaaranżowaniu wymarzonego mieszkania.
Informacje zawarte w ogłoszeniu nie stanowią oferty handlowej w rozumieniu art. 66 Kodeksu Cywilnego.