Mieszkanie na sprzedaż
1 201 500 zł
80 m2









1 / 9
Szczegóły ogłoszenia
- Symbol oferty EST-MS-545
- Typ oferty mieszkanie na sprzedaż
- Cena 1 201 500 zł
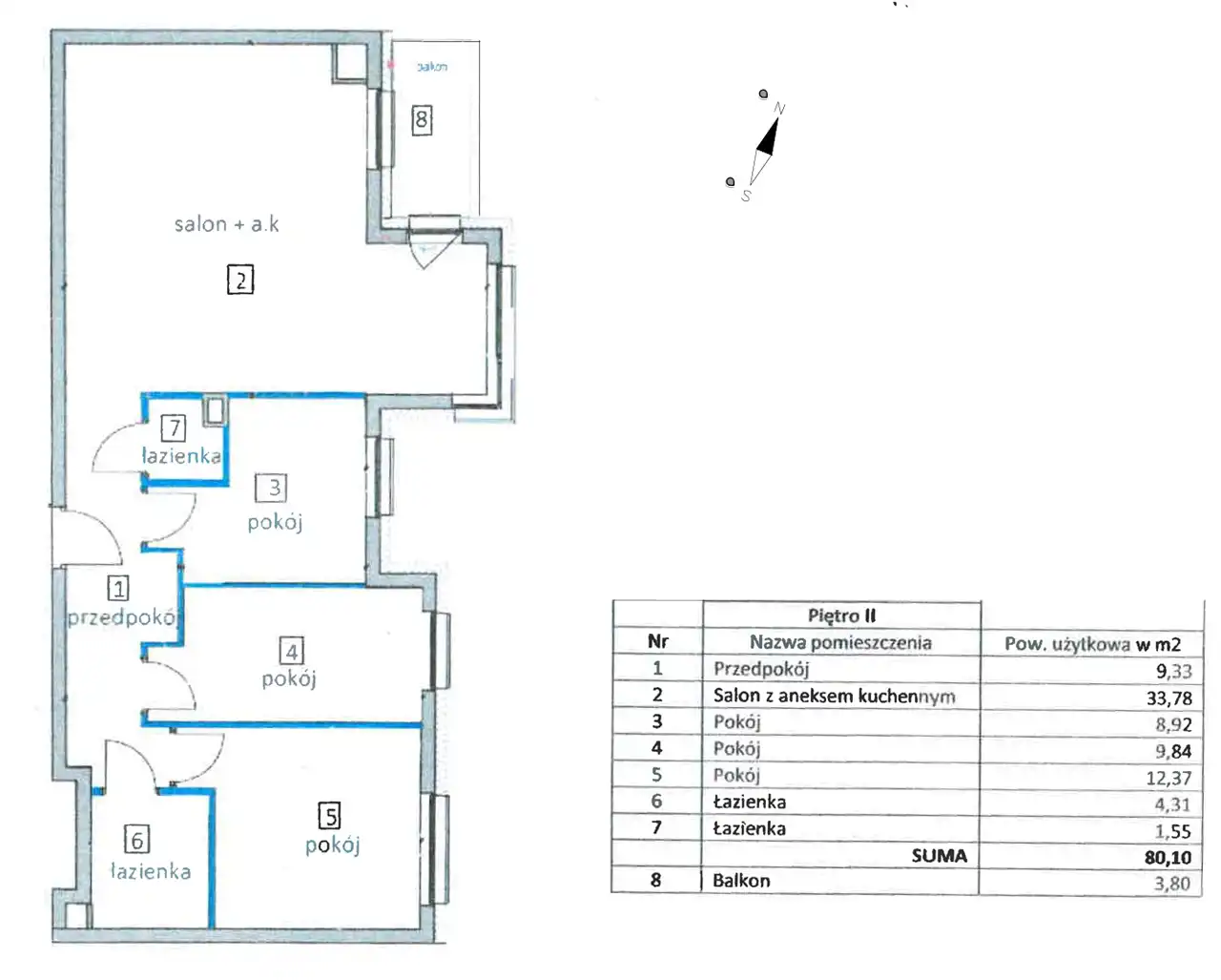
- Charakterystyka mieszkania 80.1 m2, 4 pokoje
- Budynek apartamentowiec; rok budowy: 2024
- Rozkład mieszkania 2p piętro
- Media Ogrzewanie: C.O. miejskie
- Balkon jest
- Dojazd asfalt
- Garaż miejsce garażowe
- Okna PCV 3 szyby, ciepły montaż
- Otoczenie panorama
- Stan lokalu deweloperski
- Winda Tak
Lokalizacja
- Adres dolnośląskie, Wrocław, Fabryczna
Opis nieruchomości
Jednopoziomowe 4 pokojowe mieszkanie na Racławickiej w nowym budynku z 2024 r. w bliskiej odległości do Międzynarodowej Szkoły ATUT
Mieszkanie o pow. 80,1 m2 w inwestycji Racławicka Platinum!, jasne, od strony wschodniej z widokiem na ładnie zagospodarowany teren wokół inwestycji od strony ulicy Rusznikarskiej
Super rozkład! świetna strona świata: wschodnia! Klimatyczny wykusz w salonie z super widokiem na zieleń wokół inwestycji!
Stan niewykończony, deweloperski
- przedpokój
- salon z aneksem kuchennym, wyjście na balkon od strony wschodniej
- łazienka
- wc
- 3 pokoje
W garażu podziemnym 2 miejsca garażowe przynależne do mieszkania, płatne dodatkowo 50 tys. za jedno (łącznie 100 000 zł)
ŁĄCZNA CENA: MIESZKANIE + 2 MP= 1 301 500 zł
BUDYNEK
Nowy, oddany do użytkowania z początkiem roku 2024 r. z cichobieżnymi windami do garażu podziemnego.
LOKALIZACJA
Wokół tereny zielone, bogate nasadzenia krzewów i drzew, sąsiedztwo Parku Grabiszyńskiego, oraz mnogość ścieżek rowerowych i spacerowych zachęca do aktywnego odpoczynku.
W pobliżu również
Zapraszam na prezentację! :)
Mieszkanie o pow. 80,1 m2 w inwestycji Racławicka Platinum!, jasne, od strony wschodniej z widokiem na ładnie zagospodarowany teren wokół inwestycji od strony ulicy Rusznikarskiej
Super rozkład! świetna strona świata: wschodnia! Klimatyczny wykusz w salonie z super widokiem na zieleń wokół inwestycji!
Stan niewykończony, deweloperski
- przedpokój
- salon z aneksem kuchennym, wyjście na balkon od strony wschodniej
- łazienka
- wc
- 3 pokoje
W garażu podziemnym 2 miejsca garażowe przynależne do mieszkania, płatne dodatkowo 50 tys. za jedno (łącznie 100 000 zł)
ŁĄCZNA CENA: MIESZKANIE + 2 MP= 1 301 500 zł
BUDYNEK
Nowy, oddany do użytkowania z początkiem roku 2024 r. z cichobieżnymi windami do garażu podziemnego.
LOKALIZACJA
Wokół tereny zielone, bogate nasadzenia krzewów i drzew, sąsiedztwo Parku Grabiszyńskiego, oraz mnogość ścieżek rowerowych i spacerowych zachęca do aktywnego odpoczynku.
W pobliżu również
- przedszkola i szkoły: Dwujęzyczna Szkoła Podstawowa ATUT, Międzynarodowe Liceum Ogólnokształcące przy ul.Racławickiej, Fundacja Edukacji Międzynarodowej
- sklepy, kawiarnie, restauracje
- przystanki autobusowe; nr 143, 248, 251, A
- przychodnie zdrowia przy ul. Racławickiej
Zapraszam na prezentację! :)
Nota prawna
Opis oferty zawarty na stronie internetowej sporządzany jest na podstawie oględzin nieruchomości oraz informacji uzyskanych od właściciela, może podlegać aktualizacji i nie stanowi oferty określonej w art. 66 i następnych K.C.
Kalkulator kredytowy
Formularz kontaktowy