Mieszkanie na sprzedaż













Szczegóły ogłoszenia
- Symbol oferty ECT-MS-33429
- Typ oferty mieszkanie na sprzedaż
- Cena 1 228 400 zł
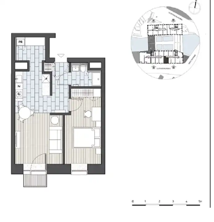
- Charakterystyka mieszkania 46.61 m2, 2 pokoje
- Budynek apartamentowiec; rok budowy: 2021
- Rozkład mieszkania 3p piętro
- Media Ogrzewanie: C.O. miejskie
- Balkon jest
- Czynsz Czynsz letni: 1400 zł
- Dojazd asfalt
- Instalacje dobre
- Okna PCV
- Stan lokalu bardzo dobry
- Technologia budowlana cegła nowa
- Winda Tak
Lokalizacja
- Adres dolnośląskie, Wrocław, Stare Miasto
Opis nieruchomości
Sprzedam komfortowe mieszkanie w apartamentowcu przy ul. Staromłyńskiej, 5 min do Rynku. Historyczne centrum.
LOKAL JEST OBECNIE WYNAJETY- MOŻLIWOŚĆ PRZEJĘCIA NAJEMCY
Przestronny pokój dzienny.
Wyposażony w kanapę rozkładaną, stolik, szafkę rtv i telewizor.
Wyjście na balkon z widokiem na Ostrów Tumski.
Kuchnia otwarta na salon:
meble kuchenne ze sprzętem agd (lodówka, zmywarka, piekarnik, płyta indukcyjna, ekspres do kawy, kompletny sprzęt kuchenny).
Z kuchni ozdobne wejście do pomieszczenia gospodarczego, w którym znajduje się pralka oraz zaplecze gospodarcze.
Między salonem a kuchnią kącik jadalniany wyposażony w stół i krzesła.
Sypialnia z wygodnym łóżkiem kontynentalnym. Duża szafa.
Łazienka razem z wc, z kabiną prysznicową.
Apartament w stylu industrialnym. Całość zaprojektowana z dbałością o szczegóły.
Wysoki na 320cm. Bardzo cichy, przestronny. I słoneczny.
Dużo miejsc do przechowywania.
W apartamencie zastosowano najnowsze rozwiązania elektroniczne- zdalna kontrola mieszkania i sprzętów, pełne sterowanie.
Budynek "Młyn Maria" zrewitalizowany w 2021r , oddalony od ruchliwych ulic, wyposażony w windę, do dyspozycji najemcy jest również komórka lokatorska.
Przed budynkiem miejsca parkingowe ogólnie dostępne.
W budynku ochrona 24h.
Media miejskie.
*czynsz miesięczny ok. 1400.zł
Wspaniała lokalizacja.
Doskonały dojazd do każdego miejsca w mieście.
W zasięgu krótkiego spaceru Rynek.
W pobliżu sklepy, tereny spacerowe, nadodrzański Bulwar Dunikowskiego, Wyspa Słodowa, kawiarenki i restauracje, Galeria Dominikańska.
- 700m DO RYNKU
- 200m DO OSTROWA TUMSKIEGO
- 650 m DO UNIWERSYTETU WROCŁAWSKIEGO
Zachęcam do oglądania.
Licencjonowany Pośrednik- Marzena Zajkowska kom.506105758