Mieszkanie na sprzedaż





















Szczegóły ogłoszenia
- Symbol oferty PZT-MS-492
- Typ oferty mieszkanie na sprzedaż
- Cena 1 800 000 zł
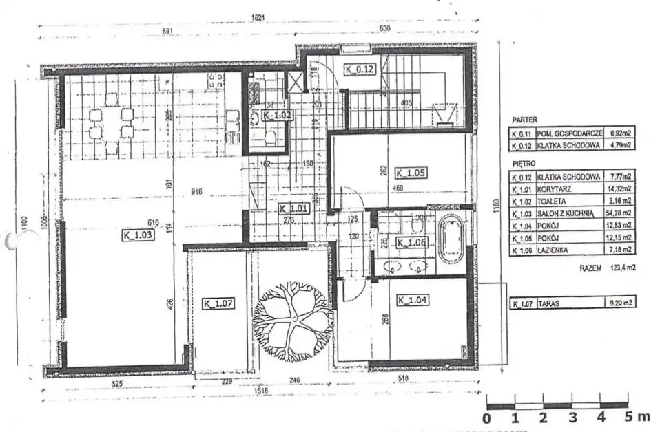
- Charakterystyka mieszkania 123 m2, 3 pokoje
- Budynek apartamentowiec; rok budowy: 2008
- Rozkład mieszkania 1p piętro
- Media Ogrzewanie: C.O. GAZOWE; Woda: piec gazowy dwufunkcyjny; Gaz: tak - miejski
- Okna PCV
- Stan lokalu bardzo dobry
- Taras taras
- Umeblowanie pełne
Lokalizacja
- Adres dolnośląskie, Wrocław, Krzyki
Opis nieruchomości
*123 m² prywatności * salon ponad 50 m² * kominek * taras * ogród ok. 200 m² - Rakowiecka 64, Wrocław
Są nieruchomości, które trudno porównać z typową ofertą mieszkań na rynku - bez wątpienia należy do nich apartament na kameralnym, zamkniętym osiedlu przy ul. Rakowieckiej 64 we Wrocławiu. To propozycja dla osób, które szukają przestrzeni, prywatności i zieleni, a jednocześnie chcą pozostać blisko miasta.
Nieruchomość wyróżnia się unikalnym poziomem prywatności – w budynku znajduje się tylko jedno mieszkanie, a jego położenie na końcu osiedla zapewnia ciszę, spokój i widok na zieleń ogródków działkowych. Na parterze budynku znajduje się siłownia oraz sauna do użytku mieszkańców osiedla. Do dyspozycji właściciela jest również ogród działkowy o powierzchni ok. 200 m² z wejściem bezpośrednio z posesji, co daje komfort mieszkania w apartamencie z atutami domu.
Najważniejsze atuty nieruchomości
- 120 m² komfortowej przestrzeni i wysoka jakość wykończenia
- ponad 50 m² strefy dziennej – salon z aneksem kuchennym, dębowe podłogi, duże okna, kominek
- taras 9,2 m²
- w cenie mieszkanie całe wyposażenie widoczne na zdjęciach - mieszkanie gotowe do wprowadzenia
- tylko jedno mieszkanie w budynku – wysoki poziom prywatności
- budynek położony na końcu kameralnego zamkniętego osiedla (12 budynków)
- ogród działkowy ok. 200 m² z furtką bezpośrednio z posesji
- komórka lokatorska z osobnym wejściem z zewnątrz
- miejsce parkingowe przed budynkiem
- dostęp do siłowni i sauny na parterze budynku
Przemyślany i komfortowy układ mieszkania
Wejście do mieszkania prowadzi z poziomu parteru prywatną klatką schodową. Już przy wejściu uwagę przyciąga stalowa antresola o industrialnym charakterze, która stanowi ciekawy element architektoniczny i może pełnić funkcję miejsca do pracy lub dodatkowej przestrzeni do przechowywania.
Sercem mieszkania jest imponująca strefa dzienna o powierzchni ponad 50 m², obejmująca salon z aneksem kuchennym. Na podłodze deska dębowa, duże okna, kominek. Z salonu prowadzi wyjście na taras o powierzchni ok. 9 m². Kuchnia została wykonana w drewnianej zabudowie i wyposażona w pełen zestaw sprzętu AGD ( w tym m.in lodówka dwudrzwiowa, lodówka na wino). To przestrzeń zaprojektowana z myślą o komforcie codziennego życia i spotkaniach z rodziną czy przyjaciółmi.
Część prywatna mieszkania obejmuje: 2 sypialnie (każda po ok. 12 m2) i łazienkę.
Dodatkowo w mieszkaniu znajdują się:
- osobna toaleta
- pomieszczenie gospodarcze z piecem gazowym oraz z dedykowanym miejscem na pralkę/suszarkę i przechowywanie
- zabudowane szafy w korytarzu i sypialni, harmonijnie wkomponowane w przestrzeń wnętrza
Całość została wykończona z dużą starannością, z wykorzystaniem materiałów wysokiej jakości.
Ogród – rzadko spotykany atut
Niewątpliwym atutem tej nieruchomości jest możliwość korzystania z ogródka działkowego ROD o powierzchni ok. 200 m², który znajduje się bezpośrednio przy budynku. Ogród graniczy z osiedlem i posiada furtkę prowadzącą bezpośrednio z posesji, dzięki czemu można korzystać z niego niemal jak z prywatnego ogrodu przy domu.
W cenie mieszkania jest ujęte przejęcie dzierżawy ROD.
Lokalizacja – zieleń i szybki dojazd do centrum
Osiedle przy ul. Rakowieckiej to spokojna część Wrocławia z przewagą niskiej zabudowy i dużą ilością zieleni. Bezpośrednie sąsiedztwo ogródków działkowych sprawia, że z okien rozciąga się widok na zieleń, a okolica zachowuje kameralny charakter.
Jednocześnie lokalizacja zapewnia sprawny dojazd do centrum miasta oraz dostęp do miejskiej infrastruktury.
To mieszkanie jest propozycją dla osób, które szukają czegoś więcej niż standardowego apartamentu – przestrzeni z charakterem, wysokiego poziomu prywatności oraz zieleni bezpośrednio za oknem, bez rezygnowania z miejskiej wygody.
Skontaktuj się, aby poznać szczegóły i umówić prezentację!
KONTAKT: PAULINA TCHÓRZEWSKAPośrednik odpowiedzialny zawodowo za wykonanie umowy pośrednictwa: Paulina Tchórzewska, nr licencji 20584
Uwaga: kontaktując się z nami wyrażasz zgodę na przetwarzanie przez nas Twoich danych osobowych w zakresie koniecznym do przedstawienia oferty.
Powyższa oferta nie stanowi oferty handlowej w rozumieniu art.66 paragraf 1 Kodeksu cywilnego oraz innych właściwych przepisów prawnych.
Informacje zawarte w ofertach otrzymujemy od właścicieli nieruchomości i mogą ulec zmianom. Staramy się, aby wszystkie oferty były zawsze jak najbardziej aktualne i odpowiadały stanowi rzeczywistemu.