Mieszkanie na sprzedaż






Szczegóły ogłoszenia
- Symbol oferty OTO-MS-31278
- Typ oferty mieszkanie na sprzedaż
- Cena 1 960 682 zł
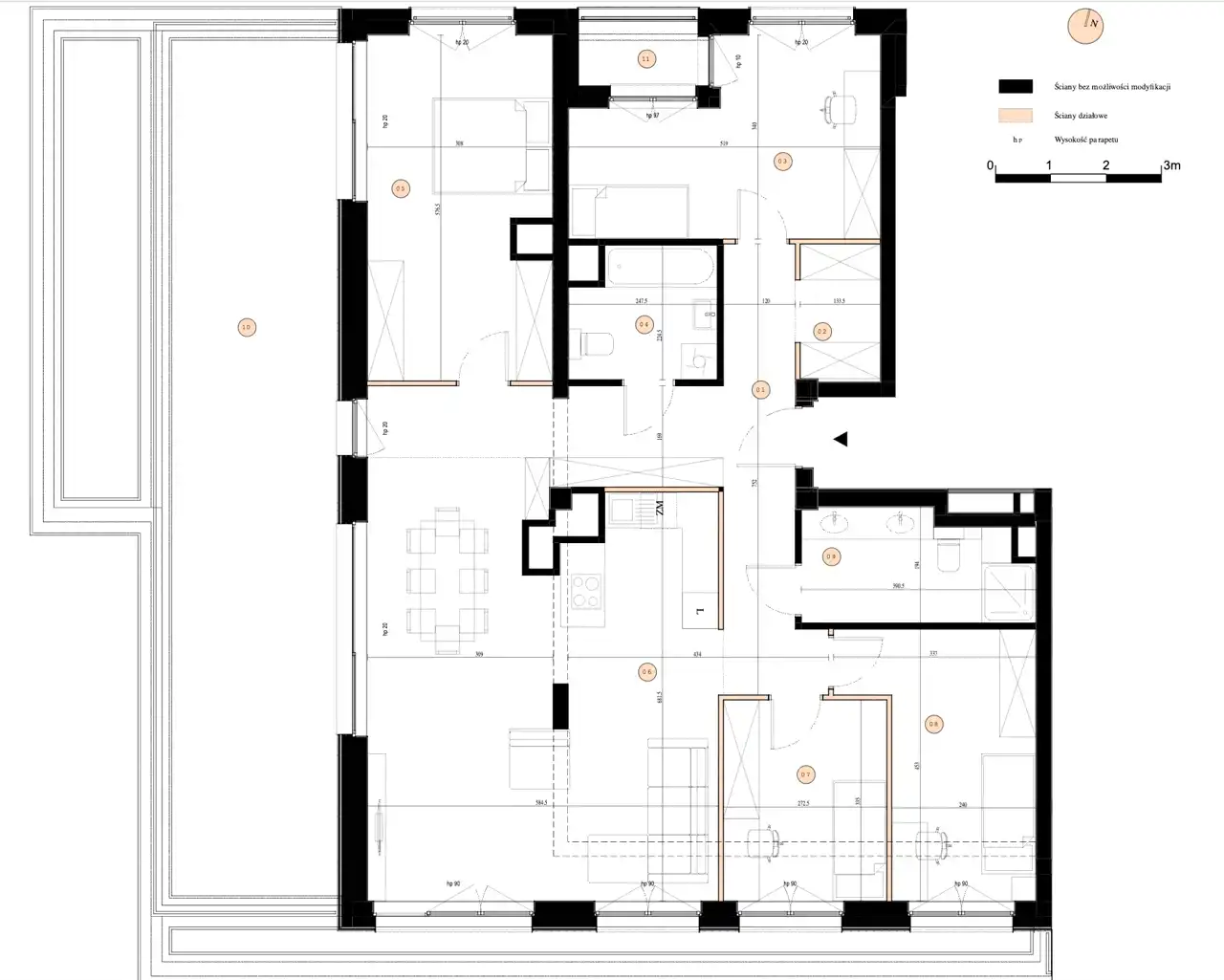
- Charakterystyka mieszkania 126.17 m2, 5 pokoi
- Budynek apartamentowiec; rok budowy: 2026
- Rozkład mieszkania 5p piętro
- Media Ogrzewanie: miejskie; Woda: jest; Gaz: brak
- Balkon jest
- Dojazd ASFALTOWA
- Garaż jest
- Instalacje nowe
- Okna PCV
- Otoczenie osiedle
- Plac zabaw Tak
- Stan lokalu do wykończenia
- Taras taras duży
- Technologia budowlana silikat
- Winda Tak
Lokalizacja
- Adres dolnośląskie, Wrocław, Śródmieście
Opis nieruchomości
Apartament 126 m² | Taras ok. 40 m² | 3-stronna ekspozycja | duże okna
Wyjątkowy, przestronny apartament o powierzchni ok. 126m², położony na 5. piętrze nowej inwestycji.
To propozycja dla osób, które szukają dużej, komfortowej przestrzeni, światła i prywatności – bez kompromisów.
Najważniejsze atuty:
• Trójstronna ekspozycja okien: południe – zachód – północ
• Salon z ekspozycją południowo-zachodnią – najlepsze doświetlenie w ciągu dnia
• Duże przeszklenia w całym mieszkaniu – wnętrze jest jasne i przestronne
Układ i funkcjonalność:
• Przestronny salon z aneksem kuchennym ok. 40m² z wyjściem na taras ok. 40 m²
• Dwie duże sypialnie z wyjściem na taras lub loggię
• Dwa mniejsze pokoje / gabinety które można połączyć w jeden
• Łącznie 2 duże łazienki i garderoba
Dodatkowe informacje:
Istnieje możliwość zakupu:
• miejsc postojowych w garażu podziemnym
• komórek lokatorskich
Zakończenie prac budowlanych w I/II kw 2027 roku
Mieszkanie jest oddawane w stanie deweloperskim, do własnej aranżacji.
Zdjęcia przedstawione w ofercie są wizualizacjami.
✔︎ Zapewniam pomoc w uzyskaniu kredytu oraz wykończeniu mieszkania pod klucz.
✔︎ Kupując z nami nieruchomość zyskujesz 10% rabatu na wykończenie lub remont mieszkania*
✔︎ Możliwość bezpłatnej rezerwacji mieszkania.
Zapraszam do kontaktu:
Michał Pater
nr licencji 23186
Oferta została przygotowana na podstawie informacji uzyskanych od dewelopera. Informacje te są przez nas weryfikowane i sprawdzane, mogą jednak ulegać aktualizacji, w związku z czym powyższa oferta nie stanowi oferty handlowej w rozumieniu Kodeksu Cywilnego, a dane w niej zawarte mają jedynie charakter informacyjny.