Mieszkanie na sprzedaż




Szczegóły ogłoszenia
- Symbol oferty NHM-MS-37056
- Typ oferty mieszkanie na sprzedaż
- Cena 2 622 413 zł
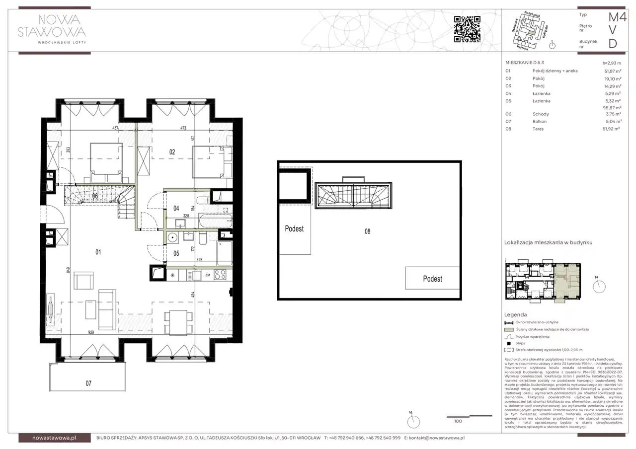
- Charakterystyka mieszkania 95.87 m2, 1 pokój
- Budynek apartamentowiec; rok budowy: 2027
- Rozkład mieszkania 5p piętro
- Media Ogrzewanie: C.O. miejskie; Woda: ciepła - miejska; Gaz: brak
- Dojazd asfaltowa/kostka
- Garaż brak
- Ilość sypialni 2
- Instalacje nowe
- Okna PCV 3 szyby, ciepły montaż
- Otoczenie centrum miasta
- Stan lokalu deweloperski
- Winda Tak
Lokalizacja
- Adres dolnośląskie, Wrocław, Stare Miasto
Opis nieruchomości
Wyjątkowy apartament z przepięknym widokiem!
Na sprzedaż wyjątkowa nieruchomość o powierzchni 95,87 m², położoną na 5. piętrze nowoczesnej inwestycji w ścisłym centrum Wrocławia. Wyjątkowy, loftowy apartament w prestiżowej inwestycji Nowa Stawowa we Wrocławiu – w samym centrum miasta, w kwartale ulic Stawowej, Kościuszki, Kołłątaja i Rejtana. To rewitalizowany kompleks post-fabrycznych budynków z industrialnym charakterem, łączący historię z nowoczesnym stylem życia. W okolicy doskonała infrastruktura, liczne tramwaje i autobusy oraz kilka minut spacerem do Dworca Głównego, Rynku i Parku Staromiejskiego.
Termin oddania: II kwartał 2027r.
Idealny wybór dla:
-> osób pracujących w trybie hybrydowym, kreatywnych zawodów czy freelancerów,
-> par i rodzin szukających komfortu
-> miłośników unikatowych, loftowych przestrzeni
-> osób, które chcą przestrzeni rekreacyjnej w sercu miasta
-> inwestorów premium
- 3–5 minut pieszo do PKP/PKS
- centrum miasta, blisko restauracji, atrakcji i komunikacji
- idealne dla turystów, uczestników konferencji i osób w delegacji
- 500m do Galerii Wroclavia
Zieleń w sercu miasta
- ciche, wewnętrzne dziedzińce
- starannie zaprojektowana roślinność
- przestrzeń do odpoczynku
Nowoczesny standard
- nowy, elegancki budynek
- dopracowane części wspólne
- wysoki poziom komfortu i bezpieczeństwa
Rozkład nieruchomości:
Pokój dzienny + aneks 51,87 m²
Pokój - 19, 10 m²
Pokój - 14,29 m²
Łazienka 5,32 m²
Łazienka 5,29 m²
Balkon 5,04 m²
Taras 51,92 m²
Zapraszam do kontaktu!
Angela Barczak
884 707 477
N-Home Nieruchomości
Przy zakupie oferujemy wsparcie przy uzyskaniu finansowania na zakup nieruchomości z opcją dodatkowych korzyści! Szczegóły u Doradcy Finansowego.
Oferujemy szereg innych usług związanych z rynkiem nieruchomości. Zapraszamy do współpracy z naszym biurem.
Prezentowana oferta nie stanowi oferty handlowej w rozumieniu Art. 66 par. 1 Kodeksu Cywilnego, a dane w niej zawarte mają charakter jedynie informacyjny i mogą ulec zmianie.