Mieszkanie na sprzedaż
2 700 000 zł
153 m2





1 / 5
Szczegóły ogłoszenia
- Symbol oferty OTO-MS-30422
- Typ oferty mieszkanie na sprzedaż
- Cena 2 700 000 zł
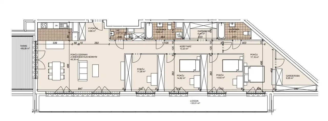
- Charakterystyka mieszkania 153 m2, 5 pokoi
- Budynek nowe budownictwo; rok budowy: 2025
- Rozkład mieszkania 6p piętro
- Media Ogrzewanie: C.O. miejskie; Woda: ciepła - miejska; Gaz: tak - miejski
- Bezpieczeństwo Rolety antywłamaniowe
- Balkon jest
- Dojazd ASFALTOWA
- Garaż w budynku
- Ilość sypialni 4
- Instalacje nowe
- Okna PCV 3 szyby, ciepły montaż
- Otoczenie centrum miasta
- Plac zabaw Tak
- Stan lokalu deweloperski
- Taras taras
- Technologia budowlana silikat
- Winda Tak
Lokalizacja
- Adres dolnośląskie, Wrocław, Stare Miasto
Opis nieruchomości
Gotowe do końca roku!/ 5 pokoi/ Apartament z tarasem 70 m2/ Zielone osiedle/ Ogrzewanie miejskie/ Winda/ Wygodna komunikacja/ Okazja/ Blisko centrum/ Narożne/ Różne układy/ Możliwość zakupu miejsca postojowego
Posiadam w sprzedaży mieszkania na różnych piętrach oraz w różnym metrażu zarówno na tej inwestycji jak i w całym Wrocławiu. Zadzwoń i umów się na spotkanie!
Kupujący nie płaci prowizji oraz podatku PCC.
Największe atuty inwestycji:
- tereny rekreacyjne: Park Polana Popowicka, Park Zachodni, tereny spacerowe wzdłuż rzeki Odry
- pełna infrastruktura
- osiedle pełne zieleni - wewnętrzne dziedzińce pełne drzew, krzewów, kwiatów i ozdobnych gatunków traw
- nowoczesny transport: świeżo wybudowana linia tramwajowa
- C.H. Magnolia w bliskiej odległości
Mieszkanie o powierzchni około 153 m2 składa się z:
- pokoju dziennego z aneksem kuchennym
- czterech sypialni
- dwóch łazienek
- przedpokoju
Dodatkowo:
- taras na dachu 70 m2
- loggia 30 m2
- dwie garderoby
Mieszkanie jest oddawane w stanie deweloperskim, do własnej aranżacji.
Zdjęcia przedstawione w ofercie są wizualizacjami.
✔︎ Zapewniam pomoc w uzyskaniu kredytu oraz wykończeniu mieszkania pod klucz.
✔︎ Kupując z nami nieruchomość zyskujesz 10% rabatu na wykończenie lub remont mieszkania*
✔︎ Możliwość bezpłatnej rezerwacji mieszkania.
Zapraszam do kontaktu:
Filip Kociołek: tel. 881 474 221
@-mail: filip@oto-oto.pl
Pośrednik odpowiedzialny zawodowo za wykonanie umowy pośrednictwa: Grzegorz Niewczas (licencja nr: 21838)
oto-02531
Oferta została przygotowana na podstawie informacji uzyskanych od dewelopera. Informacje te są przez nas weryfikowane i sprawdzane, mogą jednak ulegać aktualizacji, w związku z czym powyższa oferta nie stanowi oferty handlowej w rozumieniu Kodeksu Cywilnego, a dane w niej zawarte mają jedynie charakter informacyjny.
Posiadam w sprzedaży mieszkania na różnych piętrach oraz w różnym metrażu zarówno na tej inwestycji jak i w całym Wrocławiu. Zadzwoń i umów się na spotkanie!
Kupujący nie płaci prowizji oraz podatku PCC.
Największe atuty inwestycji:
- tereny rekreacyjne: Park Polana Popowicka, Park Zachodni, tereny spacerowe wzdłuż rzeki Odry
- pełna infrastruktura
- osiedle pełne zieleni - wewnętrzne dziedzińce pełne drzew, krzewów, kwiatów i ozdobnych gatunków traw
- nowoczesny transport: świeżo wybudowana linia tramwajowa
- C.H. Magnolia w bliskiej odległości
Mieszkanie o powierzchni około 153 m2 składa się z:
- pokoju dziennego z aneksem kuchennym
- czterech sypialni
- dwóch łazienek
- przedpokoju
Dodatkowo:
- taras na dachu 70 m2
- loggia 30 m2
- dwie garderoby
Mieszkanie jest oddawane w stanie deweloperskim, do własnej aranżacji.
Zdjęcia przedstawione w ofercie są wizualizacjami.
✔︎ Zapewniam pomoc w uzyskaniu kredytu oraz wykończeniu mieszkania pod klucz.
✔︎ Kupując z nami nieruchomość zyskujesz 10% rabatu na wykończenie lub remont mieszkania*
✔︎ Możliwość bezpłatnej rezerwacji mieszkania.
Zapraszam do kontaktu:
Filip Kociołek: tel. 881 474 221
@-mail: filip@oto-oto.pl
Pośrednik odpowiedzialny zawodowo za wykonanie umowy pośrednictwa: Grzegorz Niewczas (licencja nr: 21838)
oto-02531
Oferta została przygotowana na podstawie informacji uzyskanych od dewelopera. Informacje te są przez nas weryfikowane i sprawdzane, mogą jednak ulegać aktualizacji, w związku z czym powyższa oferta nie stanowi oferty handlowej w rozumieniu Kodeksu Cywilnego, a dane w niej zawarte mają jedynie charakter informacyjny.
Nota prawna
Opis oferty zawarty na stronie internetowej sporządzany jest na podstawie oględzin nieruchomości oraz informacji uzyskanych od właściciela, może podlegać aktualizacji i nie stanowi oferty określonej w art. 66 i następnych K.C.
Kalkulator kredytowy
Formularz kontaktowy