Mieszkanie na sprzedaż
425 000 zł
26 m2








1 / 8
Szczegóły ogłoszenia
- Symbol oferty ALFM-MS-4064
- Typ oferty mieszkanie na sprzedaż
- Cena 425 000 zł
- Charakterystyka mieszkania 26 m2, 1 pokój
- Budynek apartamentowiec; rok budowy: 2026
- Rozkład mieszkania 1p piętro
Lokalizacja
- Adres dolnośląskie, Wrocław, Fabryczna
Opis nieruchomości
Na sprzedaż bardzo funkcjonalna kawalerka z tarasem w samym centrum Wrocławia.
Idealna na start lub pod inwestycję.
Oferta bez prowizji.
Zapraszam do kontaktu i umówienia się na prezentację, gdzie na makiecie 3D obejrzymy spacery wirtualne dostępnych jeszcze układów w tej inwestycji.
Największe atuty inwestycji:
NIERUCHOMOŚĆ:
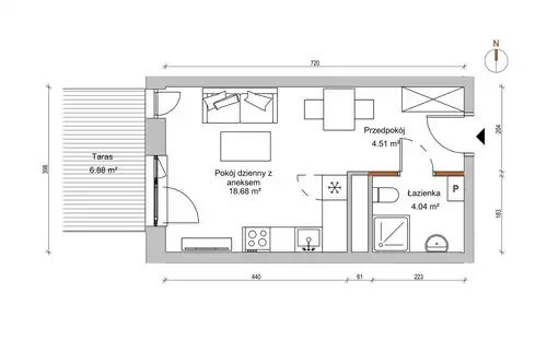
Funkcjonalna kawalerka usytuowana na pierwszym piętrze apartamentowca-ten sam układ jest też dostępny na wyższych kondygnacjach.
Wysoki standard wykończenia.
Lokal składa się z:
- przestronnego salonu z aneksem kuchennym
- ustawnego przedpokoju z miejscem na szafę
- łazienki
+dodatkowo tarasu.
Ekspozycja zachodnia.
CENA:
Mieszkanie: 425.000-cena promocyjna,oferta ograniczona czasowo.
Zakup zwolniony z podatku PCC.
Kupujący nie płaci prowizji.
Zdjęcia przedstawione w ofercie są wizualizacjami.
Lokal jest oddawany w stanie deweloperskim, do własnej aranżacji.
TERMIN ODDANIA:Koniec 2026
Kasia Chajec
tel.+ 48 882 714 302
kasia@alfama-nieruchomosci.pl
Alfama Nieruchomości S.C.
Idealna na start lub pod inwestycję.
Oferta bez prowizji.
Zapraszam do kontaktu i umówienia się na prezentację, gdzie na makiecie 3D obejrzymy spacery wirtualne dostępnych jeszcze układów w tej inwestycji.
Dlaczego warto współpracować ze mną przy zakupie nieruchomości z rynku pierwotnego?
- Oszczędzasz czas -zamiast przeszukiwać dziesiątki ofert i dzwonić do różnych biur – kontaktujesz się tylko ze mną, a ja przedstawiam najlepsze opcje pod Twoje potrzeby
- Dostęp do najlepszych inwestycji – współpracuję bezpośrednio z wieloma sprawdzonymi deweloperami. Mam dostęp do pełnej oferty – mieszkań w promocji oraz mieszkań, które nie są jeszcze dostępne publicznie
- Kompleksowe doradztwo – pomagam na każdym etapie zakupu: od wyboru idealnego osiedla, mieszkania, przez negocjacje cen (gwarancja najniższej możliwej ceny) oraz harmonogramu płatności, analizie umowy deweloperskiej aż po odbiór kluczy
- Bez prowizji od kupującego
- Wsparcie inwestycyjne – Jeśli kupujesz na wynajem/pod inwestycję, doradzam w kwestii zwrotu z inwestycji, a także pomagam znaleźć najemcę i zajmuję się obsługą najmu
Największe atuty inwestycji:
- Bardzo trakcyjna lokalizacja, tuż przy ul.Legnickiej
- Bliskość do Rynku (10/15 minut pieszo)
- Funkcjonalne rozkłady
- Bezpośrednie sąsiedztwo Business Garden,Wrocławskiego Parku Przemysłowego, Millenium Towers, Carbon Tower oraz wielu innych biurowców oraz uczelni wyższych (Wyższa Szkoła Bankowa, Dolnośląska Szkoła Wyższa)
- Doskonała komunikacja z resztą miasta-7 linii tramwajowych oraz kilkanaście autobusowych
- Duży zielony taras widokowy na dachu do wyłącznej dyspozycji mieszkańców
- Tuż przy osiedlu liczne lokale usługowe i handlowe m.in. Żabka, Rossmann,Biedronka,kawiarnia,restauracja,Fitness Academy, szkoła tańca
- Elegancka strefa wejściowa i części wspólne budynku
- Zielone patio i wyjątkowy ogród wertykalny,
NIERUCHOMOŚĆ:
Funkcjonalna kawalerka usytuowana na pierwszym piętrze apartamentowca-ten sam układ jest też dostępny na wyższych kondygnacjach.
Wysoki standard wykończenia.
Lokal składa się z:
- przestronnego salonu z aneksem kuchennym
- ustawnego przedpokoju z miejscem na szafę
- łazienki
+dodatkowo tarasu.
Ekspozycja zachodnia.
CENA:
Mieszkanie: 425.000-cena promocyjna,oferta ograniczona czasowo.
Zakup zwolniony z podatku PCC.
Kupujący nie płaci prowizji.
Zdjęcia przedstawione w ofercie są wizualizacjami.
Lokal jest oddawany w stanie deweloperskim, do własnej aranżacji.
TERMIN ODDANIA:Koniec 2026
Kasia Chajec
tel.+ 48 882 714 302
kasia@alfama-nieruchomosci.pl
Alfama Nieruchomości S.C.
Powyższa oferta ma charakter informacyjny i nie stanowi oferty handlowej w rozumieniu art. 66 §1 Kodeksu Cywilnego.
Pośrednik odpowiedzialny zawodowo za wykonanie umowy pośrednictwa: Katarzyna Chajec (licencja nr: 23503 )
Nota prawna
Opis oferty zawarty na stronie internetowej sporządzany jest na podstawie oględzin nieruchomości oraz informacji uzyskanych od właściciela, może podlegać aktualizacji i nie stanowi oferty określonej w art. 66 i następnych K.C.
Kalkulator kredytowy
Formularz kontaktowy