Mieszkanie na sprzedaż
450 000 zł
27 m2











1 / 11
Szczegóły ogłoszenia
- Symbol oferty MAKR-MS-154
- Typ oferty mieszkanie na sprzedaż
- Cena 450 000 zł
- Charakterystyka mieszkania 27 m2, 2 pokoje
- Budynek blok; rok budowy: 1980
- Rozkład mieszkania 9p piętro
- Media Ogrzewanie: miejskie; Woda: jest; Gaz: brak
- Czynsz Czynsz letni: 350 zł
- Dojazd asfalt
- Instalacje nowe
- Okna PCV
- Otoczenie osiedle
- Plac zabaw Tak
- Stan lokalu do wprowadzenia
- Technologia budowlana beton
- Winda Tak
Lokalizacja
- Adres dolnośląskie, Wrocław, Krzyki
Opis nieruchomości
- W TRAKCIE REMONTU (WOLNE OD 01.04.2026)
- 1500 m OD UNIWERSYTETU EKONOMICZNEGO
- BLISKO CENTRUM
- WINDA (W TRAKCIE WYMIANY NA NOWĄ)
- MEDIA MIEJSKIE
Na sprzedaż kompaktowe dwupokojowe mieszkanie zlokalizowane na 9 piętrze 11 piętrowego bloku z 1980 roku. Mieszkanie ze względu na swoją lokalizację idealnie nadaje się na start lub pod inwestycję pod najem krótkoterminowy lub długoterminowy.
Mieszkanie po generalnym remoncie:
- nowa instalacja elektryczna
- nowa instalacja wod-kan
- w pełni wyposażona kuchnia i łazienka
- nowe drzwi wejściowe
Okna PCV, ogrzewanie miejskie. Do lokalu przynależy boks o powierzchni 1,5 m³ znajdujący się w piwnicy budynku. Parking za szlabanem dla mieszkańców.
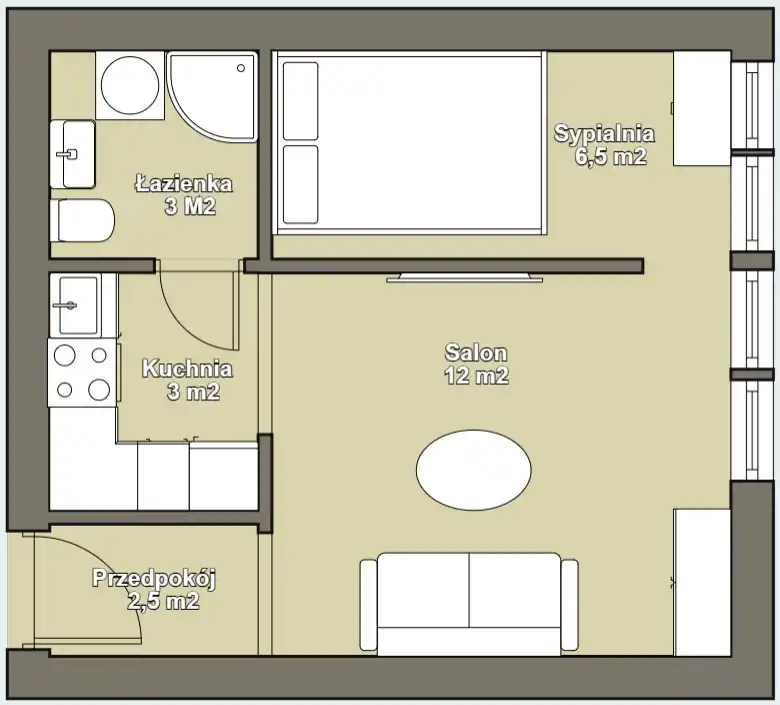
Mieszkanie składa się z:
- salonu o pow. około 12 m²
- sypialni o pow. około 6,5 m²
- kuchni o pow. około 3 m²
- łazienki o pow. około 3 m²
- przedpokoju o pow. około 2,5 m²
Mieszkanie bardzo dobrze skomunikowane z całym miastem zaledwie 100 m do przystanku Autobusowego, w najbliższej okolicy: Uniwersytet Ekonomiczny 1500 m, Dworzec Główny PKP 1400 m , Wrocławski Rynek 1700 m.
OPŁATY i KONTAKT:
Miesięczny czynsz administracyjny wynosi około 350,00 zł znajdują się w nim takie opłaty jak: zaliczki na ogrzewanie, zaliczki na wodę zimną i ciepłą wynagrodzenie zarządcy, fundusz remontowy, utrzymanie części wspólnych itp. Dodatkowo płacimy prąd według zużycia.
Szanowni Państwo, zawsze dążymy do tego, aby informacje o proponowanych przez nas ofertach były jak najbardziej dokładne i aktualne. Warto jednak mieć na uwadze fakt, iż opis oferty zawarty na stronie internetowej sporządzany jest na podstawie oględzin nieruchomości oraz informacji uzyskanych od właściciela, może podlegać aktualizacji i nie stanowi oferty określonej w art. 66 i następnych K.C.
Nota prawna
Opis oferty zawarty na stronie internetowej sporządzany jest na podstawie oględzin nieruchomości oraz informacji uzyskanych od właściciela, może podlegać aktualizacji i nie stanowi oferty określonej w art. 66 i następnych K.C.
Kalkulator kredytowy
Formularz kontaktowy