Mieszkanie na sprzedaż





Szczegóły ogłoszenia
- Symbol oferty NHM-MS-36997
- Typ oferty mieszkanie na sprzedaż
- Cena 462 098 zł
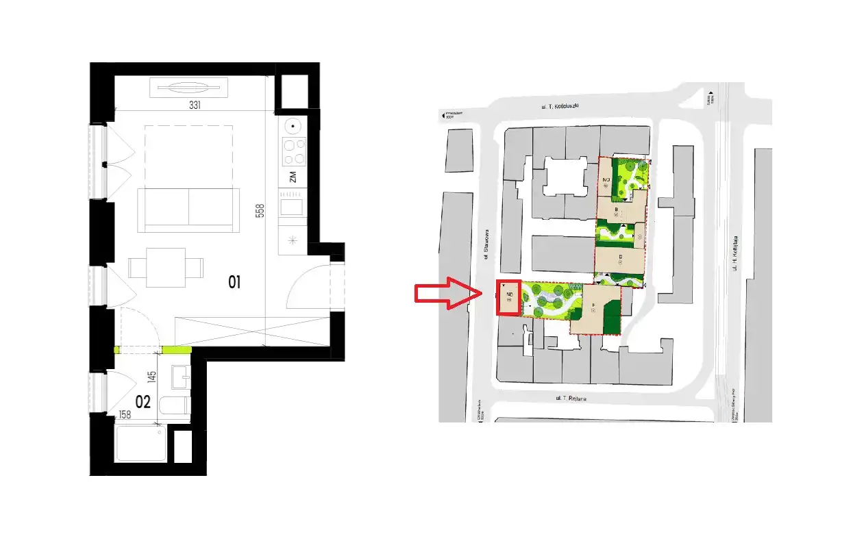
- Charakterystyka mieszkania 25.71 m2, 1 pokój
- Budynek apartamentowiec; rok budowy: 2027
- Rozkład mieszkania 4p piętro
- Media Ogrzewanie: C.O. miejskie; Woda: ciepła - miejska; Gaz: brak
- Balkon jest
- Dojazd asfaltowa/kostka
- Garaż brak
- Ilość sypialni 1
- Instalacje nowe
- Okna PCV 3 szyby, ciepły montaż
- Otoczenie centrum miasta
- Stan lokalu deweloperski
- Winda Tak
Lokalizacja
- Adres dolnośląskie, Wrocław, Stare Miasto
Opis nieruchomości
Ogrody Staromiejskie & Nowa Stawowa – Twój zielony azyl w ścisłym centrum Wrocławia!
Oferowany apartament o powierzchni 25,71 m² — idealna jako pierwsze M.
Najważniejsze cechy apartamentu
- Wysokość 2,7 m
- Przemyślany układ, obejmujący:
- pokój dzienny z aneksem kuchennym – 22,54 m²,
- ustawną łazienkę – 3,17 m².
Lokalizacja: Wrocław, ul. Stawowa / Kościuszki (Krzyki/Stare Miasto)
Termin oddania: II kwartał 2027 r.
Rynek: Pierwotny (Brak podatku PCC)
Szukasz inwestycji, która łączy historyczny klimat wrocławskich kamienic z nowoczesnym komfortem? A może marzysz o lofcie w centrum, ale nie chcesz rezygnować z ciszy i zieleni?
Zapraszam do zapoznania się z ofertą Ogrodów Staromiejskich i Nowej Stawowej – inwestycji realizowanej zaledwie 200 metrów od Dworca Głównego.
DLACZEGO WARTO? NAJWAŻNIEJSZE ATUTY:
Lokalizacja Premium:
Inwestycja znajduje się w sercu miasta, pomiędzy ulicami Rejtana, Kościuszki i Stawową.
-
200 m do Dworca Głównego PKP
500 m do Galerii Wroclavia
-
W promieniu 300 m znajdują się szkoły i przedszkola
Zieleń i Architektura:
Mimo centralnej lokalizacji, projekt stawia na naturę. Wewnętrzne dziedzińce zostaną zagospodarowane jako wspólne strefy zieleni z nasadzeniami drzew, krzewów i łąkami kwietnymi. Teren będzie ogrodzony i monitorowany, co zapewni poczucie bezpieczeństwa i prywatności w wielkim mieście.
Wysoki Standard Wykończenia:
Mieszkania (zarówno w części nowej, jak i loftowej) oddawane są w podwyższonym standardzie deweloperskim:
-
Cisza: Okna 3-szybowe o wysokiej izolacyjności akustycznej
-
Smart Home: Każdy lokal posiada podstawową instalację pod system inteligentnego domu (sterowanie ogrzewaniem i oświetleniem)
-
Bezpieczeństwo: Drzwi antywłamaniowe klasy RC3 oraz wideodomofony. Na parterach dodatkowo szyby antywłamaniowe P4 i rolety
-
Komfort: Ogrzewanie z sieci miejskiej
-
Garaż: Miejsca postojowe z możliwością instalacji ładowarek do aut elektrycznych
Bezpieczna Inwestycja:
Deweloper gwarantuje stałą cenę – waloryzacja ceny nie jest przewidziana w umowie.
HARMONOGRAM BUDOWY:
Inwestycja jest realizowana etapowo, co daje czas na zgromadzenie środków lub bezpieczne kredytowanie:
-
Start robót ziemnych: Marzec 2026
-
Stan surowy zamknięty: Czerwiec 2027
-
Pozwolenie na użytkowanie: Grudzień 2027
DOSTĘPNE UKŁADY:
W ofercie znajdują się lokale w zróżnicowanych budynkach – od nowoczesnych brył po rewitalizowane lofty ("Wrocławskie Lofty")Do mieszkań przynależą balkony, loggie lub – w przypadku parterów – prywatne ogródki z tarasami.
Nie czekaj, aż najlepsze rozkłady znikną!
Skontaktuj się ze mną, aby poznać szczegóły i rzuty mieszkań.
Andrzej Dębski N-Home Nieruchomości tel: 884-707-755
Prezentowana oferta nie stanowi oferty handlowej w rozumieniu Art. 66 par. 1 Kodeksu Cywilnego, a dane w niej zawarte mają charakter jedynie informacyjny i mogą ulec zmianie