Mieszkanie na sprzedaż













Szczegóły ogłoszenia
- Symbol oferty PROM-MS-2132
- Typ oferty mieszkanie na sprzedaż
- Cena 470 000 zł
- Charakterystyka mieszkania 39.72 m2, 2 pokoje
- Budynek kamienica; rok budowy: 1934
- Rozkład mieszkania wysoki parter piętro
- Media Ogrzewanie: elektryczne; Woda: tak-podgrzewacz elektryczny; Gaz: jest
- Balkon jest
- Czynsz Czynsz letni: 330 zł
- Dojazd ASFALTOWA
- Okna PCV
- Otoczenie centrum miasta
- Stan lokalu do remontu
- Technologia budowlana cegła
- Umeblowanie brak
Lokalizacja
- Adres dolnośląskie, Wrocław, Śródmieście
Opis nieruchomości
Na sprzedaż 2-pokojowe mieszkanie z balkonem w kamienicy w sercu miasta !
Mieszkanie o powierzchni 39,72 m², położone na wysokim parterze w zadbanej kamienicy z 1934 r z wyremontowaną klatką schodową i nową elewacją.
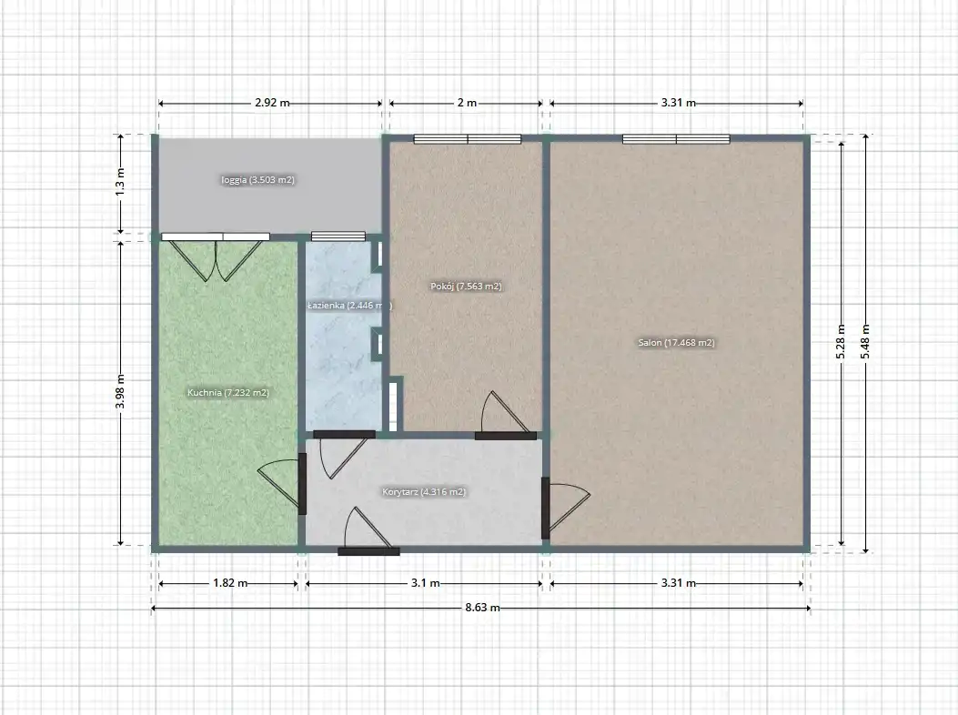
Lokal składa się z dwóch oddzielnych pokoi, kuchni z wyjściem na balkon, łazienki z oknem oraz przestronnego przedpokoju. Wysokie sufity (3 m) i oryginalny, zachowany parkiet dodają wnętrzu wyjątkowego charakteru. W lokalu wymieniono okna na nowe PCV. Obecnie założone ogrzewanie elektryczne. Możliwość założenia pieca gazowego.
Ogromnym atutem jest ekspozycja okien na południe – wszystkie wychodzą na zielone, ciche podwórze, co zapewnia prywatność i spokój w sercu miasta.
Na mieszkanie o metrażu 39,72 m2 składa się:
- Przedpokój 4,48 m2
- Salon 17,13 m2
- Kuchnia 7,23 m2
- Sypialnia 7,40 m2
- Łazienka - 2,55 m2
Dodatkowo:
- balkon
- Piwnica
LOKALIZACJA: Wrocław > Śródmieście > Ołbin > ul. Augusta Mosbacha
Mieszkanie położone w sercu Śródmieścia, w doskonale skomunikowanej części Wrocławia. W najbliższej okolicy liczne przystanki tramwajowe i autobusowe (linie 1, 6, 7, 9, 11), ścieżki rowerowe oraz stacja roweru miejskiego.
Bliskość Parku Tołpy, terenów spacerowych oraz licznych sklepów, punktów usługowych i restauracji zapewnia komfort codziennego życia. W zasięgu kilku minut: szkoły, przedszkola, przychodnie, apteki. Dodatkowo – urokliwe kamienice i spokojna, zielona okolica z klimatem.
Idealna lokalizacja dla osób ceniących miejski styl życia z dostępem do natury i pełnej infrastruktury.
NOWA CENA - 470 000 zł
Oferujemy pełne wsparcie przy bezpiecznej finalizacji zakupu oraz pomożemy w uzyskaniu najlepszej oferty kredytowej.
CHCESZ WIEDZIEĆ WIĘCEJ ? ZADZWOŃ !
Oferta na wyłączność.
Opiekun oferty: MS-2132
Konrad Mosór tel: 517 433 429
konrad@komonieruchomosci.pl
Licencja nr: 28831
Zapraszam na bezpłatną prezentacje i do kontaktu z naszym biurem.
Szanowni Klienci, przedstawiona propozycja nie jest ofertą handlową w rozumieniu przepisów prawa, lecz ma charakter informacyjny. Nasze biuro dokłada starań, aby treści przedstawione w ofertach były aktualne i rzetelne. Dane dotyczące ofert uzyskano na podstawie oświadczeń właścicieli poszczególnych lokali.
KOMO NIERUCHOMOŚCI
ul. Karola Miarki 4 lok.III
Wrocław 50-305
www.komonieruchomosci.pl