Mieszkanie na sprzedaż







Szczegóły ogłoszenia
- Symbol oferty NHM-MS-37211
- Typ oferty mieszkanie na sprzedaż
- Cena 477 174 zł
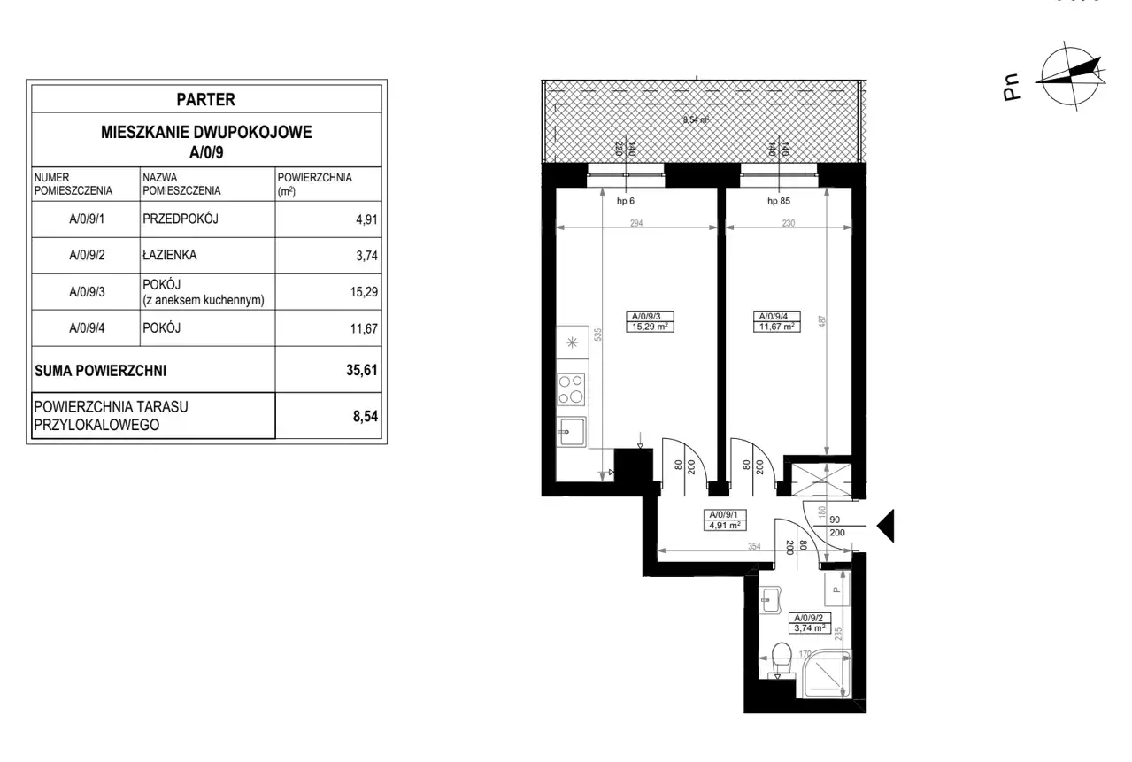
- Charakterystyka mieszkania 35.61 m2, 2 pokoje
- Budynek apartamentowiec; rok budowy: 2026
- Rozkład mieszkania parter piętro
- Media Ogrzewanie: C.O. miejskie; Woda: jest; Gaz: brak
- Garaż garaż podziemny
- Ilość sypialni 1
- Instalacje nowe
- Okna PCV 3 szyby, ciepły montaż
- Otoczenie osiedle
- Stan lokalu deweloperski
- Taras taras
- Winda Tak
Lokalizacja
- Adres dolnośląskie, Wrocław, Psie Pole
Opis nieruchomości
Nowe mieszkanie 2-pokojowe – Wrocław, Poświętne
Oferuję na sprzedaż komfortowe mieszkanie w stanie deweloperskim o powierzchnii 35,61 m², zlokalizowane na parterze nowoczesnego budynku mieszkalnego przy ul. Rudawskiej we Wrocławiu.
Lokal gotowy do odbioru!
Lista pomieszczeń:
-
salon z aneksem kuchennym – 15,29 m²
-
sypialnia 1 – 11,67 m²
-
przedpokój – 4,91 m²
-
łazienka – 3,74 m²
-
+ tarasy o łącznej powierzchni 8,54 m²
Dostępne także inne układy mieszkań!
Wysokość pomieszczeń 2,80 m zapewnia poczucie przestrzeni i lepsze doświetlenie wnętrz.
We wszystkich pomieszczeniach znajdują się przyłącza TV i Internet, co pozwala na swobodną aranżację przestrzeni mieszkalnej i domowego biura.
Standard budynku
-
nowoczesny apartamentowiec (rok realizacji 2026)
-
winda
-
monitoring części wspólnych
-
drzwi antywłamaniowe
-
ogrzewanie z sieci miejskiej
-
trzyszybowe okna PCV
-
budynek dostosowany do potrzeb osób z niepełnosprawnościami
Możliwość zakupu miejsca postojowego.
Otoczenie i komunikacja
Osiedle Poświętne to połączenie spokoju z szybkim dostępem do centrum miasta. W bezpośrednim sąsiedztwie znajdują się przystanki tramwajowe i autobusowe MPK, sklepy, punkty usługowe oraz pozostała infrastruktura niezbędna do codziennego życia.
Warunki zakupu:
-
pierwsza wpłata 10% (zwrotne w całości w przypadku odmowy udzielenia kredytu przez bank!)
-
brak podatku PCC
-
0% prowizji dla kupującego
Miejsca parkingowe:
-
miejsce naziemne – 30 000 zł
-
miejsce w garażu podziemnym – 35 000 zł
Zapraszam do kontaktu i umówienia prezentacji.
Angela Barczak
N-Home Nieruchomości
tel. 884 707 477
W ofercie posiadam również inne mieszkania w tej inwestycji, w tym lokale dostępne w cenach promocyjnych.
Zapewniamy też bezpłatną pomoc przy procesie kredytowym!
*Niniejsza oferta ma charakter informacyjny i nie stanowi oferty handlowej w rozumieniu art. 66 §1 Kodeksu cywilnego.
https://rtdeweloper.pl/