Mieszkanie na sprzedaż



Szczegóły ogłoszenia
- Symbol oferty NHM-MS-36750
- Typ oferty mieszkanie na sprzedaż
- Cena 529 872 zł
- Charakterystyka mieszkania 34.86 m2, 2 pokoje
- Budynek blok; rok budowy: 2024
- Rozkład mieszkania parter piętro
- Media Ogrzewanie: C.O. GAZOWE; Woda: jest; Gaz: tak - miejski
- Bezpieczeństwo Rolety antywłamaniowe
- Dojazd asfalt
- Garaż garaż podziemny
- Ilość sypialni 1
- Instalacje nowe
- Okna PCV
- Otoczenie osiedle
- Stan lokalu deweloperski
- Winda Tak
Lokalizacja
- Adres dolnośląskie, Wrocław, Fabryczna
Opis nieruchomości
Nowoczesne mieszkanie z ogródkiem – 34,86 m² | 2 pokoje | 529 872 zł
Na sprzedaż komfortowe, dwupokojowe mieszkanie o powierzchni 34,86 m², położone na parterze nowoczesnego budynku na wrocławskim Nowym Dworze. To doskonała propozycja dla osób poszukujących funkcjonalnego, gotowego do aranżacji lokum w dobrze skomunikowanej części miasta — idealna zarówno dla par, singli, jak i inwestorów.
Mieszkanie posiada duży, prywatny ogródek o powierzchni 77,33 m², który stanowi idealne miejsce do relaksu, spotkań i spędzania czasu na świeżym powietrzu.
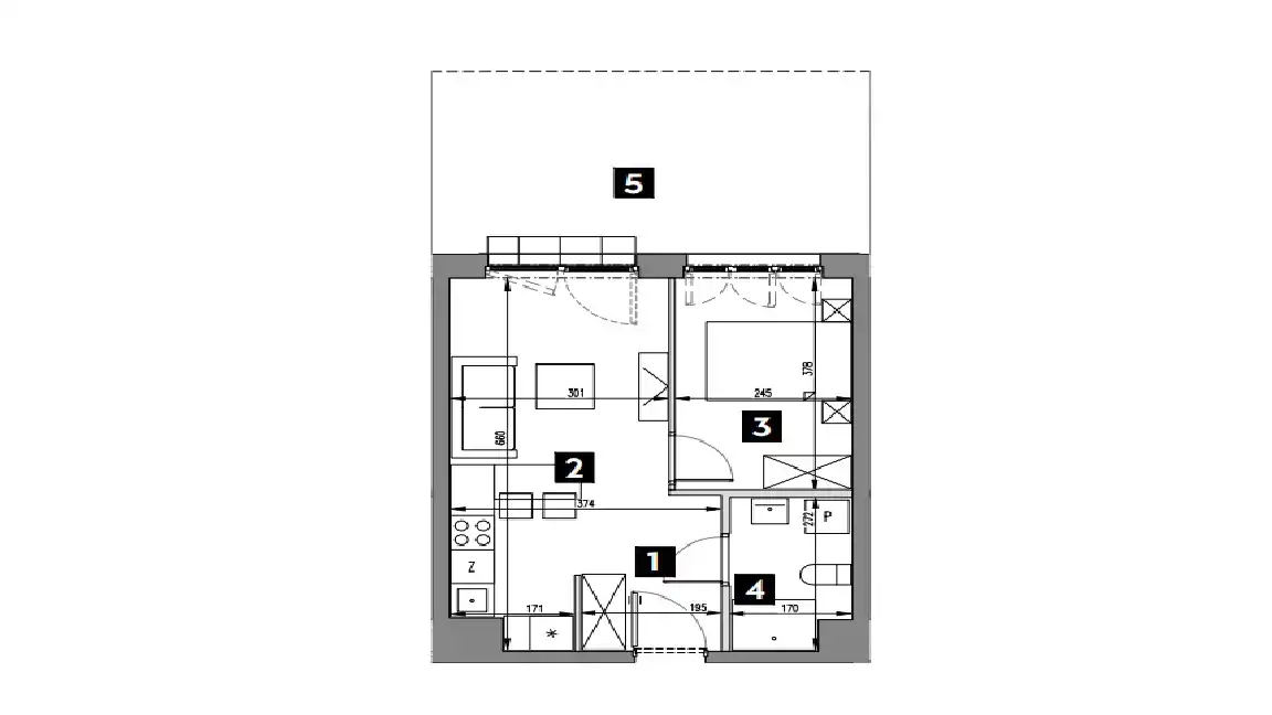
Rozkład pomieszczeń:
Korytarz – 4,50 m²
Pokój dzienny z aneksem kuchennym – 16,82 m²
Sypialnia – 9,19 m²
Łazienka – 4,35 m²
Ogródek – 77,33 m²
Parametry nieruchomości:
Cena: 529 872 zł
Powierzchnia: 34,86 m²
Liczba pokoi: 2
Piętro: 0 (parter)
Cena za m²: 15 200 zł/m²
Ogródek: tak – 77,33 m²
Możliwość dokupienia: komórki lokatorskiej oraz miejsca postojowego w garażu podziemnym
Atuty nieruchomości:
-
duży, prywatny ogródek z wyjściem z salonu,
-
nowoczesna architektura i wysoki standard inwestycji,
-
funkcjonalny, kompaktowy układ pomieszczeń,
-
słoneczna ekspozycja i duże przeszklenia,
-
spokojna, zielona okolica, idealna do życia i wypoczynku,
-
doskonała komunikacja — blisko przystanki MPK, szybki dojazd do centrum i obwodnicy.
Lokalizacja:
Nowy Dwór to dynamicznie rozwijająca się dzielnica Wrocławia, która przyciąga młodych mieszkańców i rodziny. W pobliżu znajdują się sklepy, przedszkola, szkoły, żłobki oraz centra handlowe. Mieszkańcy cenią tę okolicę za dobrą infrastrukturę, liczne tereny zielone oraz wygodny dojazd do każdej części miasta.
Odległości:
-
2 min spacerem – do sklepu spożywczego
-
3 min pieszo – do przystanku MPK
-
5 min rowerem – do Parku Tysiąclecia
-
16 min autem – do Rynku i atrakcji Starego Miasta
Zainteresowanych zapraszam do kontaktu i na prezentację:
Justyna, N-Home Nieruchomości
884 707 192
justyna@n-home.pl
Współpracując z nami, otrzymasz kompleksowe wsparcie przy zakupie nieruchomości – od doradztwa kredytowego po rekomendacje ekip wykończeniowych i rabaty w marketach budowlanych.
Ogłoszenie nie stanowi oferty handlowej w rozumieniu art. 66 §1 Kodeksu cywilnego.