Mieszkanie na sprzedaż


















Szczegóły ogłoszenia
- Symbol oferty RDO-MS-6878
- Typ oferty mieszkanie na sprzedaż
- Cena 549 999 zł
- Charakterystyka mieszkania 65.8 m2, 2 pokoje
- Budynek kamienica; rok budowy: 1932
- Rozkład mieszkania 1p piętro
- Media Ogrzewanie: elektryczne; Woda: tak-podgrzewacz elektryczny
- Balkon jest
- Czynsz Czynsz letni: 480 zł
- Dojazd asfaltowa/kostka
- Ilość sypialni 1
- Instalacje częściowo wymienione
- Okna DREWNIANE NOWY TYP
- Otoczenie centrum miasta
- Stan lokalu do remontu
- Technologia budowlana tradycyjna
Lokalizacja
- Adres dolnośląskie, Wrocław, Krzyki
Opis nieruchomości
Lwowska/bliżej Zaporoskiej | 65,8 m² | 2 pokoje | balkon | kamienica z potencjałem
Opis nieruchomości
Mieszkanie w kamienicy z lat 30. XX wieku, o powierzchni 65,8 m². Wysokie sufity, duże okna, wykusz oraz balkon tworzą jasną i przestronną przestrzeń. Lokal daje szerokie możliwości aranżacyjne, w tym podział na dwie niezależne kawalerki.
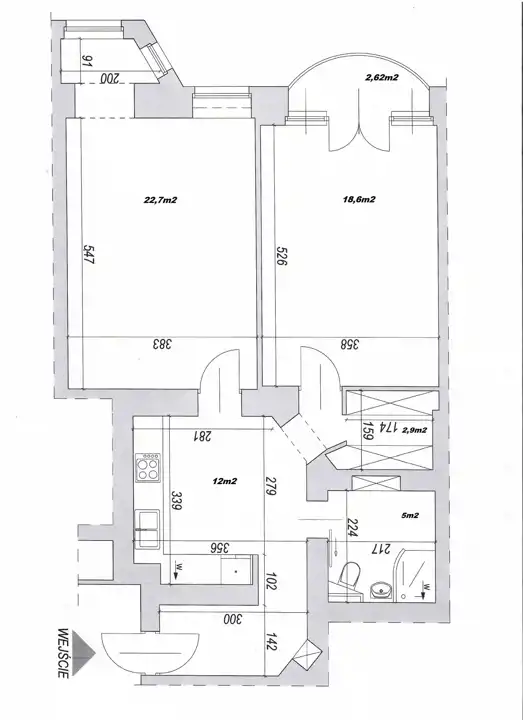
Rozkład pomieszczeń
-
Pokój z balkonem – 18,6 m²
-
Pokój z wykuszem – 23 m²
-
Kuchnia z przedpokojem – 17 m²
-
Garderoba – 3 m²
-
Łazienka – 5 m² Dodatkowo: piwnica, wspólny strych i rowerownia.
Stan techniczny
Mieszkanie wymaga remontu. Istnieje możliwość zachowania oryginalnej drewnianej podłogi. Okna drewniane /plastikowe są po wymianie. Ogrzewanie elektryczne z możliwością podłączenia gazowego. Ciepła woda z podgrzewacza przepływowego.
Budynek i otoczenie
-
Niezła klatka schodowa, domofon, nowe drzwi wejściowe
-
Zielone podwórze za budynkiem
-
Bezpłatne miejsca parkingowe
-
Niski czynsz – ok. 480 zł (w tym zaliczki na wodę i fundusz remontowy)
Lokalizacja
Spokojna, zielona okolica z dobrą komunikacją miejską. W pobliżu sklepy, szkoły, przedszkola oraz Eko Ryneczek Jemiołowa. Tramwaje i autobusy w zasięgu kilku minut.
Cena i kontakt
Cena: 550.000 zł Kontakt: Katarzyna Sroka 669925920
Rondo Nieruchomości Al. Kasztanowa 3a-5 53-125 Wrocław