Mieszkanie na sprzedaż



















Szczegóły ogłoszenia
- Symbol oferty NHM-MS-36185
- Typ oferty mieszkanie na sprzedaż
- Cena 560 000 zł
- Charakterystyka mieszkania 70.8 m2, 3 pokoje
- Budynek budynek wielorodzinny; rok budowy: 1865
- Rozkład mieszkania 1p piętro
- Media Ogrzewanie: elektryczne; Woda: jest; Gaz: jest
- Czynsz Czynsz letni: 605 zł
- Dojazd asfalt
- Garaż miejsce parkingowe przy budynku
- Instalacje dobre
- Okna PCV
- Otoczenie centrum miasta
- Stan lokalu do odświeżenia
- Technologia budowlana cegła
Lokalizacja
- Adres dolnośląskie, Wrocław, Stare Miasto
Opis nieruchomości
ENGLISH BELOW
Na sprzedaż 3-pokojowe mieszkanie o powierzchni 70,8 m2 przy ul. Podwale (wjazd od ul. Zelwerowicza).
Mieszkanie jest położone jest na I piętrze.
Kamienica jest tuż przy Akademii Muzycznej, bardzo blisko placu Jana Pawła II (ok. 200 m), a więc zaledwie jeden przystanek od wrocławskiego Rynku (niecały 1 km).
Mamy w okolicy mnóstwo lokali usługowych, sklepów, a po drugiej stronie ulicy fosę miejską i tereny zielone.
Nieruchomość ma duży potencjał - nadaje się świetnie na biuro/kancelarię, a także - ze względu na lokalizację - przy samej ulicy Zelwerowicza (gdzie znajduje się Akademia Muzyczna) - jest to doskonałe miejsce na wynajem dla studentów!
Do przystanków autobusowych i tramwajowych mamy pieszo 3 min.
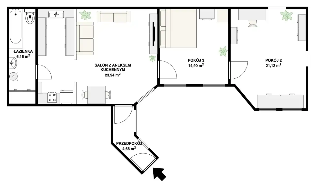
Mieszkanie 70,80 m2 składa się z:
- salonu z aneksem kuchennym - 23,94 m2
- pokoju 2 - 21,12 m2
- pokoju 3 - 14,9 m2
- przedpokoju - 4,68 m2
- łazienki - 6,16 m2
- + piwnica - ok. 14,0 m2
Mamy tu także wewnętrzny parking z bezpłatnymi miejscami parkingowymi.
Mieszkanie jest zadbane, wszystkie sprzęty są sprawne, ale wymaga odświeżenia lub - dla bardziej wymagających klientów - remontu.
Do mieszkania przynależy komórka lokatorska o powierzchni ok. 14 m2, która jest w cenie mieszkania!
Wyposażenie mieszkania pozostaje do negocjacji.
Okna wychodzą na 3 strony świata - północ, południe, zachód.
Budynek z roku 1865 r.
Czynsz wynosi 605 zł.
W budynku jest gaz, zatem jest możliwość zamontowania pieca gazowego do ogrzewania, ale póki co, funkcjonuje tu ogrzewanie elektryczne. Są prowadzone rozmowy, aby podpiąć budynek do miejskiej ciepłowni. Sąsiednie klatki już rozpoczęły ten proces.
Dla mieszkania zostało już wydane i jest aktualne świadectwo charakterystyki energetycznej.
W najbliższym roku będzie przeprowadzony remont dachu i elewacji budynku (z dociepleniem) - zarządca jest na etapie wyboru wykonawcy.
Przy zakupie oferujemy bon rabatowy do Leroy Merlin!
Oferujemy wsparcie przy uzyskaniu finansowania na zakup nieruchomości.
Pomożemy we wszystkich formalnościach.
Serdecznie zapraszam do kontaktu i prezentacji mieszkania.
CENA: 560 000 zł
*Prezentowana oferta nie stanowi oferty handlowej w rozumieniu Art. 66§1 Kodeksu Cywilnego, a dane w niej zawarte mają charakter jedynie informacyjny i mogą ulec zmianie.
============
For Sale: 3-Room Apartment (70.8 m²) on Podwale Street (car access from Zelwerowicza Street)
The apartment is located on the 1st floor.
The building is situated right next to the Academy of Music and very close to John Paul II Square (approx. 200 m), just one tram stop from Wrocław’s Market Square (less than 1 km away).
The area is full of service points and shops, and just across the street is the city moat and green spaces.
This property has great potential – it's perfect for an office or law firm. Thanks to its prime location right by Zelwerowicza Street (where the Academy of Music is located), it's also an excellent rental opportunity for students!
Bus and tram stops are just a 3-minute walk away.
The apartment has a total area of 70.80 m², comprising:
-
Living room with kitchenette – 23.94 m²
-
Room 2 – 21.12 m²
-
Room 3 – 14.9 m²
-
Hallway – 4.68 m²
-
Bathroom – 6.16 m²
-
Plus basement – approx. 14.0 m²
There is also an internal parking area with free parking spaces.
The apartment is well-maintained and all appliances are in working order, though it may require refreshing or, for more demanding buyers, renovation.
A storage unit of approx. 14 m² is included in the price of the apartment!
Furnishings can be negotiated.
Windows face three directions – north, south, and west.
The building dates back to 1865.
Monthly maintenance fees (czynsz) are PLN 605.
Gas is available in the building, making it possible to install a gas boiler for heating. Currently, the apartment is heated with electricity. Discussions are underway to connect the building to the city’s heating system – neighboring staircases have already begun the process.
The apartment has a valid Energy Performance Certificate.
Renovation of the roof and building façade (with insulation) is planned for the coming year – the property manager is currently selecting a contractor.
A Leroy Merlin discount voucher is included with the purchase!
We offer support with financing and will assist with all formalities.
Feel free to contact us and schedule a viewing!
PRICE: 560.000 PLN
This offer does not constitute a commercial offer within the meaning of Art. 66 §1 of the Polish Civil Code. All information is for informational purposes only and may be subject to change.