Mieszkanie na sprzedaż
















Szczegóły ogłoszenia
- Symbol oferty PROM-MS-2181
- Typ oferty mieszkanie na sprzedaż
- Cena 560 000 zł
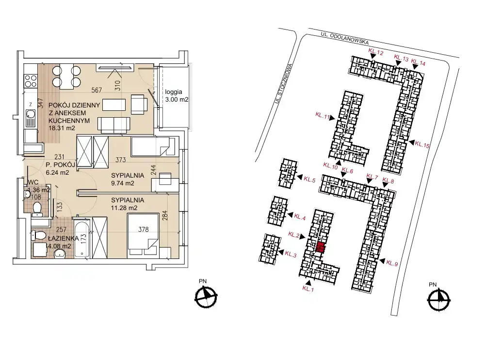
- Charakterystyka mieszkania 51 m2, 3 pokoje
- Budynek blok; rok budowy: 2023
- Rozkład mieszkania 1p piętro
- Media Ogrzewanie: C.O. miejskie; Woda: ciepła - miejska; Gaz: brak
- Bezpieczeństwo Rolety antywłamaniowe
- Balkon jest
- Dojazd ASFALTOWA
- Okna PCV
- Otoczenie osiedle
- Plac zabaw Tak
- Stan lokalu deweloperski
- Technologia budowlana żelbeton
- Winda Tak
Lokalizacja
- Adres dolnośląskie, Wrocław, Psie Pole
Opis nieruchomości
BEZ PROWIZJI ! BEZ PODATKU PCC ! OD DEWELOPERA !
Jeśli mieszkanie nie spełnia twoich oczekiwań to zaproponuje inne.
Inwestycja powstała w zacisznej części Wrocławia, z dala od intensywnego tempa centrum miasta. Jednocześnie dobra infrastruktura drogowa i środki transportu publicznego znajdujące się w najbliższej okolicy ułatwią mieszkańcom sprawną komunikację i dojazd do placu Grunwaldzkiego czy Rynku w kilkanaście minut. W otoczeniu osiedla zlokalizowane są żłobki, przedszkola, szkoły oraz osiedlowe sklepy i punkty usługowe, a trochę dalej także Centrum Handlowe Korona wraz z kinem Cinema City. Wszystko to umożliwi mieszkańcom rozrywkę i zaspokojenie codziennych potrzeb. W pobliżu jest również wiele terenów zielonych – Park Pawłowicki z Arboretum, Las Zakrzowski i wały nad rzeka Dobrą, które zapewniają przestrzeń do długich spacerów, wycieczek rowerowych i rodzinnych pikników.
Na mieszkanie o powierzchni 510,1 m2 składa się:
- pokój dzienny z aneksem kuchennym (18,31 m2)
- sypialnia (11,28 m2)
- pokój (9,74 m2)
- łazienka (4,08 m2)
- toaleta (136 m2 ) możliwość przerobienia na garderobę / pralnię
- przedpokój (6,24 m2)
Dodatkowo:
- loggia 3,0 m2
- Inwestycja GOTOWA, oddana do użytku
- Wewnętrzny dziedziniec zaprojektowany jak ogrody pełne drzew, krzewów, kwiatów
- Pełna infrastruktura okolicy
- Reprezentacyjne klatki schodowe
- Winda
- Ogrzewanie miejskie
CENA DEWELOPERSKA - 560 000 zł
CHCESZ WIEDZIEĆ WIĘCEJ ? ZADZWOŃ !
Opiekun oferty: MS-2181
Konrad Mosór tel: 517 433 429
konrad@komonieruchomosci.pl
Licencja nr: 28831
Zapraszam na bezpłatną prezentacje i do kontaktu z naszym biurem.
Szanowni Klienci, przedstawiona propozycja nie jest ofertą handlową w rozumieniu przepisów prawa, lecz ma charakter informacyjny. Nasze biuro dokłada starań, aby treści przedstawione w ofertach były aktualne i rzetelne. Dane dotyczące ofert uzyskano na podstawie oświadczeń właścicieli poszczególnych lokali.
KOMO NIERUCHOMOŚCI
ul. Karola Miarki 4 lok.III
Wrocław 50-305
www.komonieruchomosci.pl