Mieszkanie na sprzedaż
564 000 zł
33 m2









1 / 9
Szczegóły ogłoszenia
- Symbol oferty WPN-MS-1514
- Typ oferty mieszkanie na sprzedaż
- Cena 564 000 zł
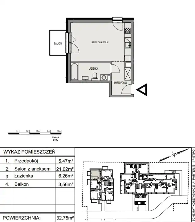
- Charakterystyka mieszkania 32.75 m2, 1 pokój
- Budynek nowe budownictwo; rok budowy: 2024
- Rozkład mieszkania 3p piętro
- Media Ogrzewanie: centralne; Woda: ciepła - miejska; Gaz: brak
- Bezpieczeństwo Rolety antywłamaniowe
- Balkon jest
- Dojazd asfalt
- Garaż garaż podziemny
- Ilość sypialni 1
- Instalacje nowe
- Okna DREWNIANE NOWY TYP
- Otoczenie centrum miasta
- Stan lokalu do wprowadzenia
- Technologia budowlana tradycyjna
- Winda Tak
Lokalizacja
- Adres dolnośląskie, Wrocław, Krzyki
Opis nieruchomości
Przedstawiamy Państwu nowe mieszkanie
- bezpośrednio od dewelopera
- bez podatku PCC
- bez prowizji dla Kupującego
Przedstawiam nową, wykończoną i w pełni wyposażoną kawalerkę bezpośrednio od dewelopera, która jest położona w samym centrum Wrocławia. Ten niezwykły apartament o powierzchni 32,75m2 znajduje się na III piętrze czteropiętrowego budynku i jest idealnym wyborem dla inwestora, singla lub pary, którzy cenią sobie wysoki standard i komfort. Mieszkanie jest w pełni wyposażone, dzięki czemu możesz się od razu wprowadzić. Oznacza to, że nowy właściciel może się tam wprowadzić bez konieczności inwestowania w dodatkowe meble czy sprzęty AGD. Lokalizacja tego apartamentu jest naprawdę niezwykła. Znajduje się ono w sercu miasta, co umożliwia łatwe dotarcie do wielu różnych miejsc w ciągu zaledwie kilku minut. W pobliżu znajdziesz sklepy oraz przystanki autobusowe i tramwajowe, co czyni to miejsce idealnym dla osób, które cenią sobie wygodę i łatwy dostęp do wszelkich udogodnień.
Nieruchomość ta została zaprojektowana z myślą o najwyższym standardzie. Wszystkie materiały użyte do wykończenia mieszkania są wysokiej jakości, co zapewnia trwałość na długie lata. Poza tym, układ mieszkania jest bardzo funkcjonalny i ergonomiczny, dzięki czemu mieszka się tu wygodnie i przyjemnie. To naprawdę wyjątkowa okazja, by mieć swój własny kawałek Wrocławia.
Jeśli szukasz nowoczesnego i komfortowego mieszkania w samym sercu miasta, to właśnie znalazłeś idealne miejsce.
Nie przegap tej okazji i skontaktuj się z nami już dziś!
Nr. Oferty w biurze: WPN-MS-1514
- Zainteresowała Cię ta oferta?
Jeszcze dziś umów się na spotkanie i bezpłatną prezentację! To nic nie kosztuje. Zadzwoń!
W naszej ofercie posiadamy wiele innych mieszkań na tej i innych inwestycjach.
Napisz czego poszukujesz a znajdziemy najlepsze oferty dla Ciebie.
Opiekun oferty: Wioletta Pawlicka
Tel: 601-312-432, 601-173-153
WP NIERUCHOMOŚCI
www.wpn.wroclaw.pl
Współpracujemy z 20 bankami co pozwala naszym klientom uzyskać optymalne warunki finansowania nieruchomości! Nasi doradcy kredytowi całkowicie bezpłatnie pomogą uzyskać najlepszy kredyt oraz szybko, sprawnie i skutecznie przeprowadzą Cię przez procedurę kredytową.
Powyższe ogłoszenie nie stanowi oferty handlowej w rozumieniu art. 66 & 1 kodeksu cywilnego oraz innych właściwych przepisów prawnych.
Nota prawna
Opis oferty zawarty na stronie internetowej sporządzany jest na podstawie oględzin nieruchomości oraz informacji uzyskanych od właściciela, może podlegać aktualizacji i nie stanowi oferty określonej w art. 66 i następnych K.C.
Kalkulator kredytowy
Formularz kontaktowy