Mieszkanie na sprzedaż
576 688 zł
43 m2







1 / 7
Szczegóły ogłoszenia
- Symbol oferty NHM-MS-37416
- Typ oferty mieszkanie na sprzedaż
- Cena 576 688 zł
- Charakterystyka mieszkania 43.36 m2, 2 pokoje
- Budynek apartamentowiec; rok budowy: 2026
- Rozkład mieszkania 1p piętro
- Media Ogrzewanie: C.O. miejskie; Woda: jest; Gaz: brak
- Balkon jest
- Garaż garaż podziemny
- Ilość sypialni 1
- Instalacje nowe
- Okna PCV 3 szyby, ciepły montaż
- Otoczenie osiedle
- Stan lokalu deweloperski
- Winda Tak
Lokalizacja
- Adres dolnośląskie, Wrocław, Psie Pole
Opis nieruchomości
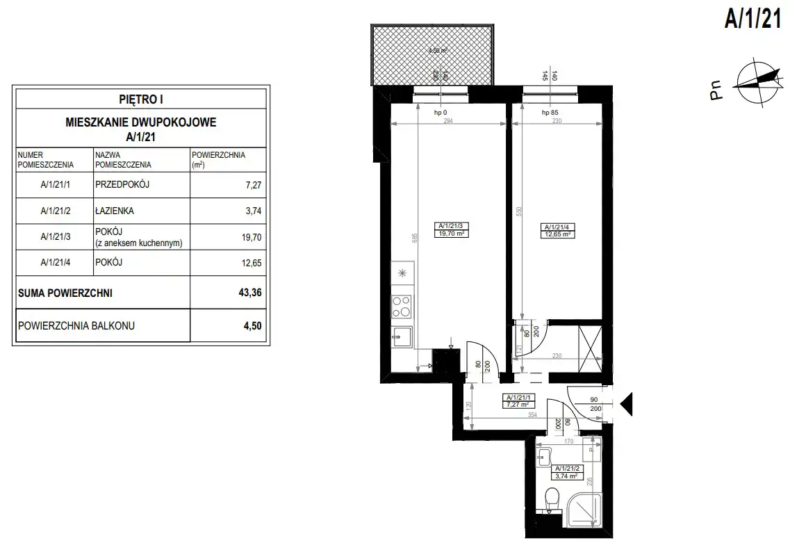
Na sprzedaż nowe, 2-pokojowe mieszkanie w stanie deweloperskim o powierzchni 43,36 m² z balkonem, położone na 1. piętrze nowoczesnego apartamentowca przy ul. Rudawskiej we Wrocławiu, na osiedlu Poświętne.
Mieszkanie jest gotowe.
Opis mieszkania
Przemyślany klasyczny układ pomieszczeń zapewnia komfort codziennego użytkowania:
W każdym pokoju znajdują się gniazdka telewizyjne oraz internetowe, co umożliwia wygodne zaaranżowanie przestrzeni zarówno do pracy, jak i wypoczynku.
Budynek i standard
Lokalizacja
Poświętne to spokojna i dynamicznie rozwijająca się część Wrocławia, oferująca dobrą komunikację z centrum miasta. W pobliżu znajdują się przystanki tramwajowe i autobusowe MPK oraz pełna infrastruktura osiedlowa.
Mieszkanie jest gotowe.
Opis mieszkania
Przemyślany klasyczny układ pomieszczeń zapewnia komfort codziennego użytkowania:
- salon z aneksem kuchennym – 19,70 m²
- sypialnia – 12,65 m²
- łazienka – 3,74 m²
- przedpokój z przemyślaną wnęką na garderobę – 7,27 m²
- balkon – 4,50 m²
W każdym pokoju znajdują się gniazdka telewizyjne oraz internetowe, co umożliwia wygodne zaaranżowanie przestrzeni zarówno do pracy, jak i wypoczynku.
Budynek i standard
- nowoczesny apartamentowiec (rok budowy 2026, dopiero oddany do użytku)
- winda
- monitoring części wspólnych
- drzwi antywłamaniowe
- ogrzewanie miejskie
- okna PCV, trzyszybowe
- budynek przystosowany dla osób z niepełnosprawnościami
Lokalizacja
Poświętne to spokojna i dynamicznie rozwijająca się część Wrocławia, oferująca dobrą komunikację z centrum miasta. W pobliżu znajdują się przystanki tramwajowe i autobusowe MPK oraz pełna infrastruktura osiedlowa.
- rynek pierwotny
- brak podatku PCC
- 0% prowizji od kupującego
Zapraszam na prezentację oraz zapoznania się z ofertą pozostałych mieszkań w tej inwestycji - posiadam w swojej ofercie także inne mieszkania w promocyjnej cenie.
Miejsce postojowe naziemne dostępne jest w cenie 30 000 zł.
Miejsce postojowe w garażu podziemnym dostępne jest w cenie 35 000 zł.
*Prezentowana oferta nie stanowi oferty handlowej w rozumieniu Art. 66§1 Kodeksu Cywilnego, a dane w niej zawarte mają charakter jedynie informacyjny i mogą ulec zmianie.
Nota prawna
Opis oferty zawarty na stronie internetowej sporządzany jest na podstawie oględzin nieruchomości oraz informacji uzyskanych od właściciela, może podlegać aktualizacji i nie stanowi oferty określonej w art. 66 i następnych K.C.
Kalkulator kredytowy
Formularz kontaktowy