Mieszkanie na sprzedaż
















Szczegóły ogłoszenia
- Symbol oferty BER-MS-3983
- Typ oferty mieszkanie na sprzedaż
- Cena 582 000 zł
- Charakterystyka mieszkania 44 m2, 2 pokoje
- Budynek blok; rok budowy: 1980
- Rozkład mieszkania 4p piętro
- Media Ogrzewanie: C.O. miejskie; Woda: ciepła - miejska; Gaz: jest
- Balkon Barierka
- Czynsz 808 zł
- Dojazd asfalt
- Garaż miejsce postojowe przed budynkiem
- Ilość sypialni 1
- Instalacje dobre
- Okna PCV
- Stan lokalu do wprowadzenia
- Technologia budowlana wielka płyta
- Umeblowanie pełne
- Winda Tak
Lokalizacja
- Adres dolnośląskie, Wrocław, Stare Miasto
Opis nieruchomości
2-pokojowe mieszkanie Wrocław Stare Miasto, ul. Grabiszyńska – gotowe do wprowadzenia
Na sprzedaż funkcjonalne 2-pokojowe mieszkanie o powierzchni 44 m² przy ul. Grabiszyńskiej 52, w dzielnicy Stare Miasto – Przedmieście Świdnickie. Doskonała lokalizacja dla osób, które chcą mieszkać w centrum Wrocławia, w spokojnej okolicy z dostępem do terenów zielonych i pełnej infrastruktury miejskiej.
Lokalizacja mieszkania – Stare Miasto, Wrocław
Mieszkanie położone blisko centrum, w rejonie z doskonale rozwiniętą komunikacją miejską: tramwaje (linie 4, 5, 11, 24) i autobusy (126, 134). W pobliżu parki Grabiszyński i Południowy, sklepy, restauracje, szkoły, przedszkola, przychodnie, Sky Tower oraz Arkady Wrocławskie. Lokalizacja łączy komfort życia w centrum z możliwością codziennego relaksu na świeżym powietrzu.
Mieszkanie na sprzedaż – 2 pokoje, gotowe do wprowadzenia
Mieszkanie czyste, zadbane i w pełni umeblowane.
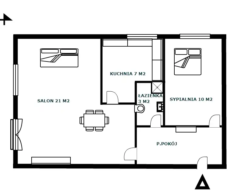
- Salon: 21 m² z kanapą, stołem i telewizorem
- Sypialnia: 10 m² z pojemną szafą i rozkładaną sofą
- Kuchnia: 7 m², osobna, w pełni wyposażona w AGD
- Łazienka: 3 m² z kabiną prysznicową i pralką
- Dodatkowo: przedpokój i komórka lokatorska ok. 2 m²
Podłogi w pokojach wykonane z paneli, w kuchni, łazience i przedpokoju – terakota. Dostępny internet (Netia).
Budynek – komfort i bezpieczeństwo
Budynek z lat 80., po modernizacji, 8 pięter, winda. Spokojne i zadbane otoczenie, komfortowe dla mieszkańców.
Idealne dla małych rodzin i par w centrum Wrocławia
Małe rodziny 2–3 osobowe:
- Blisko szkoły, przedszkola, parków i placów zabaw.
- Salon jako pokój dzienny, sypialnia dla rodziców; możliwość wydzielenia miejsca dla dziecka.
Pary lub singli 30–45 lat:
- Osoby pracujące w centrum lub zdalnie, ceniące dostęp do usług, sklepów i terenów rekreacyjnych.
- Mieszkanie gotowe do wprowadzenia, bez dodatkowych nakładów finansowych.
Inwestorzy indywidualni:
- Stabilna inwestycja w atrakcyjnej lokalizacji Starego Miasta.
- Gotowe do wynajmu, zapewniając szybki zwrot z kapitału.
Opłaty
Czynsz administracyjny: ok. 800 zł (z zaliczkami na wodę, ogrzewanie i wywóz śmieci).
Dodatkowo: prąd i gaz według zużycia.
Kontakt i zaproszenie do współpracy
Biuro Nieruchomości Dworakowski – działamy od 1991 roku
Doświadczenie i profesjonalizm gwarantują najwyższe standardy współpracy.
Zapraszamy do kontaktu i umówienia się na prezentację mieszkania. Z nami proces zakupu przebiega profesjonalnie i bezpiecznie.
Dariusz Dworakowski
tel. +48 663 400 352
e-mail: dworakowski@dworakowskinieruchomosci.pl
www.dworakowskinieruchomosci.pl