Mieszkanie na sprzedaż












Szczegóły ogłoszenia
- Symbol oferty NOM-MS-24238
- Typ oferty mieszkanie na sprzedaż
- Cena 599 000 zł
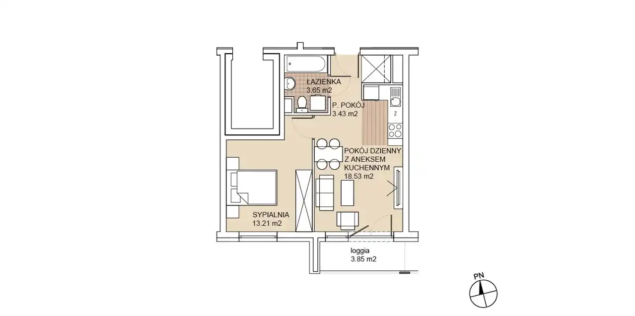
- Charakterystyka mieszkania 38.82 m2, 2 pokoje
- Budynek apartamentowiec; rok budowy: 2025
- Rozkład mieszkania 4p piętro
- Balkon jest
- Okna PCV
- Winda Tak
Lokalizacja
- Adres dolnośląskie, Wrocław, Psie Pole
Opis nieruchomości
PSIE POLE KOMFORTOWE MIESZKANIE BEZ PROWIZJI
BARDZO DOBRY STANDARD DEWELOPERSKI
WINDA BALKON MEDIA MIEJSKIE
ŁADNA ARCHITEKTURA
DUŻO ZIELENI DBAŁOŚĆ O DETALE
SPOKÓJ I CISZA SPRAWDZONY INWESTOR
Optymalne warunki do życia i odpoczynku
Doskonały adres dla wszystkich, którzy cenią zaciszne, przyjazne otoczenie sprzyjające zachowaniu wewnętrznej równowagi. Bogactwo roślin, zielone przestrzenie wypełnione krzewami i klombami kwiatów stworzą wymarzone okoliczności dla błogiego relaksu i regeneracji sił. Niewątpliwą atrakcją będzie teren rekreacyjny zaaranżowany od południowej strony osiedla. Znajdą się na nim miejsca aktywnego wypoczynku i plac zabaw, dzięki którym świetnie spędzą tam czas zarówno dzieci, jak i dorośli. Sprzęty do ćwiczeń na powietrzu, miejsca idealne do gry i zabawy, ścieżki spacerowo-rowerowe zachęcą do wyjścia z domu oraz wspólnego delektowania się wolnymi chwilami.
to rozbudowana oferta mieszkań od 1- do 5-pokojowych oraz o metrażach od 31 do ponad 90 metrów kwadratowych. Są wśród nich lokale z osobnymi kuchniami, które docenią zwolennicy tradycyjnego podziału wnętrz. W przypadku części mieszkań zaprojektowano również niezwykle praktyczne i perspektywiczne rozwiązanie – możliwość zmiany układu z dwóch lub trzech pokoi z osobną kuchnią na trzy lub cztery pokoje z aneksem kuchennym.
Do lokali przynależeć będą balkony lub loggie. Większość mieszkań na parterze posiadać będzie prywatne ogródki. Od przestrzeni dziedzińców oddzielać je będą żywopłoty, co zapewni użytkownikom poczucie prywatności. W oknach mieszkań na najniższej kondygnacji zamontowane zostaną rolety zewnętrzne. Wygodne parkowanie umożliwią miejsca postojowe naziemne oraz te zlokalizowane w garażu.
ZAPRASZAMY NOWE MIESZKANIA rozmawiamy o mieszkaniach .....
ZESPÓŁ SPECJALISTÓW D/S NIERUCHOMOŚCI
telefon: ☎ Anna Kosmala ☎
Sprawdź swoją zdolność kredytową, zanim zaczniesz szukać nieruchomości.
W ofercie posiadamy pełen przegląd rynku - 28 BANKÓW. Indywidualny Doradca Finansowy porówna aktualne oferty i wybierze najkorzystniejszą, indywidualnie dopasowaną do TWOICH potrzeb.
Pomagamy w załatwieniu wszystkich formalności
BEZ ŻADNYCH OPŁAT I PROWIZJI
NOWE MIESZKANIA - współpracujemy z NAJLEPSZYMI DEWELOPERAMI
NOWE MIESZKANIA - NAJWYŻSZA JAKOŚĆ I BEZPIECZEŃSTWO ZAKUPU
NOWE MIESZKANIA - 28 BANKÓW - NAJKORZYSTNIEJSZY I OBIEKTYWNY KREDYT MIESZKANIOWY