Mieszkanie na sprzedaż














Szczegóły ogłoszenia
- Symbol oferty NHM-MS-36785
- Typ oferty mieszkanie na sprzedaż
- Cena 604 260 zł
- Charakterystyka mieszkania 48.97 m2, 2 pokoje
- Budynek budynek wielorodzinny; rok budowy: 2016
- Rozkład mieszkania 3p piętro
- Balkon duży
- Czynsz Czynsz letni: 684 zł
- Dojazd ASFALTOWA
- Garaż miejsce postojowe przed budynkiem
- Ilość sypialni 1
- Instalacje dobre
- Okna PCV 3 szyby, ciepły montaż
- Otoczenie osiedle
- Stan lokalu do wprowadzenia
- Technologia budowlana beton
- Winda Tak
Lokalizacja
- Adres dolnośląskie, Wrocław, Psie Pole
Opis nieruchomości
Szukasz nowoczesnego mieszkania na rozwijającym osiedlu, gotowego do wprowadzenia bez dodatkowych nakładów?
》》》Na sprzedaż 2-pokojowe mieszkanie 49 m² z balkonem i miejscem postojowym, położone na 3. piętrze budynku z 2016 roku z windą. 《《《
To mieszkanie to idealna propozycja dla osób, które szukają gotowego do wprowadzenia lokum na spokojnym, dobrze skomunikowanym osiedlu, w otoczeniu zieleni i pełnej infrastruktury.
》》》 UKŁAD I STANDARD:
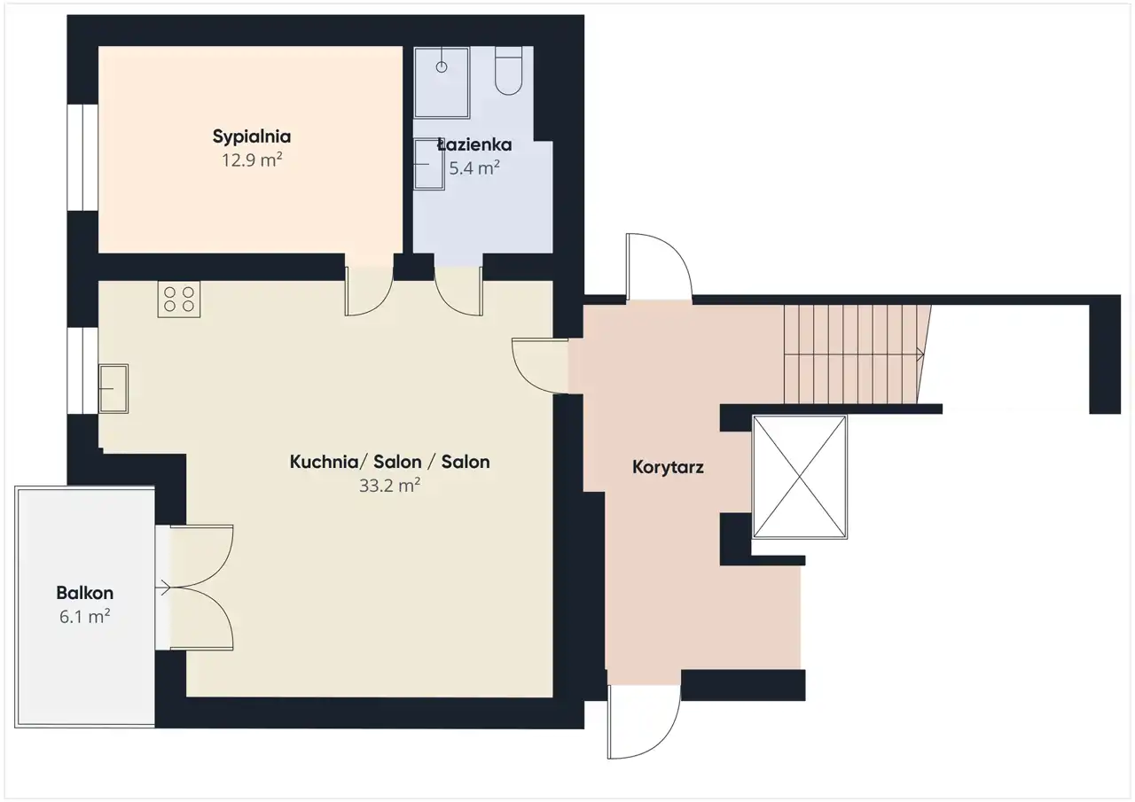
- przestronny salon z aneksem kuchennym (33,2 m²) i wyjściem na balkon, bardzo dobrze doświetlony dzięki ekspozycji południowo-zachodniej i zachodniej (SW–W),
- sypialnia 12,9 m² z dużą szafą i wygodnym łóżkiem,
- łazienka 5,4 m² z kabiną prysznicową, zabudową meblową oraz pralką,
- balkon 6,1 m² – idealne miejsce na odpoczynek po pracy,
- wysokość pomieszczeń 2,6 m,
- okna PCV 3-szybowe,
- podłogi: panele i kafelki.
Mieszkanie jest w pełni umeblowane i gotowe do zamieszkania
》》》 BUDYNEK I UDOGODNIENIA:
- budynek z 2016 roku, 4 piętra, winda,
- ogrzewanie: kotłownia osiedlowa,
- gaz: tak,
- domofon,
- Miejsce postojowe dodatkowo płatne 15 000 zł – zakup obligatoryjny.
》》》 KOSZTY UTRZYMANIA:
-
czynsz: 684 zł / 2 osoby, zawiera:
administrację, ogrzewanie, utrzymanie części wspólnych, fundusz remontowy, wodę zimną i ciepłą, wywóz śmieci,
-
dodatkowo: prąd oraz internet/telewizja.
》》》 LOKALIZACJA I KOMUNIKACJA:
Wrocław – Psie Pole, spokojna część dzielnicy, dogodny dojazd do centrum i AOW.
- pętla autobusowa – linie 121, 128, 130, 151, D
- stacja kolejowa Wrocław Psie Pole
- Park Pawłowicki
- Lidl, Biedronka, Aquapark Zakrzów z centrum fitness
- żłobek, przedszkole, szkoły, place zabaw i skatepark
- park dla psów z torem przeszkód
- usługi medyczne, fryzjerskie i kosmetyczne w zasięgu kilku minut
W najbliższym czasie powstanie nowa pętla autobusowa – duże udogodnienie dla mieszkańców.
》》》 DLA KOGO?
Dla singla, pary lub inwestora, który szuka gotowego mieszkania pod wynajem.
Pełne wyposażenie, dobra komunikacja i zielone otoczenie czynią tę ofertę wyjątkowo atrakcyjną.
Nowoczesne, zadbane mieszkanie z balkonem i miejscem postojowym – idealne dla osób szukających wygody i dobrej lokalizacji.
Zapraszam do kontaktu i umówienia prezentacji.
Prezentowana oferta nie stanowi oferty handlowej w rozumieniu Art. 66 §1 KC, a dane w niej zawarte mają charakter jedynie informacyjny i mogą ulec zmianie.