Mieszkanie na sprzedaż
609 000 zł
33 m2







1 / 7
Szczegóły ogłoszenia
- Symbol oferty WPN-MS-1662
- Typ oferty mieszkanie na sprzedaż
- Cena 609 000 zł
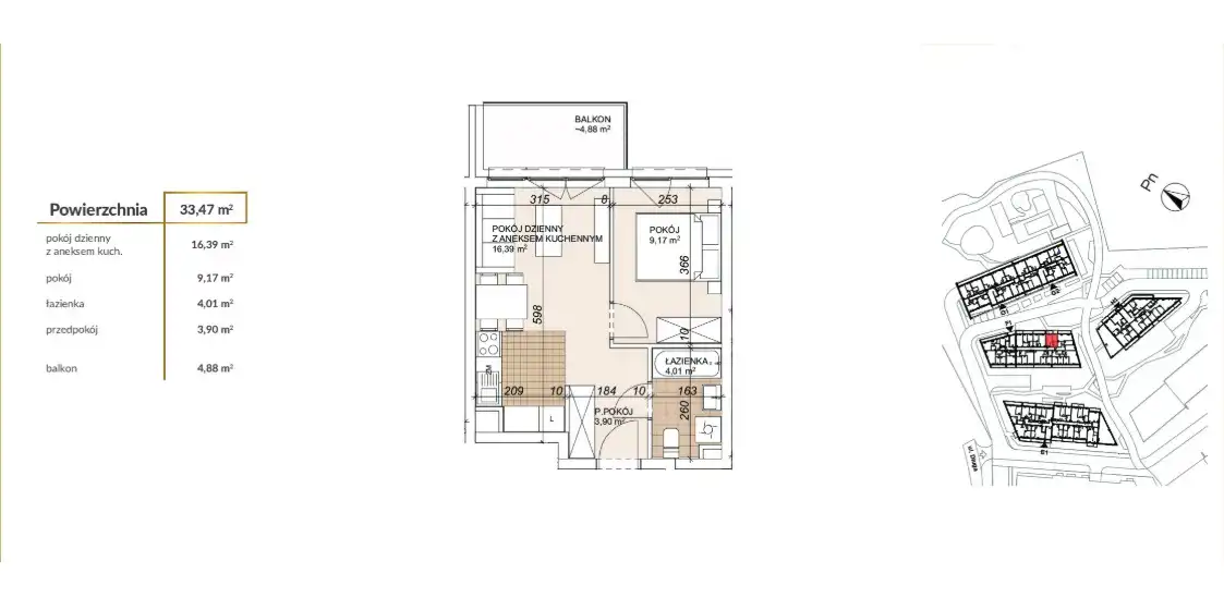
- Charakterystyka mieszkania 33.47 m2, 2 pokoje
- Budynek apartamentowiec; rok budowy: 2026
- Rozkład mieszkania 1p piętro
- Media Ogrzewanie: centralne; Woda: ciepła - miejska
- Balkon duży
- Dojazd asfalt
- Ilość sypialni 1
- Instalacje nowe
- Okna PCV
- Otoczenie centrum miasta
- Stan lokalu do wykończenia
- Technologia budowlana murowana
- Winda Tak
Lokalizacja
- Adres dolnośląskie, Wrocław, Stare Miasto
Opis nieruchomości
Przedstawiamy Państwu nowe mieszkania
- bezpośrednio od dewelopera
- bez podatku PCC
- bez prowizji dla Kupującego
Osiedle powstaje tuż przy Odrze, na Starym Mieście. Tej wyjątkowej lokalizacji zawdzięcza swój charakter – wielkomiejski, z doskonałą komunikacją, o krok od centrum i tętniących życiem arterii, a jednocześnie zwrócony w stronę terenów zielonych, biegnących wzdłuż rzeki.Polecam Państwu przestronne, 2 pokojowe mieszkanie o powierzchni użytkowej 33,5m2 z dużym balkonem.
Lokal znajduje się na 1 piętrze sześciopiętrowego budynku. W skład mieszkania wchodzą:
- salon z aneksem kuchennym wyjściem na balkon
- oddzielna sypialnia
- łazienka 4m2
- przedpokój z miejscem na szafę w zabudowie
- balkon
Rozciągające się wzdłuż Odry tereny spacerowe, pobliskie parki: Popowicki i Zachodni to wymarzona okolica dla osób ceniących aktywny wypoczynek. Poranny lub wieczorny jogging, wycieczki rowerowe, rodzinne spacery – tu każdy znajdzie miejsce na swoją ulubioną formę rekreacji. W poszukiwaniu spokoju i wyciszenia wystarczy usiąść nad brzegiem i zapatrzyć się w leniwie płynącą wodę.
Położenie niedaleko ścisłego centrum pozwoli mieszkańcom swobodnie korzystać z jego atrakcyjnej oferty kulturalnej i rozrywkowej. W zasięgu ręki jest Hala Orbita miejsce koncertów, targów i imprez sportowych, oraz plaża miejska HotSpot Beach Bar - popularna wśród miłośników zabawy i relaksu na świeżym powietrzu. W niewielkiej odległości od osiedla znajdują się także liczne ośrodki biznesowe i biurowe oraz Centrum Handlowe Magnolia Park ze sklepami, kinem i restauracjami.
Termin realizacji inwestycji: II kwartał 2026r
Istnieje możliwość wykończenia mieszkania pod klucz. Dzięki temu każdy realizowany projekt jest przygotowywany w sposób indywidualny, zgodny z oczekiwaniami inwestora, co gwarantuje unikatowy efekt końcowy.
- Nr. Oferty w biurze: WPN-MS-1662
UWAGA! Kupujący nie płaci prowizji dla biura.
Kupujący zwolniony jest również z 2% podatku!
Zainteresowała Cię ta oferta?
Jeszcze dziś umów się na spotkanie i bezpłatną prezentację! To nic nie kosztuje. Zadzwoń!
W naszej ofercie posiadamy wiele innych mieszkań na tej i innych inwestycjach.
Napisz czego poszukujesz a znajdziemy najlepsze oferty dla Ciebie.
Opiekun oferty: Wioletta Pawlicka
Tel: 601-312-432, 601-173-153
WP NIERUCHOMOŚCI
www.wpn.wroclaw.pl
Współpracujemy z 20 bankami co pozwala naszym klientom uzyskać optymalne warunki finansowania nieruchomości! Nasi doradcy kredytowi całkowicie bezpłatnie pomogą uzyskać najlepszy kredyt oraz szybko, sprawnie i skutecznie przeprowadzą Cię przez procedurę kredytową.
Powyższe ogłoszenie nie stanowi oferty handlowej w rozumieniu art. 66 & 1 kodeksu cywilnego oraz innych właściwych przepisów prawnych.
Nota prawna
Opis oferty zawarty na stronie internetowej sporządzany jest na podstawie oględzin nieruchomości oraz informacji uzyskanych od właściciela, może podlegać aktualizacji i nie stanowi oferty określonej w art. 66 i następnych K.C.
Kalkulator kredytowy
Formularz kontaktowy