Mieszkanie na sprzedaż








Szczegóły ogłoszenia
- Symbol oferty ALFM-MS-2321
- Typ oferty mieszkanie na sprzedaż
- Cena 614 400 zł
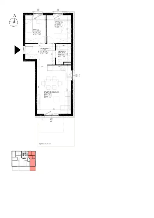
- Charakterystyka mieszkania 55 m2, 3 pokoje
- Budynek rok budowy: 2025
- Rozkład mieszkania parter piętro
- Winda Tak
Lokalizacja
- Adres dolnośląskie, Wrocław, Psie Pole
Opis nieruchomości
Do sprzedaży przestronne 3 pokoje z ogródkiem na nowym, kameralnym osiedlu na Lipie Piotrowskiej.
Posiadamy w sprzedaży mieszkania na innych piętrach oraz o różnych układach-zapraszam na spotkanie na osiedlu!
NIERUCHOMOŚĆ:
Jasne, ustawne mieszkanie o powierzchni 55m2 m2 usytuowane na parterze kameralnego budynku wielorodzinnego.
Mieszkanie składa się z przestronnego pokoju dziennego z aneksem kuchennym, 2 sypialni, ustawnego przedpokoju, dużej łazienki oraz dodatkowo ogródka od strony południowej.
Ekspozycja:południowy-wschód.
Nie ten układ,nie to piętro,nie ta strona świata?To tylko jedno z kilku tysięcy mieszkań z rynku pierwotnego , które mamy w ofercie!
Zamiast przeglądać kolejne ogłoszenia, zapraszam do kontaktu-znajdziemy dla Ciebie mieszkanie,którego szukasz.
Bez prowizji, bez PCC 2%.
NAJWIĘKSZE ATUTY INWESTYCJI:
- Kameralne osiedle o niskiej, dwupiętrowej zabudowie
- Bezpośrednie sąsiedztwo terenów rekreacyjnych-Park Widawski,rzeka Widawa,liczne ścieżki rowerowe
- W pobliżu restauracje, kawiarnie, piekarnia, supermarkety(Carrefour,Dino) apteka, sklepy,przedszkola,żłobki,przychodnie.
- W trakcie budowy jest nowoczesny zespół szkolno-przedszkolny na 1000 dzieci, którego otwarcie zaplanowano na wrzesień 2024.
- Wygodne połączenie z centrum miasta :
- W odległości ok. 100 -150 m są przystanki autobusowe linii 108,111,143, 244.
- W odległości ok. 800 m stacja kolejowa PKP Wrocław Osobowice. ( bezpłatne parkowanie w ramach powstałej sieci parkingów Park&Ride - rozwiązanie dla osób, które łączą podróż samochodem i komunikacją publiczną ).
CENA:
Mieszkanie: 614.400
Możliwość zakupu miejsca postojowego w hali garażowej oraz komórki lokatorskiej.
Zakup zwolniony z podatku PCC.
Kupujący nie płaci prowizji.
Termin Oddania: I Kwartał 2025- w tej inwestycji mamy też dostępne układy w I Etapie-gotowe już w 2024.
Zdjęcia przedstawione w ofercie są wizualizacjami. Mieszkanie jest oddawane w stanie deweloperskim, do własnej aranżacji.
Zapewniam pomoc w uzyskaniu kredytu oraz w wykończeniu mieszkania pod klucz.
Zapraszam do kontaktu.
Kasia Chajec
tel.+ 48 882 714 302
Alfama Nieruchomości S.C.