Mieszkanie na sprzedaż




Szczegóły ogłoszenia
- Symbol oferty WPN-MS-1448
- Typ oferty mieszkanie na sprzedaż
- Cena 624 000 zł
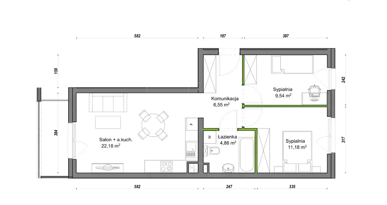
- Charakterystyka mieszkania 54.3 m2, 3 pokoje
- Budynek blok; rok budowy: 2025
- Rozkład mieszkania 2p piętro
- Media Ogrzewanie: centralne; Woda: ciepła - miejska; Gaz: brak
- Balkon jest
- Dojazd asfalt
- Garaż garaż podziemny
- Ilość sypialni 2
- Instalacje nowe
- Okna PCV
- Otoczenie działki zabudowane
- Plac zabaw Tak
- Stan lokalu deweloperski
- Winda Tak
Lokalizacja
- Adres dolnośląskie, Wrocław, Krzyki
Opis nieruchomości
Przedstawiamy Państwu nowe mieszkania
- bezpośrednio od dewelopera
- bez podatku PCC
- bez prowizji dla Kupującego
Tylko dla naszych klientów atrakcyjne rabaty, cena niższa nawet o 20% od ofertowej.
Zapraszamy do zapoznania się z wyjątkową ofertą nowoczesnego mieszkania o powierzchni 54,3 mkw, znajdującego się na prestiżowym Ołtaszynie we Wrocławiu. Ta atrakcyjna nieruchomość stanowi idealną propozycję dla osób poszukujących komfortowego i funkcjonalnego miejsca do życia.
Charakterystyka mieszkania:
- Salon z aneksem kuchennym: Przestronny salon z otwartą kuchnią stanowi centralną część mieszkania, idealną do spotkań rodzinnych i relaksu. Funkcjonalne rozplanowanie przestrzeni umożliwia swobodne aranżacje zgodnie z preferencjami mieszkańców.
- Dwie sypialnie: Mieszkanie posiada dwie wygodne sypialnie, zapewniające prywatność i komfortowy sen.
- Łazienka z WC: Przestronna łazienka to miejsce codziennej higieny i relaksu. Staranne wykonanie i funkcjonalność zapewniają wygodę użytkowania.
- Przedpokój: Przestronny przedpokój z funkcjonalnymi szafami wnękowymi umożliwiającymi przechowywanie garderoby i innych niezbędnych rzeczy.
- Balkon: Do mieszkania przynależy uroczy balkon, stanowiący idealne miejsce do wypoczynku na świeżym powietrzu oraz cieszenia się widokiem na otaczającą okolicę.
Atrakcyjność lokalizacji: Ołtaszyn to jedna z najbardziej pożądanych dzielnic we Wrocławiu, charakteryzująca się doskonałą infrastrukturą oraz bogatą ofertą gastronomiczną. Bliskość terenów zielonych, parków oraz licznych punktów usługowo-handlowych sprawia, że Ołtaszyn jest idealnym miejscem do życia dla osób ceniących spokój i wygodę, bez rezygnacji z dostępu do miejskich atrakcji.
Zalety inwestycji:
- Duży wybór mieszkań: Inwestycja oferuje różnorodne metraże oraz układy mieszkań, co pozwala na dopasowanie oferty do indywidualnych potrzeb i preferencji klientów. Dostępnych jest ponad 70 wolnych lokali mieszkalnych.
- Dogodna lokalizacja: Inwestycja położona jest w strategicznym punkcie Ołtaszyna, zapewniając szybki dostęp do wszystkich niezbędnych punktów usługowo-handlowych oraz infrastruktury miejskiej.
Zapraszamy do kontaktu w celu uzyskania dodatkowych informacji oraz umówienia się na prezentację. To doskonała okazja, by zamieszkać w komfortowym i nowoczesnym mieszkaniu w jednej z najbardziej pożądanych lokalizacji we Wrocławiu.
Termin realizacji: II kwartał 2026
Nr. Oferty w biurze: WPN-MS-1448
UWAGA! Kupujący nie płaci prowizji dla biura.
Kupujący zwolniony jest również z 2% podatku!
Zainteresowała Cię ta oferta?
Jeszcze dziś umów się na spotkanie i bezpłatną prezentację! To nic nie kosztuje. Zadzwoń!
W naszej ofercie posiadamy wiele innych mieszkań na tej i innych inwestycjach.
Napisz czego poszukujesz a znajdziemy najlepsze oferty dla Ciebie.
Opiekun oferty: Wioletta Pawlicka
Tel: 601-312-432, 601-173-153
WP NIERUCHOMOŚCI
www.wpn.wroclaw.pl
Współpracujemy z 20 bankami co pozwala naszym klientom uzyskać optymalne warunki finansowania nieruchomości! Nasi doradcy kredytowi całkowicie bezpłatnie pomogą uzyskać najlepszy kredyt oraz szybko, sprawnie i skutecznie przeprowadzą Cię przez procedurę kredytową.
Powyższe ogłoszenie nie stanowi oferty handlowej w rozumieniu art. 66 & 1 kodeksu cywilnego oraz innych właściwych przepisów prawnych.