Mieszkanie na sprzedaż


















Szczegóły ogłoszenia
- Symbol oferty POTR-MS-670
- Typ oferty mieszkanie na sprzedaż
- Cena 625 000 zł
- Charakterystyka mieszkania 46 m2, 2 pokoje
- Budynek apartamentowiec; rok budowy: 2023
- Rozkład mieszkania 4p piętro
- Media Ogrzewanie: C.O. lokalne
- Balkon jest
- Czynsz Czynsz letni: 600 zł
- Dojazd asfalt
- Garaż miejsce garażowe
- Instalacje nowe
- Okna PCV
- Otoczenie osiedle
- Plac zabaw Tak
- Stan lokalu wysoki standard
- Taras taras
- Winda Tak
Lokalizacja
- Adres dolnośląskie, Wrocław m., Wrocław
Opis nieruchomości
Oferta tylko w POTER Nieruchomości.
Na sprzedaż bardzo ładne i komfortowe 2-pokojowe mieszkanie o powierzchni 45,63 m2 z dużym balkonem na 4 piętrze 5-piętrowego apartamentowca z windą z 2023 r. na Krzykach, na Partynicach przy ul. Jeździeckiej, na nowoczesnym osiedlu Tęczowy Raj, w okolicy Parku Klecińskiego i Toru Wyścigów Konnych
W pobliżu są parki, ścieżki rowerowe, sklepy oraz przystanki autobusowe i tramwajowe.
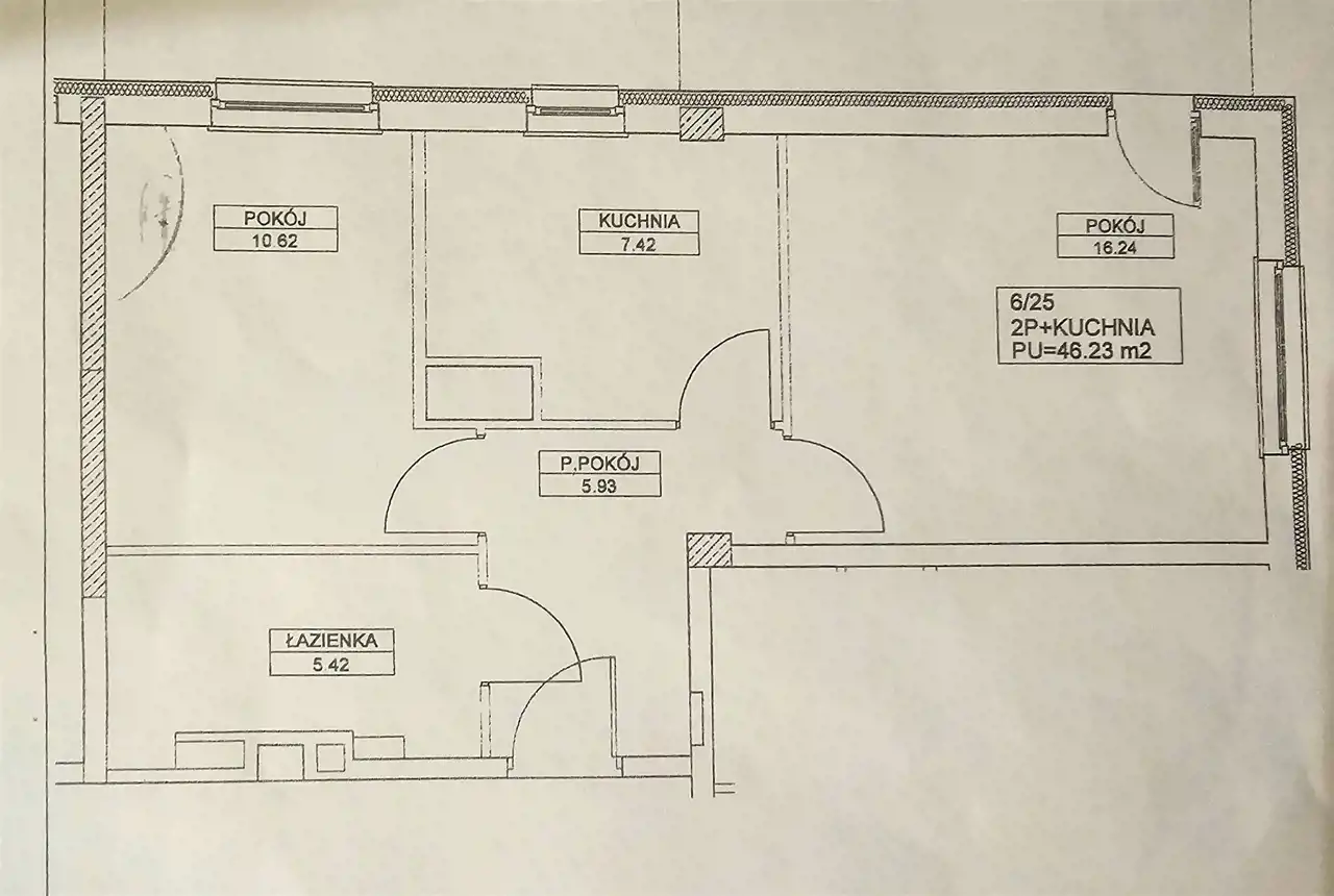
⭐️ Mieszkanie składa się z:
- salonu z wyjściem na słoneczny balkon (16,24 m2)
- sypialni z szafą (10,62 m2)
- oddzielnej kuchni z oknem (7,42 m2)
- przedpokoju z szafą (5,93 m2)
- łazienki z WC (5,42 m2)
- dużego balkonu (ok. 10 m2)
⭐️ Do mieszkania przynależy miejsce parkingowe w garażu podziemnym płatne dodatkowo 35 000 zł oraz komórka lokatorska (4,07 m2) - płatna dodatkowo 20 000 zł (zakup obligatoryjny).
⭐️ W budynku jest rowerownia/wózkownia
⭐️ Bezpieczne, nowoczesne i prestiżowe osiedle, z placem zabaw i dużą ilością zieleni
⭐️ Lokal ciepły, dwustronny z ekspozycją słoneczną na południową i wschodnią stronę
⭐️ Wysoki standard wykończenia
⭐️ Czynsz: ok. 600 zł (woda, ogrzewanie, fundusz remontowy, sprzątanie, administracja, części wspólne, śmieci)
⭐️ Światłowód
⭐️ Budynek przystosowany dla osób niepełnosprawnych
⭐️ Wideodomofon
⭐️ Mieszkanie w pełni umeblowane i wyposażone w sprzęt AGD, gotowe do wprowadzenia od zaraz!
⭐️ Idealne zarówno do zamieszkania, jak i jako inwestycja pod wynajem!
⭐️ Pełna własność z księgą wieczystą
Atuty lokalizacji:
- świetnie skomunikowana okolica (tramwaj, autobus) – szybki dojazd do centrum
- w pobliżu sklepy tj. Aldi, Biedronka, Rossmann, Auchan, CH Bielany, Żabka
- dostęp do terenów rekreacyjno-sportowych, ścieżek rowerowych i spacerowych, stanowiących przyjazne otoczenie dla osiedla
- w pobliżu Park Kleciński, Tor Wyścigów Konnych, Park Migdałowy, Park Południowy
- Szkoła Podstawowa nr 42
- Tramwaj: 7,17
Autobus: 126, 133, D, 107, 247, 933
CENA: 625 000 zł Do negocjacji
Polecam, zapraszam do kontaktu.
Ewelina Otawa
Pośrednik w obrocie nieruchomościami lic. zaw. nr 22791
tel. 666- 660- 478
nr oferty: POTR-MS-670
email: ewelina@poternieruchomosci.pl
Jeśli planujesz kupić lub sprzedać swoją nieruchomość chętnie Ci w tym pomogę. Zapraszam do bezpłatnej konsultacji, która pomoże Ci dobrać najlepszą strategię.
* Prezentowana oferta nie stanowi oferty handlowej w rozumieniu Art. 66 par. 1 Kodeksu Cywilnego, a dane w niej zawarte mają charakter jedynie informacyjny i mogą ulec zmianie.
_________________________________________________________________________________
POTER Nieruchomości kompleksowo zajmuje się obsługą sprzedaży/kupna nieruchomości, współpracujemy z doradcą kredytowym, który wybierze dla Państwa najlepszą i korzystną opcję kredytu, posiadamy ubezpieczenie OC, gwarantujemy bezpieczeństwo transakcji.