Mieszkanie na sprzedaż












Szczegóły ogłoszenia
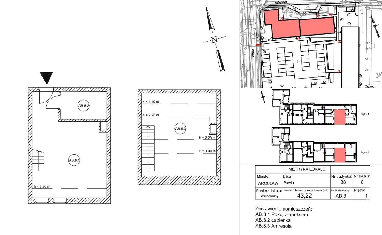
- Symbol oferty PAW-MS-34
- Typ oferty mieszkanie na sprzedaż
- Cena 658 240 zł
- Charakterystyka mieszkania 43.22 m2, 2 pokoje
- Budynek nowe budownictwo; rok budowy: 2024
- Rozkład mieszkania 1p piętro
- Okna drewniane
- Stan lokalu deweloperski
- Technologia budowlana cegła
Lokalizacja
- Adres dolnośląskie, Wrocław, Krzyki
Opis nieruchomości
Wyjątkowa inwestycja PAWIA OD NOWA!
Projekt zrealizowany w oparciu o przebudowę zabytkowego folwarku przy ul. Pawiej 38 - gotowe mieszkanie z założoną księgą wieczystąCena mieszkania z wliczonym miejscem postojowym : 658 240 zł brutto
Cena m2 : 15 230 zł / m2
Niepowtarzalny charakter inwestycji wynika z lokalizacji przy ulicy Pawiej, niegdysiejszej głównej ulicy wsi Wojszyce. Znajdujące się tutaj charakterystyczne zabudowania folwarczne pochodzące z pierwszych lat XX wieku są unikatowe na skalę światową. Inwestycja została zrealizowana we współpracy z konserwatorem zabytków, dzięki czemu zachowała ducha dawnych lat.
W trzech budynkach, z których każdy posiada własną historię i odpowiadającą jej architekturę, powstały łącznie 23 unikalne mieszkania oraz 5 lokali usługowych. Na terenie inwestycji powstał również parking naziemny, z miejscami postojowymi dedykowanymi mieszkańcom oraz klientom lokali użytkowych.
Mieszkanie AB8 znajduje się na pierwszym piętrze i jest mieszkaniem dwupoziomowym. Na pierwszym poziomie znajduje się część dzienna z aneksem kuchennym oraz łazienka. Antresola stanowi idealną przestrzeń na prywatną część sypialną oraz miejsce do pracy.
Do mieszkania przypisane jest miejsce postojowe.