Mieszkanie na sprzedaż








Szczegóły ogłoszenia
- Symbol oferty NHM-MS-37223
- Typ oferty mieszkanie na sprzedaż
- Cena 699 000 zł
- Charakterystyka mieszkania 51.65 m2, 3 pokoje
- Budynek blok; rok budowy: 2025
- Rozkład mieszkania wysoki parter piętro
- Media Ogrzewanie: C.O. miejskie; Woda: tak - miejska; Gaz: brak
- Balkon jest
- Dojazd asfalt
- Ilość sypialni 2
- Instalacje nowe
- Okna PCV
- Stan lokalu deweloperski
- Winda Tak
Lokalizacja
- Adres dolnośląskie, Wrocław, Psie Pole
Opis nieruchomości
Mieszkanie 3-pokojowe – gotowe do odbioru, nowoczesne osiedle na Sołtysowicach
0% PROWIZJI0% PCC
MIEJSCE POSTOJOWE W CENIE !!!
Na sprzedaż komfortowe, gotowe do odbioru mieszkanie na wrocławskich Sołtysowicach. Osiedle wyróżnia nowoczesna architektura, starannie zaprojektowane części wspólne oraz zielone, rekreacyjna przestrzeń dla mieszkańców. Idealna propozycja zarówno dla pary, rodziny jak i inwestora pod wynajem.
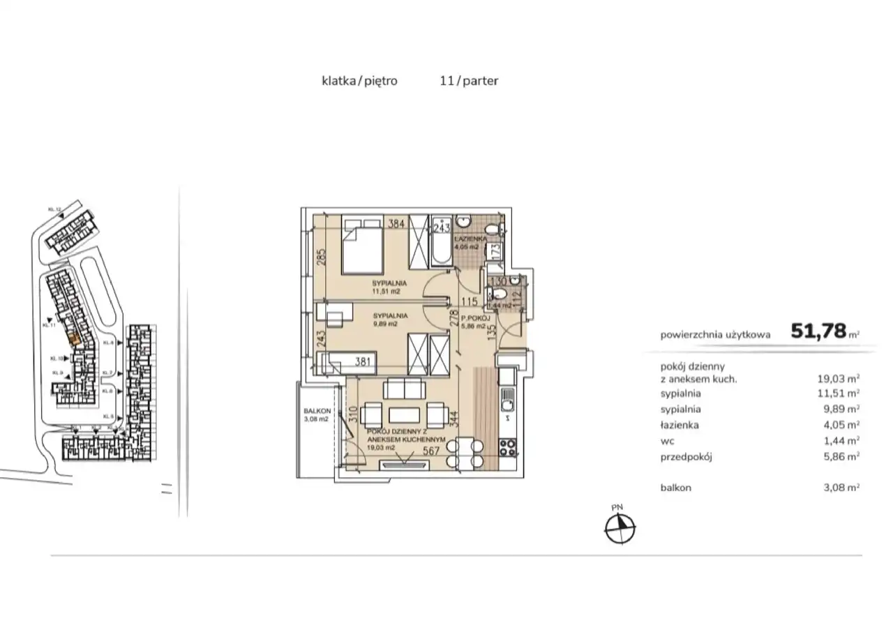
Funkcjonalny układ mieszkania – 51,65 m² + balkon 3,08 m²
Mieszkanie składa się z:
-
Pokój dzienny z aneksem kuchennym – 19,06 m²
Przestronna, jasna strefa dzienna z miejscem na wygodną sofę, stół jadalniany i zabudowę kuchenną. Wyjście na loggię. -
Sypialnia – 11,47 m²
Ustawna, z miejscem na duże łóżko i szafę. -
Sypialnia - 9,79m2
Mniejsza sypialnia dla dziecka lub miejsce do pracy zdalnej -
Łazienka – 4,04 m²
Idealna do aranżacji pod prysznic lub wannę. -
Przedpokój – 5,86 m²
-
Toaleta - 1,43m2
-
Balkon – 3,08 m²
Doskonała przestrzeń na poranną kawę lub pracę na świeżym powietrzu.
Mieszkanie jest gotowe do odbioru – stan deweloperski umożliwia wykończenie dokładnie według własnego stylu.
Nowoczesne osiedle na Sołtysowicach
Osiedle zostało zaprojektowane z myślą o wygodzie i codziennym komforcie mieszkańców. Wyróżnia je:
-
reprezentacyjne, eleganckie klatki schodowe
wykończone wysokiej klasy materiałami – duże płyty gresowe, elementy drewniane, dekoracyjne tapety. -
nowoczesne windy i szerokie ciągi komunikacyjne.
-
przestrzenie wypoczynkowe na terenie osiedla – alejki spacerowe, ławki, nasadzenia.
-
strefy rekreacyjne i sportowe
plac zabaw dla dzieci, siłownia na świeżym powietrzu. -
duże, zielone dziedzińce pomiędzy budynkami – idealne do odpoczynku po pracy.
-
monitoring i kontrola dostępu – bezpieczeństwo na wysokim poziomie.
-
łatwy dostęp do komunikacji – szybki dojazd do centrum, Psiego Pola, obwodnicy.
Inwestycja znajduje się w dynamicznie rozwijającej się części Sołtysowic, w pobliżu zieleni, małych sklepów, usług oraz przystanków.
Dlaczego warto?
-
mieszkanie gotowe do odbioru, dostępne od ręki
-
spokojna, dobrze skomunikowana część Wrocławia
-
nowoczesne osiedle z rozbudowaną strefą rekreacyjną
-
przemyślany układ mieszkania – idealne pod wynajem
-
funkcjonalna loggia
-
wysoki standard części wspólnych
-
w pobliżu tereny zielone, sklepy i komunikacja
Zadzwoń i zapytaj o dostępne mieszkania 1,2 i 3 pokojowe
W ofercie posiadam również inne mieszkania i domy na rynku pierwotnym i wtórnym.
Zapraszam do kontaktu
Michał Cepuch
tel. 884 707 778
Przy zakupie oferujemy wsparcie przy uzyskaniu finansowania na zakup nieruchomości z opcją dodatkowych korzyści! Szczegóły u Doradcy Finansowego.
Oferujemy szereg innych usług związanych z rynkiem nieruchomości. Zapraszamy do współpracy z naszym biurem.
*Prezentowana oferta nie stanowi oferty handlowej w rozumieniu Art. 66 par. 1 Kodeksu Cywilnego, a dane w niej zawarte mają charakter jedynie informacyjny i mogą ulec zmianie