Mieszkanie na sprzedaż

















Szczegóły ogłoszenia
- Symbol oferty NHM-MS-36711
- Typ oferty mieszkanie na sprzedaż
- Cena 713 000 zł
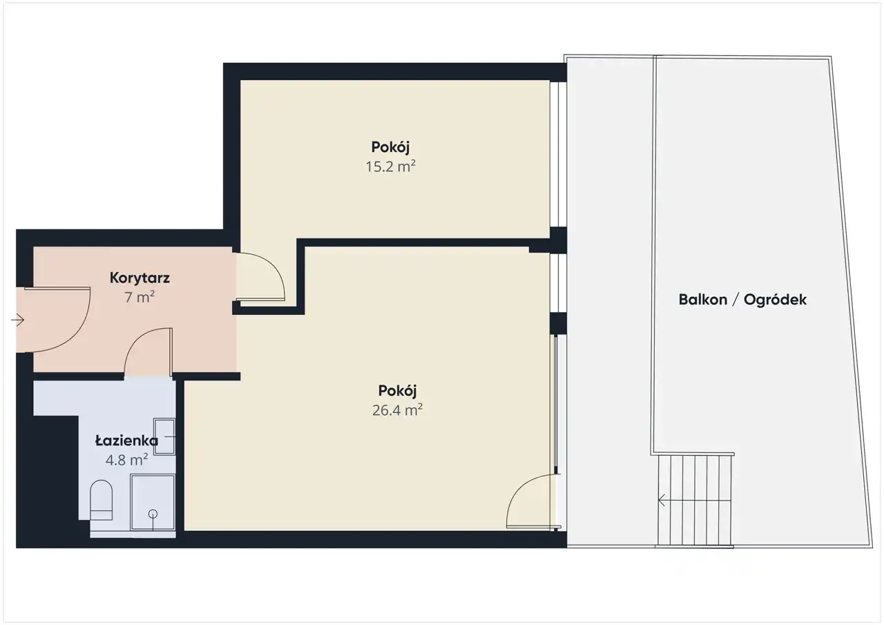
- Charakterystyka mieszkania 52.85 m2, 2 pokoje
- Budynek nowe budownictwo
- Rozkład mieszkania parter piętro
- Balkon duży
- Czynsz Czynsz letni: 617 zł
- Garaż miejsce garażowe
- Ilość sypialni 1
- Okna PCV 3 szyby, ciepły montaż
- Stan lokalu bardzo dobry
- Winda Tak
Lokalizacja
- Adres dolnośląskie, Wrocław, Krzyki
Opis nieruchomości
Szukasz nowoczesnego mieszkania na spokojnym osiedlu , które możesz wykończyć i urządzić po swojemu?
》》》Na sprzedaż 2-pokojowe mieszkanie 52,85 m² z ogromnym balkonem i własnym ogródkiem, położone na parterze nowego budynku z 2025 roku (kameralna, niska zabudowa). 《《《
Cena mieszkania: 713 000 zł
Cena zakupu miejsca w garażu podziemnym: 35 000 zł
》》》 UKŁAD I STANDARD:
- przedpokój prowadzący do każdego pomieszczenia,
- przestronny salon z aneksem kuchennym i dużymi oknami, które wpuszczają mnóstwo światła,
- sypialnia z widokiem na ogród,
- łazienka w nowoczesnym stylu – w pełni wykończona, gotowa do użytkowania (miejsce na pralkę i suszarkę),
- podłogi z paneli, mieszkanie gotowe do wprowadzenia – wystarczy zabudować kuchnię i wnieść meble.
- polecam zobaczyć rzut
》》》Największym atutem jest ogromny balkon z wyjściem do prywatnego ogródka. To dobre miejsce na poranną kawę, a dla osób ze zwierzakiem – bezpieczna przestrzeń, gdzie pupil może spędzać czas na świeżym powietrzu.
》》》 BUDYNEK I UDOGODNIENIA:
- rok budowy: 2025, nowoczesna inwestycja w niskiej zabudowie,
- garaż podziemny bardzo przydatna rzecz
- spokojne, kameralne osiedle, wciąż rozwijające się,
- niskie koszty utrzymania – czynsz 617 zł.
》》》 LOKALIZACJA:
Mieszkanie znajduje się na rozwijającym się osiedlu przy ul. Iwaszkiewicza we Wrocławiu. To miejsce, które łączy spokój nowej zabudowy z wygodnym dostępem do centrum.
- 5 minut samochodem do Wrocławskiego Centrum Sportu,
- 22 minuty do lotniska,
- 8 minut do Uniwersytetu Medycznego – idealne także pod wynajem,
- 3 minuty do Biedronki, 5 minut do gabinetu kosmetycznego,
- wygodna komunikacja autobusowa – dojazd w różne części miasta.
》》》 DLA KOGO?
To mieszkanie sprawdzi się zarówno dla singla, pary, jak i inwestora. Jest gotowe do zamieszkania od razu – wystarczy wstawić kuchnię i umeblować. Dzięki nowemu budownictwu i funkcjonalnemu układowi to także świetna opcja pod wynajem.
》》》Nowoczesne, z dużym balkonem, własnym ogródkiem i garażem – to mieszkanie daje Ci przestrzeń i swobodę, jakiej szukasz.
Przy zakupie oferujemy wsparcie przy uzyskaniu finansowania na zakup nieruchomości z opcją dodatkowych korzyści! Szczegóły u Doradcy Finansowego.
Oferujemy szereg innych usług związanych z rynkiem nieruchomości. Zapraszamy do współpracy z naszym biurem.*Prezentowana oferta nie stanowi oferty handlowej w rozumieniu Art. 66 par. 1 Kodeksu Cywilnego, a dane w niej zawarte mają charakter jedynie informacyjny i mogą ulec zmianie