Mieszkanie na sprzedaż










Szczegóły ogłoszenia
- Symbol oferty NMK-MS-24364
- Typ oferty mieszkanie na sprzedaż
- Cena 719 587 zł
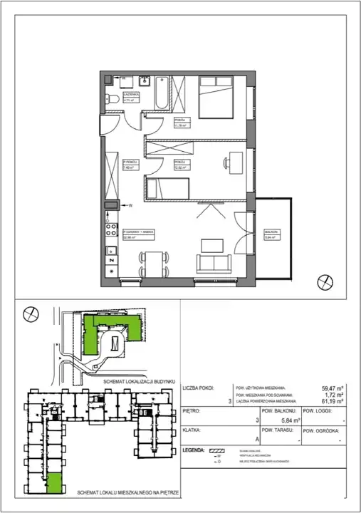
- Charakterystyka mieszkania 57.49 m2, 3 pokoje
- Budynek apartamentowiec; rok budowy: 2025
- Rozkład mieszkania 3p piętro
- Media Ogrzewanie: C.O. miejskie
- Bezpieczeństwo Rolety antywłamaniowe
- Balkon jest
- Garaż Tak
- Plac zabaw Tak
- Stan lokalu deweloperski
- Winda Tak
Lokalizacja
- Adres dolnośląskie, Wrocław, Krzyki
Opis nieruchomości
KRZYKI TARNOGAJ BEZ PROWIZJI GOTOWE MIESZKANIE
Nowoczesna architektura, wysoki standard wykończenia,
Stacje ładowania samochodów elektrycznych,
Stojaki i wieszaki na rowery, tramwaj i autobus, dwa parki
Dużo zieleni wokół projektu, doskonała lokalizacja,
Pełny dostęp do miejskiej infrastruktury
Wyjątkowe miejsce na wrocławskiej mapie nieruchomości, które idealnie łączy w sobie nowoczesność i wygodę. Młodych ludzi przyciąga tu zarówno doskonała komunikacja z centrum Wrocławia, jak i bliskość terenów rekreacyjnych oraz ścieżek rowerowych. To również wymarzona dzielnica dla rodzin z dziećmi, które odnajdą tu parki, sklepy, szkoły i miejsca rozrywki.
OSIEDLE, łączy w sobie walory estetyczne z optymalną funkcjonalnością wnętrz. Elewację budynku wykończymy płytką klinkierową, a na parterze powstanie indywidualnie zaprojektowane, reprezentacyjne lobby wejściowe. Wykorzystamy wiele rozwiązań wspierających środowisko naturalne i przyczyniających się do zmniejszenia zużycia energii, m.in. panele fotowoltaiczne i oświetlenie LED. Na terenie osiedla powstaną miejsca do ładowania samochodów elektrycznych, a do budowy alejek wykorzystamy kostkę antysmogową. Każde mieszkanie bez dodatkowych opłat wyposażymy w system Smart House firmy Keemple pozwalający na efektywne gospodarowanie energią oraz kontrolę jej zużycia.
ZAPRASZAMY NOWE MIESZKANIA
ZESPÓŁ EKSPERTÓW D/S NIERUCHOMOŚCI
Sprawdź swoją zdolność kredytową, zanim zaczniesz szukać nieruchomości.
W ofercie posiadamy pełen przegląd rynku - 28 BANKÓW. Indywidualny Doradca Finansowy porówna aktualne oferty i wybierze najkorzystniejszą, indywidualnie dopasowaną do TWOICH potrzeb.
Pomagamy w załatwieniu wszystkich formalności
BEZ ŻADNYCH OPŁAT I PROWIZJI
NOWE MIESZKANIA - współpracujemy z NAJLEPSZYMI DEWELOPERAMI
NOWE MIESZKANIA - NAJWYŻSZA JAKOŚĆ I BEZPIECZEŃSTWO ZAKUPU
NOWE MIESZKANIA - 28 BANKÓW - NAJKORZYSTNIEJSZY I OBIEKTYWNY KREDYT MIESZKANIOWY