Mieszkanie na sprzedaż





Szczegóły ogłoszenia
- Symbol oferty NIDO-MS-395
- Typ oferty mieszkanie na sprzedaż
- Cena 719 943 zł
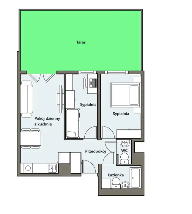
- Charakterystyka mieszkania 57 m2, 3 pokoje
- Budynek blok; rok budowy: 2026
- Rozkład mieszkania 1p piętro
- Media Ogrzewanie: C.O. miejskie; Woda: ciepła - miejska; Gaz: brak
- Balkon jest
- Dojazd asfalt
- Garaż garaż pod budynkiem
- Ilość sypialni 2
- Instalacje nowe
- Okna PCV
- Otoczenie osiedle
- Plac zabaw Tak
- Stan lokalu deweloperski
- Taras taras duży
- Winda Tak
Lokalizacja
- Adres dolnośląskie, Wrocław, Krzyki
Opis nieruchomości
Brak podatku 2%PCC oraz prowizji!
To idealne miejsce dla tych, którzy cenią sobie komfort oraz dostęp do wszystkich udogodnień miejskiego życia.
Mieszkanie 3 pokojowe o powierzchni około 57 m².
Lokal usytuowany na 1 piętrze w budynku z windą.
Planowany termin realizacji budynku na wiosnę 2026 r
Opis mieszkania:
- przy wejściu do mieszkania miejsce na szafę
- salon z wyjściem na taras
- łazienka plus osobna toaleta
- ustawne sypialnie
- wystawa okienna skierowana na zachód
- mieszkanie środkowe, jednostronne
Tylko w grudniu atrakcyjne systemy płatności oraz możliwość negocjacji.
Posiadam szeroki wybór mieszkań 3 pokojowych o różnych metrażach.
Każde mieszkanie zaprojektowane jest z myślą o funkcjonalności i komforcie mieszkańców.
Udogodnienia: Osiedle zapewnia mieszkańcom szereg atrakcji, takich jak:
- osiedle z ochroną i monitoringiem
- do użytku mieszkańców rowerownia
- miejsca postojowe oraz komórki lokatorskie w garażu podziemnym - dodatkowo płatne
- place zabaw dla dzieci
- strefy rekreacyjne z zielenią
Lokalizacja: Inwestycja znajduje się na Klecinie, z doskonałym dostępem do komunikacji miejskiej, szkół, sklepów oraz terenów rekreacyjnych. Bliskość Parku Klecińskiego oraz Parku Południowego zapewnia idealne warunki do relaksu i aktywnego spędzania czasu na świeżym powietrzu.
Dlaczego warto? Zdecyduj się na zakup mieszkania i stań się częścią dynamicznie rozwijającej się społeczności! Gwarantuję profesjonalną obsługę podczas całego procesu zakupu i pomoc w uzyskaniu kredytu hipotecznego oraz wykończenia nieruchomości
Nie czekaj – zostań właścicielem wymarzonego mieszkania już dziś!
Zapraszam do kontaktu, jestem do Państwa dyspozycji pod numerem telefonu: 574-076-776
Katarzyna Dorosz
NiDO Nieruchomości
nr licencji: 24771
tel: 574-076-776
e-mail:kasia@nidonieruchomosci.pl
Powyższa oferta ma charakter informacyjny i nie stanowi oferty handlowej w rozumieniu art. 66 §1 Kodeksu Cywilnego.
Pośrednik odpowiedzialny zawodowo za wykonanie umowy pośrednictwa: Katarzyna Dorosz licencja nr: 24771