Mieszkanie na sprzedaż




Szczegóły ogłoszenia
- Symbol oferty ALFM-MS-4121
- Typ oferty mieszkanie na sprzedaż
- Cena 728 000 zł
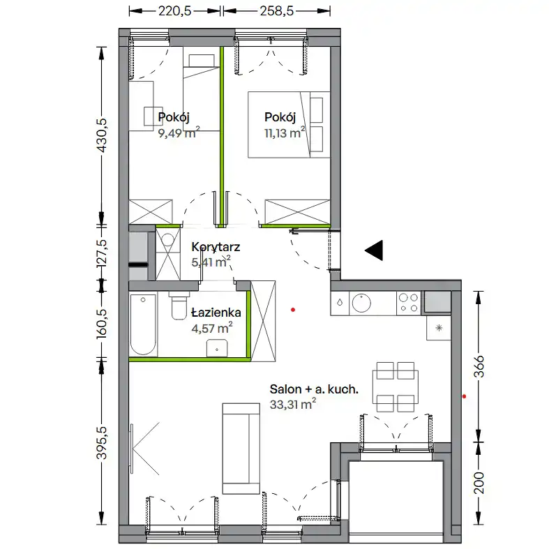
- Charakterystyka mieszkania 63.91 m2, 3 pokoje
- Budynek apartamentowiec; rok budowy: 2026
- Rozkład mieszkania 3p piętro
- Media Ogrzewanie: C.O. miejskie
- Bezpieczeństwo Rolety antywłamaniowe
- Balkon duży
- Garaż garaż pod budynkiem
- Ilość sypialni 1
- Okna PCV
- Otoczenie działki zabudowane
- Stan lokalu deweloperski
- Winda Tak
Lokalizacja
- Adres dolnośląskie, Wrocław, Fabryczna
Opis nieruchomości
3-pokojowe mieszkanie z możliwością wydzielenia kuchni| Słoneczne| Nowe Żerniki |Gotowe- II kwartał 2026
Na sprzedaż przestronne mieszkanie o powierzchni 63 m², położone na 3. piętrze nowoczesnego budynku z windą. Układ został zaprojektowany z myślą o wygodzie i funkcjonalności:
-
Salon z aneksem kuchennym – 33,31 m²
Przestronna część dzienna z dużymi przeszkleniami, która zapewnia naturalne światło przez cały dzień. Aneks kuchenny ustawny, z miejscem na pełną zabudowę oraz stół jadalniany(możliwość wydzielenia kuchni) Z salonu wyjście na balkon 4 m² – idealny na poranną kawę czy popołudniowy relaks. -
Sypialnia – 11,13 m²
Ustawny pokój z miejscem na duże łóżko i szafę w zabudowie. -
Pokój – 9,49 m²
Świetnie sprawdzi się jako pokój dziecka, gabinet lub dodatkowa sypialnia. -
Łazienka – 4,57 m²
Z miejscem na wannę/prysznic, umywalkę i pralkę. -
Korytarz – 5,41 m²
Przewidziano w nim miejsce na pojemne szafy w zabudowie.
Dzięki południowej ekspozycji wnętrza są doskonale doświetlone, a przestrzeń dzienna wyjątkowo przytulna.
Mieszkanie dwustronne:północ/południe.Atuty mieszkania:
-
funkcjonalny, rodzinny układ – dwie sypialnie oraz przestronny salon z aneksem/możliwość wydzielenia kuchni
-
mieszkanie w stanie deweloperskim, dające możliwość dowolnej aranżacji wnętrz
- jasne pomieszczenia i bardzo funkcjonalny rozkład
- ustawny balkon
- Ekspozycja: południe/północ
- 1 piętro-ten sam układ jest też dostępny na wyższych kondygnacjach
Atuty lokalizacji – Nowe Żerniki:
-
nowoczesne osiedle projektowane z myślą o komforcie mieszkańców
-
pełna infrastruktura w zasięgu kilku minut: sklepy, restauracje, przedszkola, punkty usługowe,placówki medyczne
-
duży, centralny plac zabaw i przestrzenie rekreacyjne – idealne dla rodzin z dziećmi
-
dogodne połączenia komunikacyjne – w pobliżu linia tramwajowa zapewniająca szybki dojazd do centrum
-
liczne tereny zielone, ścieżki spacerowe i rowerowe
-
wygodny dojazd do autostradowej obwodnicy Wrocławia
Dodatkowe informacje:
-
rynek pierwotny – brak podatku PCC
-
możliwość zakupu miejsca postojowego i komórki lokatorskiej (opcjonalnie)
Mieszkanie stanowi doskonały wybór dla rodzin poszukujących wygodnej i dobrze skomunikowanej lokalizacji w dynamicznie rozwijającej się części Wrocławia.
CENA:Mieszkanie: 728.000 PLN.
Zakup zwolniony z podatku PCC.
Kupujący nie płaci prowizji.
Zdjęcia przedstawione w ofercie są wizualizacjami.
Mieszkanie jest oddawane w stanie deweloperskim, do własnej aranżacji. Oferujemy pomoc w wykończeniu mieszkania pod klucz oraz uzyskaniu kredytu na zakup nieruchomości.
Posiadamy w swojej ofercie inne mieszkania 1-4 pokojowe w tej inwestycji oraz na innych osiedlach na Maślicach.Zapraszam do kontaktu.
Kasia Chajec
tel.+ 48 882 714 302
kasia@alfama-nieruchomosci.pl
Alfama Nieruchomości S.C.
|
Powyższa oferta ma charakter informacyjny i nie stanowi oferty handlowej w rozumieniu art. 66 §1 Kodeksu Cywilnego.
Pośrednik odpowiedzialny zawodowo za wykonanie umowy pośrednictwa: Katarzyna Chajec (licencja nr: 23503).