Mieszkanie na sprzedaż





Szczegóły ogłoszenia
- Symbol oferty PROM-MS-2045
- Typ oferty mieszkanie na sprzedaż
- Cena 730 000 zł
- Charakterystyka mieszkania 73.2 m2, 3 pokoje
- Budynek blok; rok budowy: 2024
- Rozkład mieszkania 3p piętro
- Media Ogrzewanie: C.O. miejskie; Woda: ciepła - miejska; Gaz: brak
- Bezpieczeństwo Rolety antywłamaniowe
- Dojazd ASFALTOWA
- Instalacje nowe
- Okna PCV 3 szyby, ciepły montaż
- Plac zabaw Tak
- Stan lokalu deweloperski
- Taras taras duży
- Winda Tak
Lokalizacja
- Adres dolnośląskie, Wrocław, Krzyki
Opis nieruchomości
BEZ PROWIZJI ! BEZ PODATKU PCC ! OD DEWELOPERA !
Jeśli mieszkanie nie spełnia twoich oczekiwań to zaproponuje inne. W tej inwestycji są dostępne mieszkania o różnym układzie i metrażu.
Sprzedajemy ponad 120 inwestycji we Wrocławiu i okolicy.
GOTOWE - Zakończona Budowa
Wyjątkowa inwestycja na Księżu Wielkim. Nowoczesne mieszkania, funkcjonalny układ i wysoki standard.
Kameralna inwestycja w którym znajdują się tylko 28 lokali mieszkalnych, garaż podziemny i komórki lokatorskie. Każde z mieszkań posiada balkon lub taras z ogródkiem, a niektóre lokale z antresolami mają wyjście na duży taras.
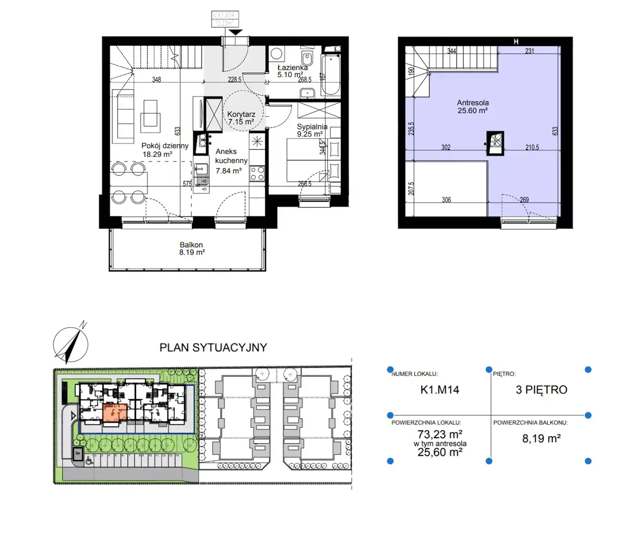
Na mieszkanie o powierzchni 73,2 m2 składa się:
- korytarz (7,27 m2)
- pokój dzienny (19 m2)
- aneks kuchenny (7,9 m2)
- sypialnia (9,25 m2)
- łazienka (5,10 m2)
- antresola (25,6 m2)
Możliwość podziału antresoli na osobną sypialnie + garderoba + druga łazienka.
DODATKOWO:
- balkon 8,19 m2
- miejsce parkingowe
- komórka lokatorska 8,2 m2
Lokalizacja:
Lokalizacja osiedla zapewnia przede wszystkim odpoczynek od ścisłego centrum miasta. Księże Wielkie to jedna z najbardziej zielonych dzielnic Wrocławia. Sąsiadujące tereny to m.in. Park Wschodni, liczne ścieżki spacerowe i rowerowe, most kilometrowy - najdłuższa w Polsce kładka dla pieszych i rowerzystów, z którego rozpościerają się przepiękne widoki.
W promieniu 1,5 km znajdują się niezbędnie punkty usługowe, edukacyjne: przedszkole (ok. 500 m), szkoła podstawowa (ok. 1 km), sala zabaw dla dzieci (ok. 1,5 km), apteka (ok. 300 m), sklep (ok. 100 m), lokale gastronimiczne (ok. 100m).
Komunikacja miejska dostępna jest poprzez linie autobusowe nr 124, 134, 243 (przystanek autobusowy w odległości ok. 200m) oraz linie tramwajowe nr 3 i 5 (przystanek tramwajowy w odległosci ok. 800 m). Lokalizacja inwestycji zapewnia również szybki dojazd do Obwodnicy Wschodniej.
ATUTY INWESTYCJI:
- Kameralna niska zabudowa
- Miejsca parkingowe w hali garażowej oraz naziemne
- Komórki lokatorskie
- Ogrzewanie miejskie
- Rolety zewnętrzne
- Winda
Cena mieszkania - 730 000 zł
Miejsce parkingowe naziemne 20 000 zł
Komórka lokatorska 8,2 m2 25 000 zł
Oferujemy pełne wsparcie przy bezpiecznej finalizacji zakupu oraz pomożemy w uzyskaniu najlepszej oferty kredytowej.
CHCESZ WIEDZIEĆ WIĘCEJ ? ZADZWOŃ !
Opiekun oferty: MS-2045
Konrad Mosór tel: 517 433 429
konrad@komonieruchomosci.pl
Licencja nr: 28831
Zapraszam na bezpłatną prezentacje i do kontaktu z naszym biurem.
Szanowni Klienci, przedstawiona propozycja nie jest ofertą handlową w rozumieniu przepisów prawa, lecz ma charakter informacyjny. Nasze biuro dokłada starań, aby treści przedstawione w ofertach były aktualne i rzetelne. Dane dotyczące ofert uzyskano na podstawie oświadczeń właścicieli poszczególnych lokali.
KOMO NIERUCHOMOŚCI
ul. Karola Miarki 4 lok.III
Wrocław 50-305
www.komonieruchomosci.pl