Mieszkanie na sprzedaż










Szczegóły ogłoszenia
- Symbol oferty NHM-MS-37219
- Typ oferty mieszkanie na sprzedaż
- Cena 734 268 zł
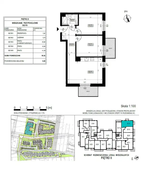
- Charakterystyka mieszkania 56.92 m2, 3 pokoje
- Budynek apartamentowiec; rok budowy: 2025
- Rozkład mieszkania 2p piętro
- Media Ogrzewanie: C.O. miejskie; Woda: jest; Gaz: brak
- Balkon jest
- Garaż garaż podziemny
- Ilość sypialni 2
- Instalacje nowe
- Okna PCV 3 szyby, ciepły montaż
- Otoczenie osiedle
- Stan lokalu deweloperski
- Winda Tak
Lokalizacja
- Adres dolnośląskie, Wrocław, Psie Pole
Opis nieruchomości
0% PROWIZJI | 0% PCC
3-pokojowe mieszkanie w stanie deweloperskim o powierzchni 56,92 m², zlokalizowane na 3 piętrze nowoczesnego apartamentowca przy ul. Rudawskiej we Wrocławiu, na osiedlu Poświętne.
Mieszkanie gotowe do odbioru, idealne zarówno do zamieszkania, jak i jako inwestycja pod wynajem.
Rozkład:
-
salon z aneksem kuchennym – 20,92 m²
-
sypialnia – 12,82 m²
-
pokój - 11,78 m²
-
łazienka – 3,73 m²
-
przedpokój – 7,67 m²
-
balkon – 9 m²
Wysokość pomieszczeń 2,80 m
W każdym pokoju znajdują się gniazdka telewizyjne oraz internetowe, co umożliwia wygodne zaaranżowanie mieszkania do pracy zdalnej i wypoczynku.
Nowoczesny budynek
-
nowy blok (rok budowy 2025)
-
winda
-
monitoring części wspólnych
-
drzwi antywłamaniowe
-
ogrzewanie miejskie
-
okna PCV, trzyszybowe
-
budynek przystosowany dla osób z niepełnosprawnościami
Możliwość zakupu miejsc postojowych:
Miejsce postojowe naziemne dostępne jest w cenie 30 000 zł.
Miejsce postojowe w garażu podziemnym dostępne jest w cenie 35 000 zł (cena promocyjna)
Atuty:
- Kameralne osiedle ogrodzone i monitorowane
- Rolety antywłamaniowe w mieszkaniach na parterze
- Miejsca postojowe na terenie osiedla i w garażach podziemnych
Lokalizacja - Poświętne.
Data końca budowy - już oddane
Skontaktuj się ze mną aby umówić się na prezentację.
Andrzej Dębski N-Home Nieruchomości
tel: 884-707-755
Kupując z nami, otrzymujesz również kompleksowe wsparcie w całym procesie, możliwość skorzystania z preferencyjnych warunków wykończenia pod klucz oraz pomoc ekspertów kredytowych z N-FINANCE.
* Prezentowana oferta nie stanowi oferty handlowej w rozumieniu Art. 66 par. 1 Kodeksu Cywilnego, a dane w niej zawarte mają charakter jedynie informacyjny i mogą ulec zmianie.
Działamy jako wyłączony sprzedawca dla RT Deweloper https://rtdeweloper.pl