Mieszkanie na sprzedaż




















Szczegóły ogłoszenia
- Symbol oferty IGM-MS-21221
- Typ oferty mieszkanie na sprzedaż
- Cena 750 000 zł
- Charakterystyka mieszkania 51.61 m2, 3 pokoje
- Budynek blok; rok budowy: 2021
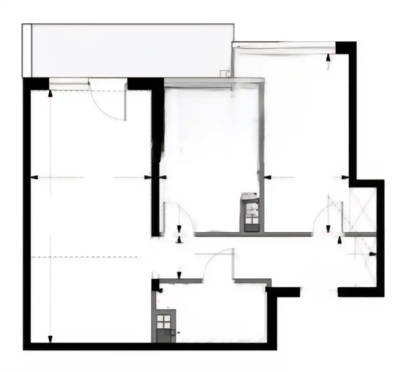
- Rozkład mieszkania 2p piętro
- Media Ogrzewanie: C.O. miejskie; Woda: tak - miejska
- Balkon duży
- Czynsz Czynsz letni: 685 zł
- Dojazd asfalt
- Ilość sypialni 2
- Okna PCV
- Otoczenie osiedle
- Stan lokalu do wprowadzenia
- Taras brak
Lokalizacja
- Adres dolnośląskie, Wrocław, Psie Pole
Opis nieruchomości
Nowoczesne 3 pokoje | duży balkon | zielona i spokojna okolica | Zakrzów
Na sprzedaż słoneczne, trzypokojowe mieszkanie położone w kameralnej, nowoczesnej zabudowie na wrocławskim Zakrzowie. Budynek został oddany do użytku pod koniec 2021 roku i zaprojektowany z myślą o harmonijnym połączeniu estetyki, funkcjonalności oraz komfortu codziennego życia.
Choć formalna powierzchnia mieszkania wynosi 51,61 m², jego realny metraż po podłodze to aż 58 m², co wyraźnie przekłada się na poczucie przestrzeni i wygodę codziennego funkcjonowania. To jedna z tych nieruchomości, które na żywo pozytywnie zaskakują swoją przestronnością.
Całość uzupełnia imponujący balkon o powierzchni 8,4 m² – idealne miejsce do relaksu, pracy zdalnej lub stworzenia prywatnej strefy wypoczynku.
Mieszkanie jest doskonale doświetlone, a jego starannie zaprojektowany i funkcjonalny układ pozwala w pełni wykorzystać każdy metr przestrzeni, zapewniając wysoki komfort użytkowania i poczucie harmonii.
Rozkład pomieszczeń:
• salon z aneksem kuchennym – 23,9 m²
• sypialnia – 11,9 m²
• pokój / gabinet – 9,9 m²
• łazienka – 4,8 m²
• przedpokój – 7,4 m²
Standard i udogodnienia:
• ogrzewanie z sieci miejskiej
• klimatyzacja
• mieszkanie po remoncie, gotowe do zamieszkania
• czynsz po aktualizacji z marca 2026: ok. 685 zł / mies.
Otoczenie i charakter zabudowy:
Teren osiedla jest w pełni zamknięty i monitorowany, co zapewnia bezpieczeństwo i prywatność mieszkańcom. Do dyspozycji są bezpłatne naziemne miejsca parkingowe, dostępne wyłącznie dla mieszkańców. Kameralna zabudowa oraz bliskość zieleni tworzą spokojną, przyjazną przestrzeń do życia – doskonałą alternatywę dla zatłoczonego centrum miasta.
W bezpośrednim sąsiedztwie znajdują się tereny zielone idealne do spacerów, jazdy rowerem i wypoczynku na świeżym powietrzu – malowniczy Las Zakrzowski oraz urokliwy Park Pawłowicki, a jednocześnie łatwy dostęp do infrastruktury handlowej i usługowej.
Lokalizacja i komunikacja:
• 3 przystanki autobusowe w pobliżu
• stacja PKP – ok. 7 minut pieszo
• 5–7 minut pieszo: Biedronka, Żabka, sklepy osiedlowe, apteka, poczta
• w okolicy: siłownia, aquapark, kompleks sportowy z boiskami, restauracje
Cena:
750 000 zł
(w cenie: wyremontowane mieszkanie, umeblowana łazienka oraz meble kuchenne w zabudowie)
Istnieje możliwość zakupu mieszkania w pełni umeblowanego oraz wyposażonego w sprzęty AGD za kwotę 787 000 zł.
Gorąco polecam i serdecznie zapraszam na prezentację!